Skip to content
CREATIONS WEST
Home
Featured
Custom
Stock
About
Home
Featured
Custom
Stock
About
Let's Talk!
R-1692-07IE
Download PDF
Back to search
Type:
Rambler
Style:
Craftsman
,
Modern Farmhouse
1692 sq. ft
74' Wide
58' Deep
2 Rooms
2 Bathrooms
Main Floor
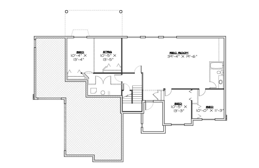
Basement
Front Elevation
Rear Elevation