Skip to content
CREATIONS WEST
Home
Featured
Custom
Stock
About
Home
Featured
Custom
Stock
About
Let's Talk!
1H-2534-20UE
Download PDF
Back to search
Type:
One-Half
Style:
Contemporary
,
Prairie
2534 sq. ft
61.2' Wide
63.7' Deep
6 Rooms
2.5 Bathrooms
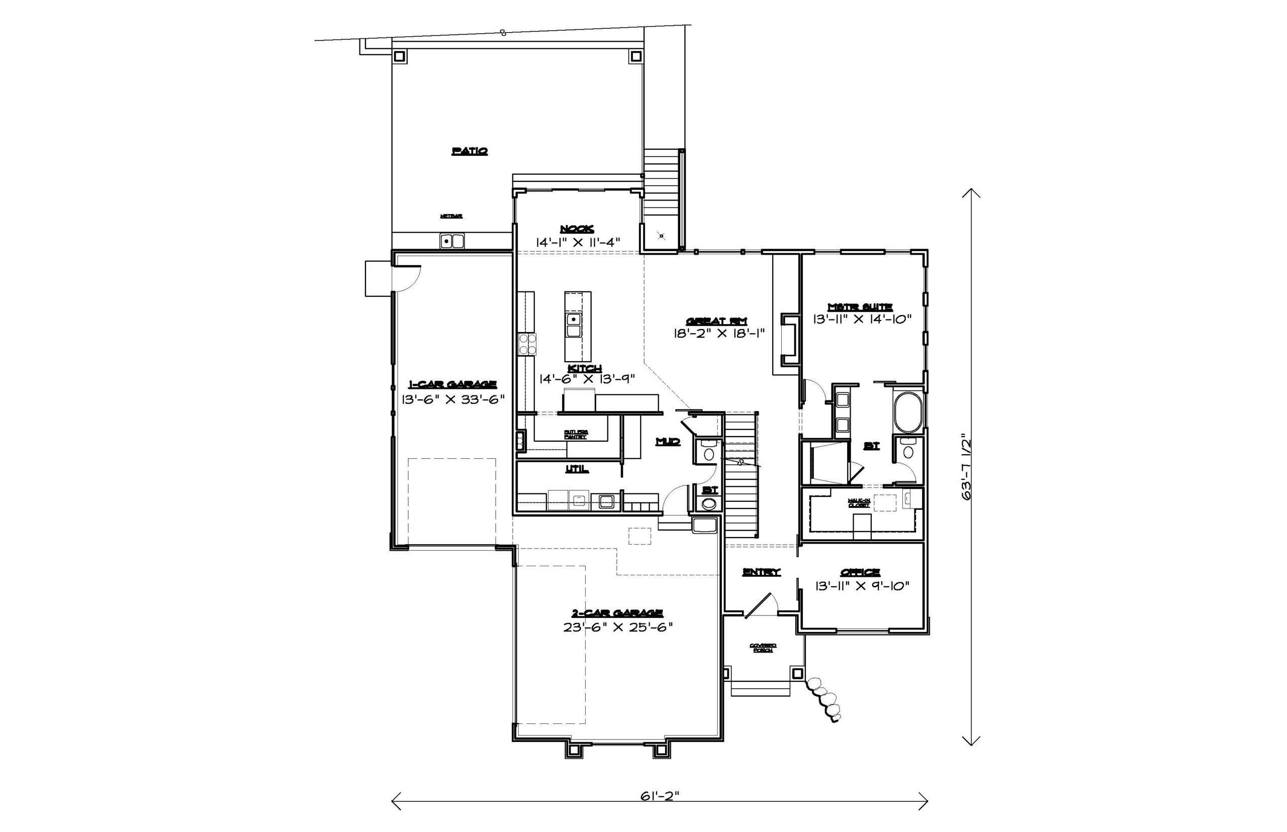
Main Floor
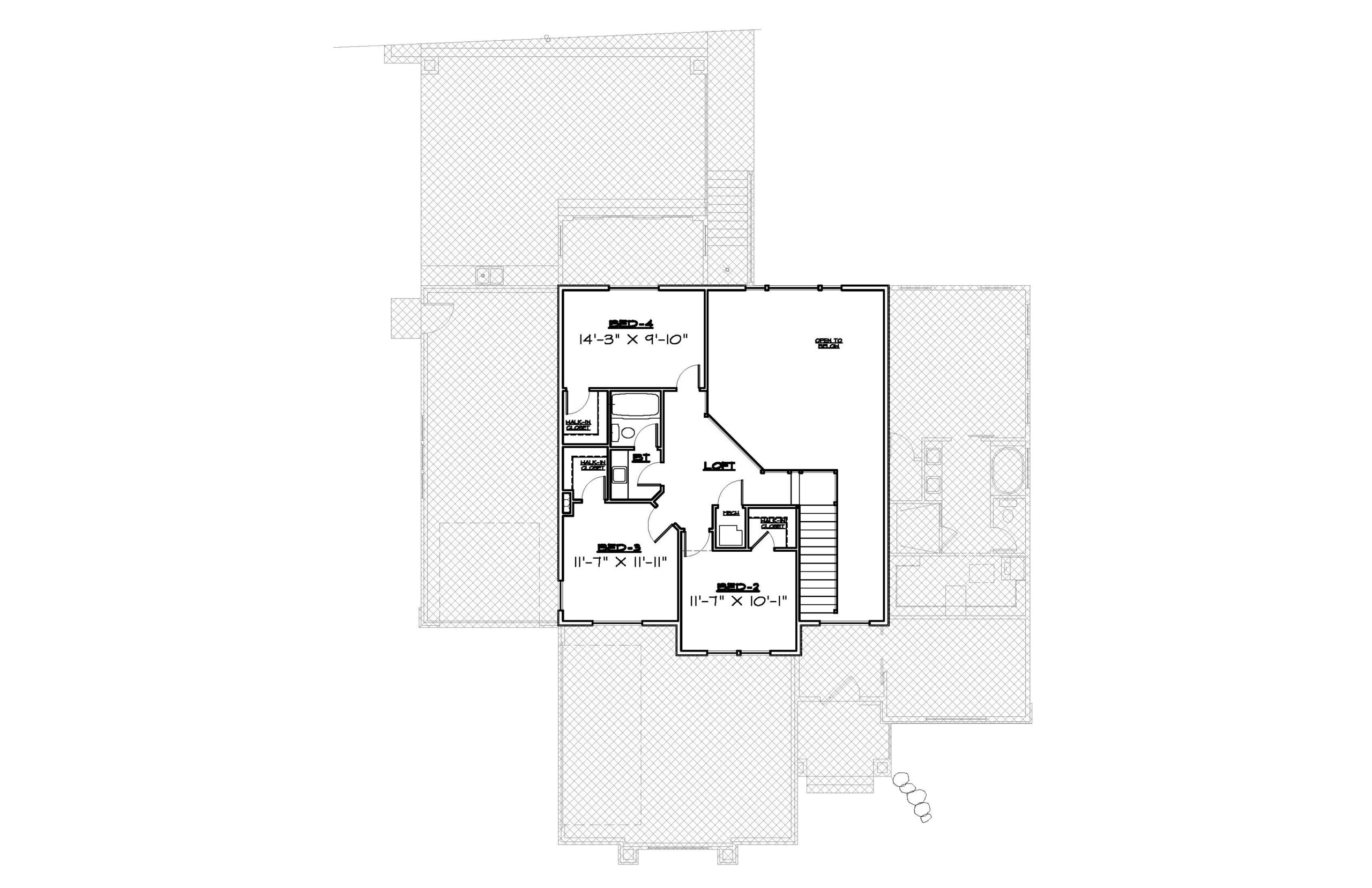
Upper Floor
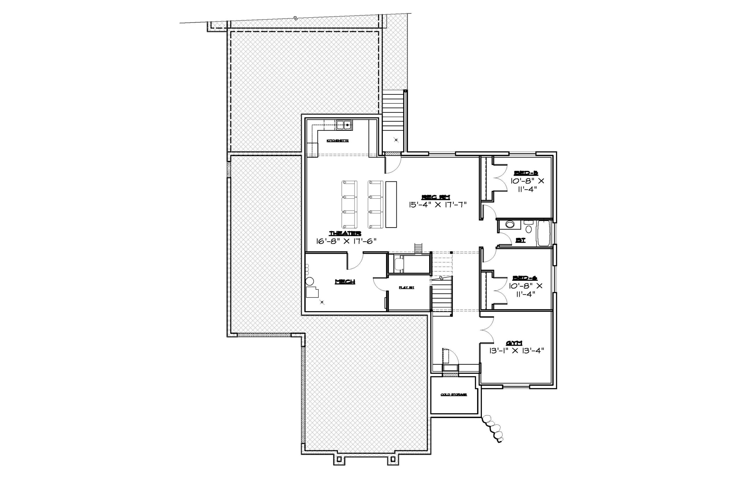
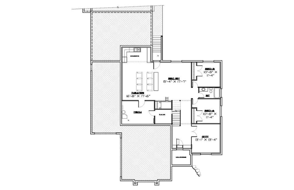
Basement