Skip to content
CREATIONS WEST
Home
Featured
Custom
Stock
About
Home
Featured
Custom
Stock
About
Let's Talk!
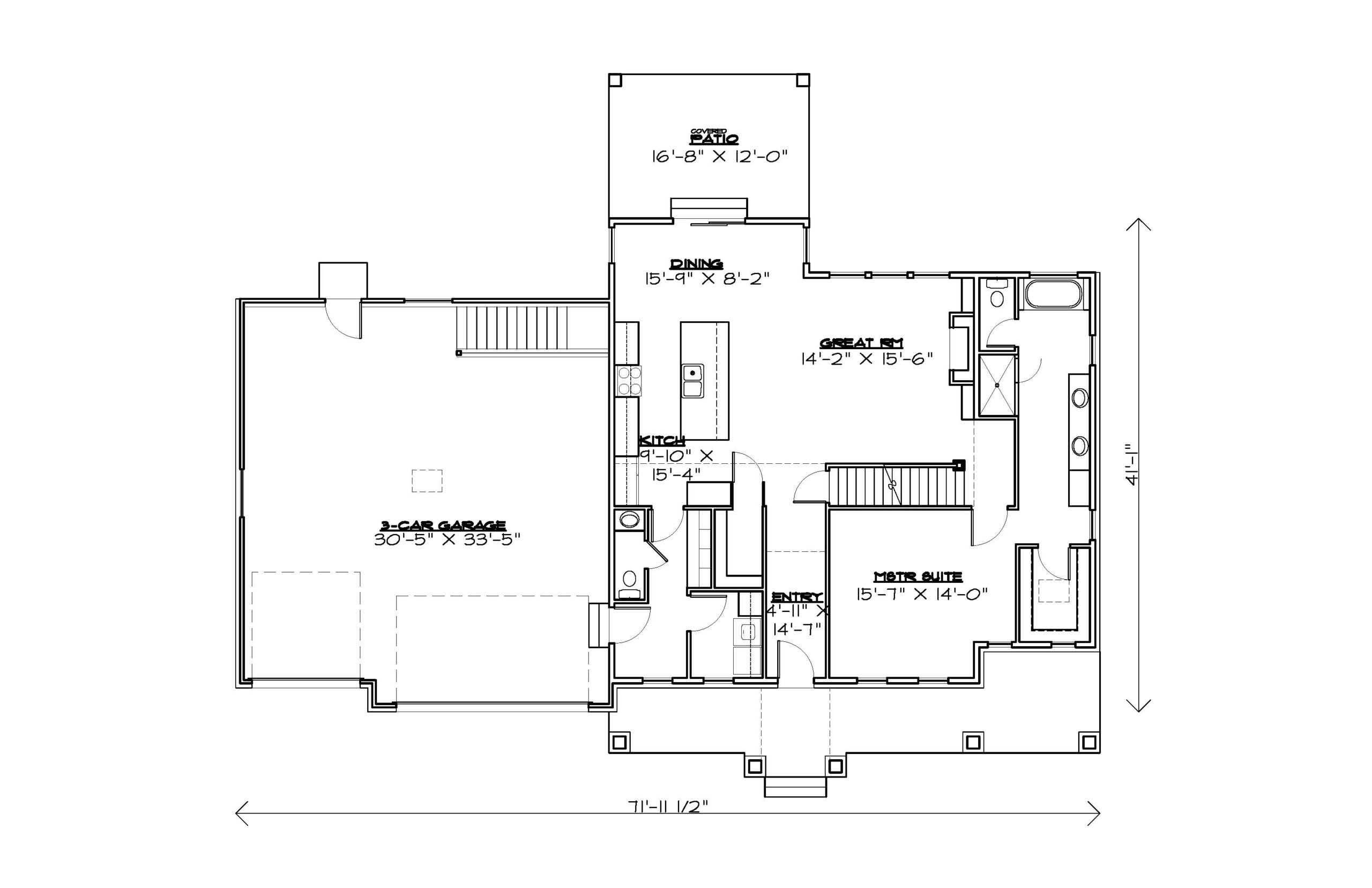
1H-2624-19UE
Download PDF
Back to search
Type:
One-Half
Style:
Modern Farmhouse
2624 sq. ft
72' Wide
41' Deep
5 Rooms
3.5 Bathrooms
Main Floor
Main Floor
Upper Floor
Upper Floor
Basement