Skip to content
CREATIONS WEST
Home
Featured
Custom
Stock
About
Home
Featured
Custom
Stock
About
Let's Talk!
1H-3125-24UE
Download PDF
Back to search
Type:
One-Half
Style:
Cabin
,
Farmhouse
,
Modern Farmhouse
3124 sq. ft
90.4' Wide
46' Deep
3 Rooms
3 Bathrooms
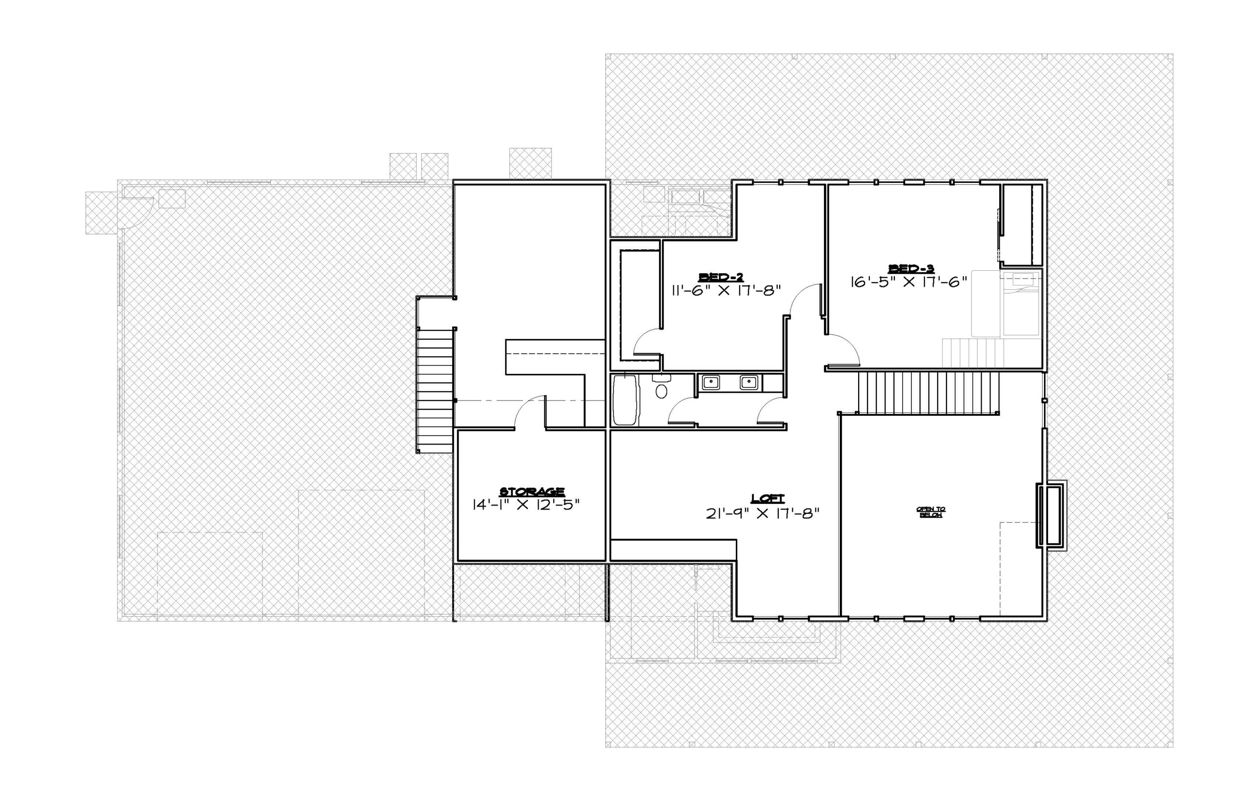
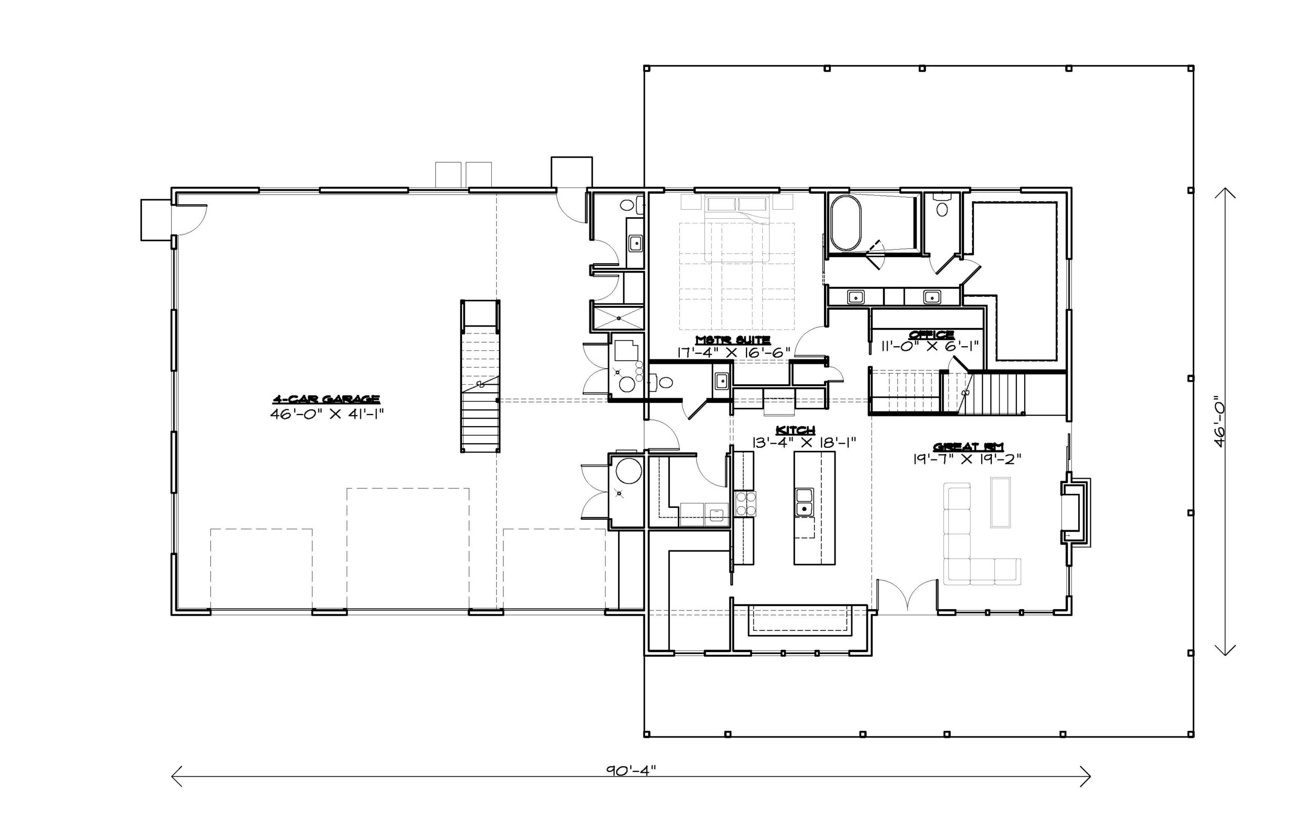
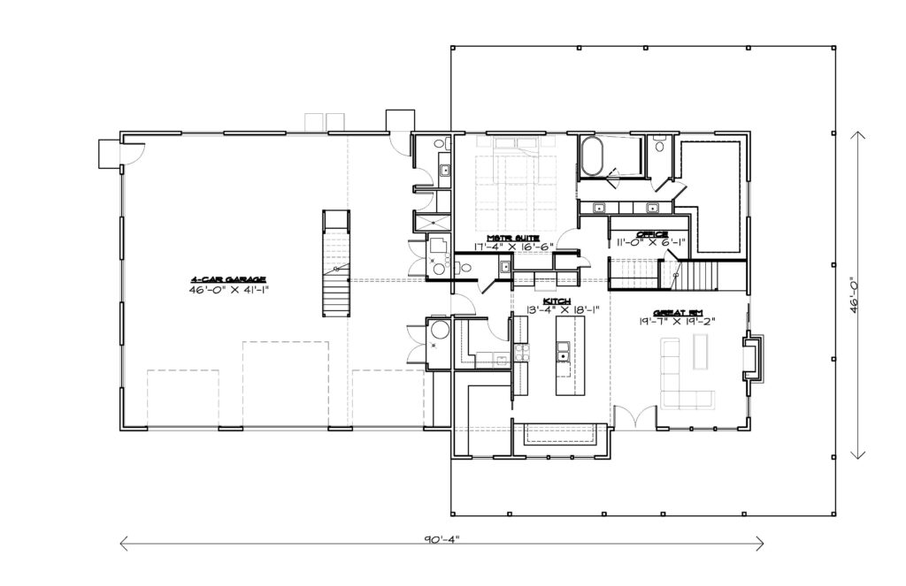
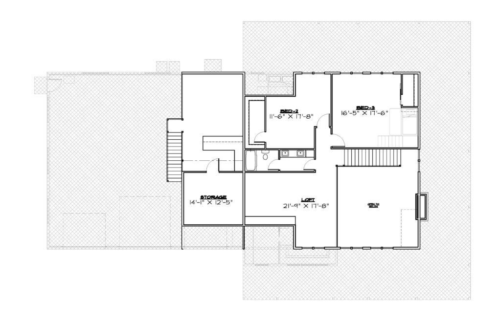
Main Floor
Upper Floor