Skip to content
CREATIONS WEST
Home
Featured
Custom
Stock
About
Home
Featured
Custom
Stock
About
Let's Talk!
1H-3842-24UE
Download PDF
Back to search
Type:
One-Half
Style:
Farmhouse
,
Modern Farmhouse
,
Traditional
3842 sq. ft
105' Wide
62' Deep
4 Rooms
4 Bathrooms
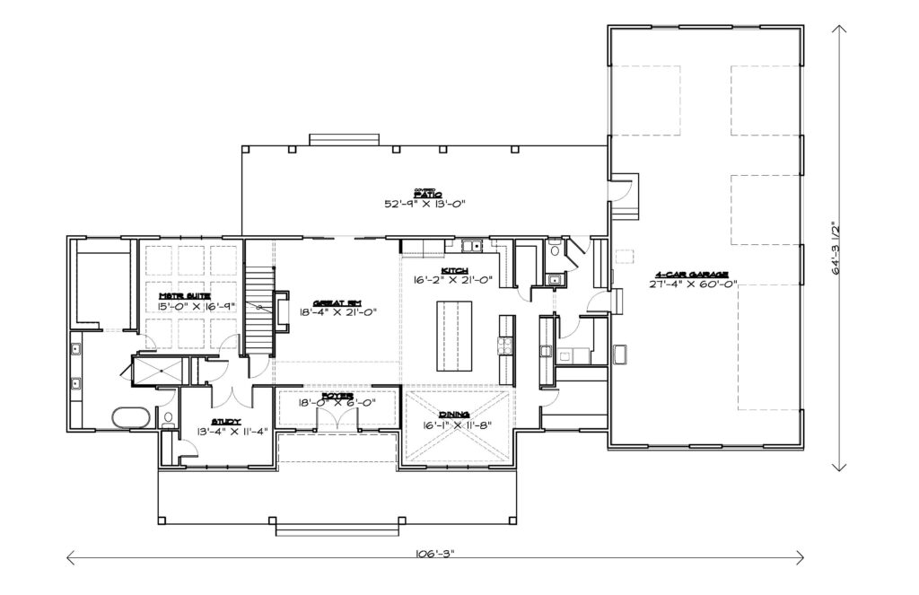
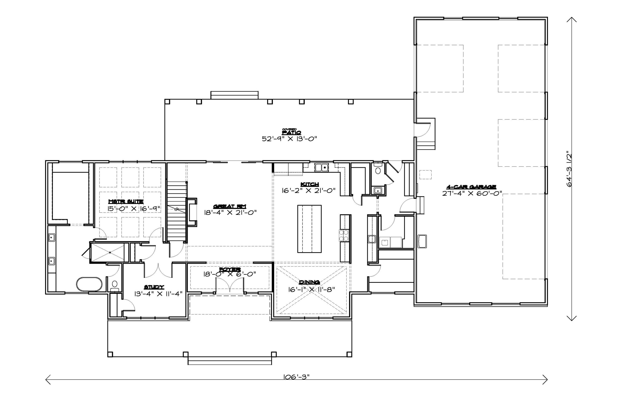
Main Floor
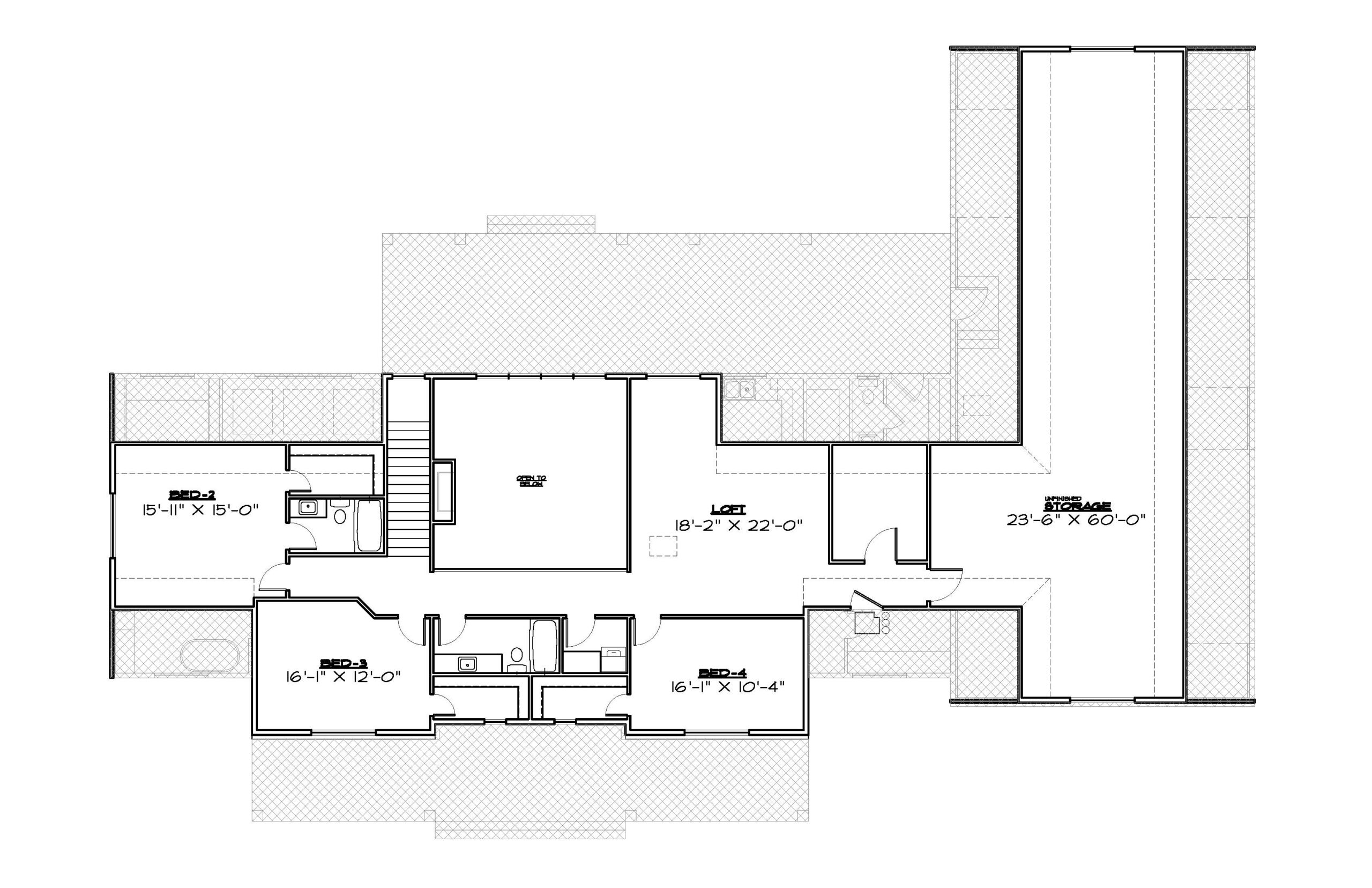
Upper Floor