Skip to content
CREATIONS WEST
Home
Featured
Custom
Stock
About
Home
Featured
Custom
Stock
About
Let's Talk!
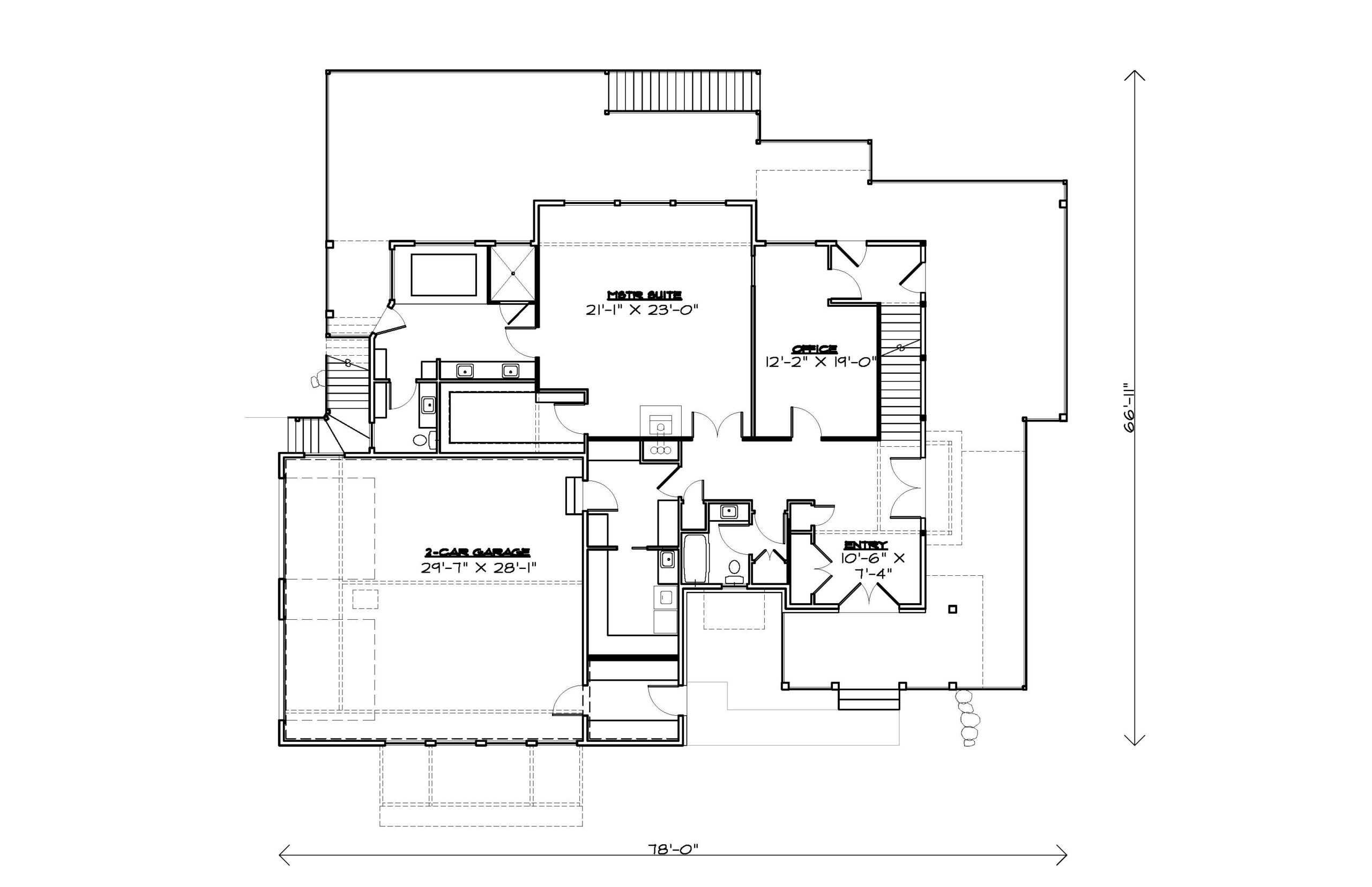
1H-3920-25UE
Download PDF
Back to search
Type:
One-Half
Style:
Cabin
,
Rustic
3920 sq. ft
78' Wide
67' Deep
2 Rooms
4 Bathrooms
Main Floor
Upper Floor
Front Elevation
Rear Elevation