Skip to content
CREATIONS WEST
Home
Featured
Custom
Stock
About
Home
Featured
Custom
Stock
About
Let's Talk!
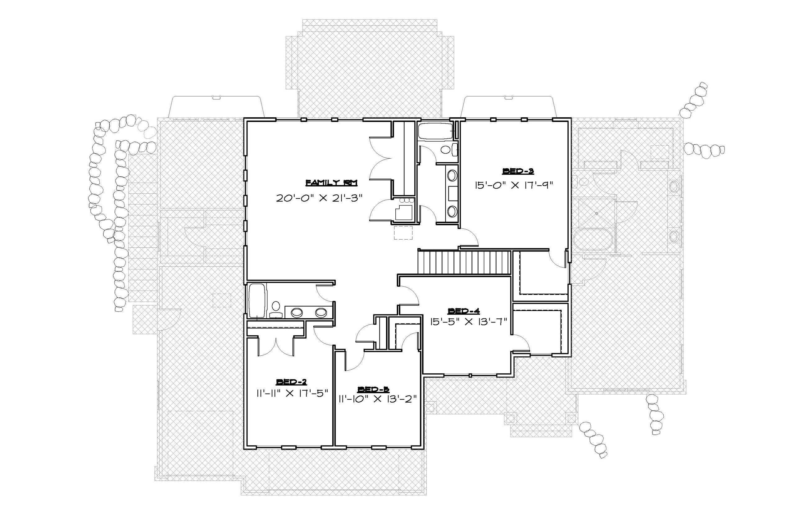
1H-4072-22UE
Download PDF
Back to search
Type:
One-Half
Style:
Craftsman
4072 sq. ft
73' Wide
52' Deep
7 Rooms
6 Bathrooms
Main Floor
Upper Floor
Basement
Front Elevation
Rear Elevation