Skip to content
CREATIONS WEST
Home
Featured
Custom
Stock
About
Home
Featured
Custom
Stock
About
Let's Talk!
1H-4140-21UE
Download PDF
Back to search
Type:
One-Half
Style:
Craftsman
,
Farmhouse
3350 sq. ft
102.2' Wide
53' Deep
5 Rooms
6 Bathrooms
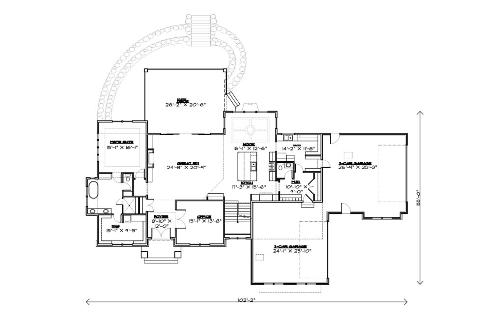
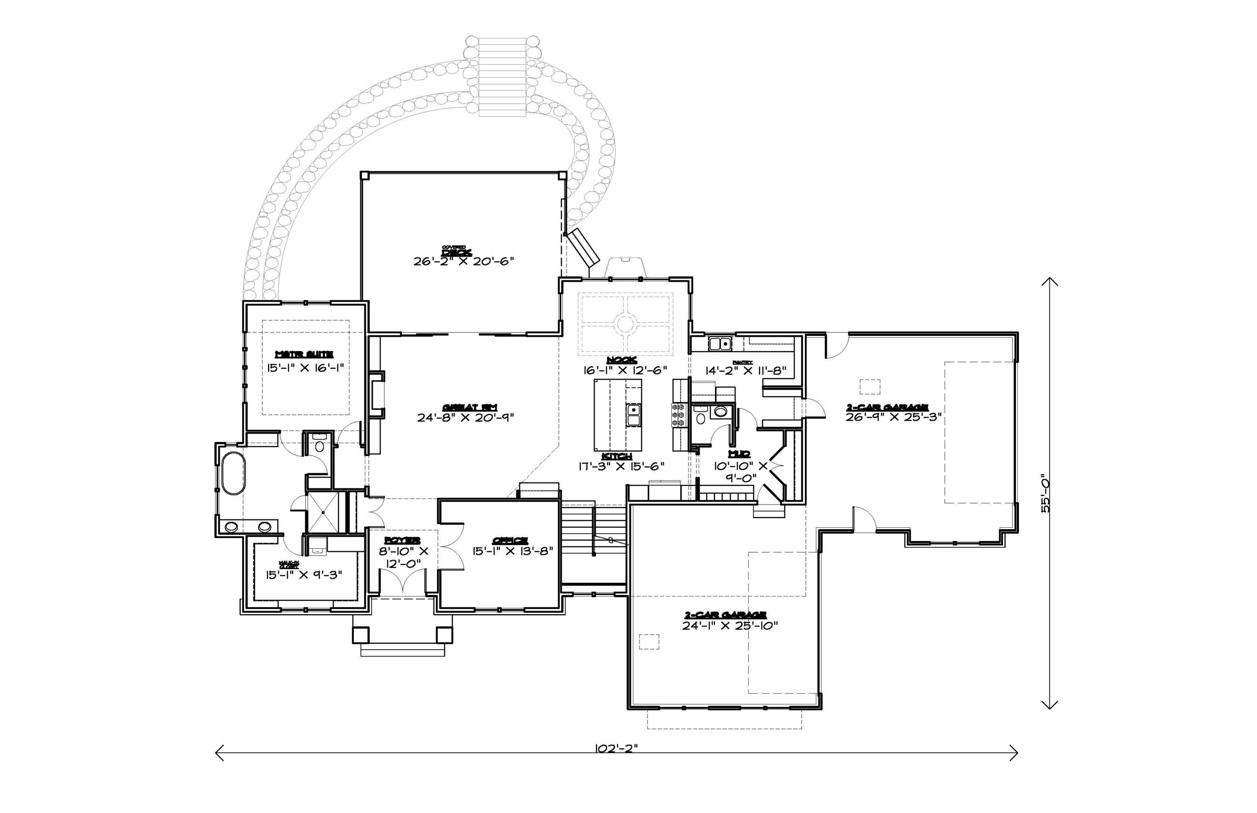
Main Floor
Upper Floor
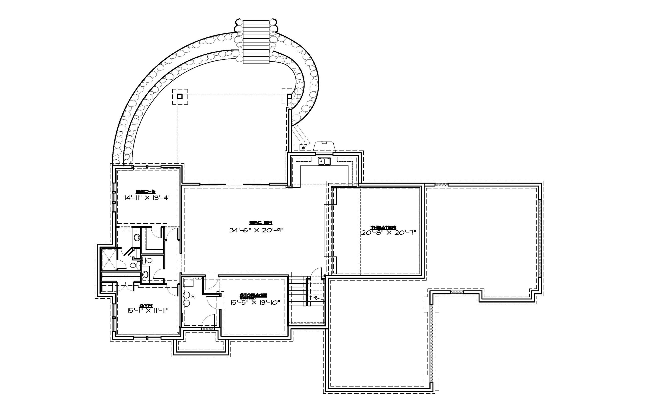
Basement