Skip to content
CREATIONS WEST
Home
Featured
Custom
Stock
About
Home
Featured
Custom
Stock
About
Let's Talk!
1H-4448-24UE
Download PDF
Back to search
Type:
One-Half
Style:
French Country
,
Transitional
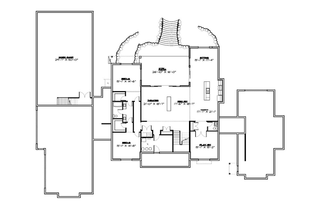
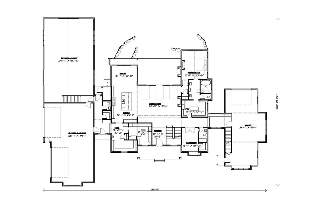
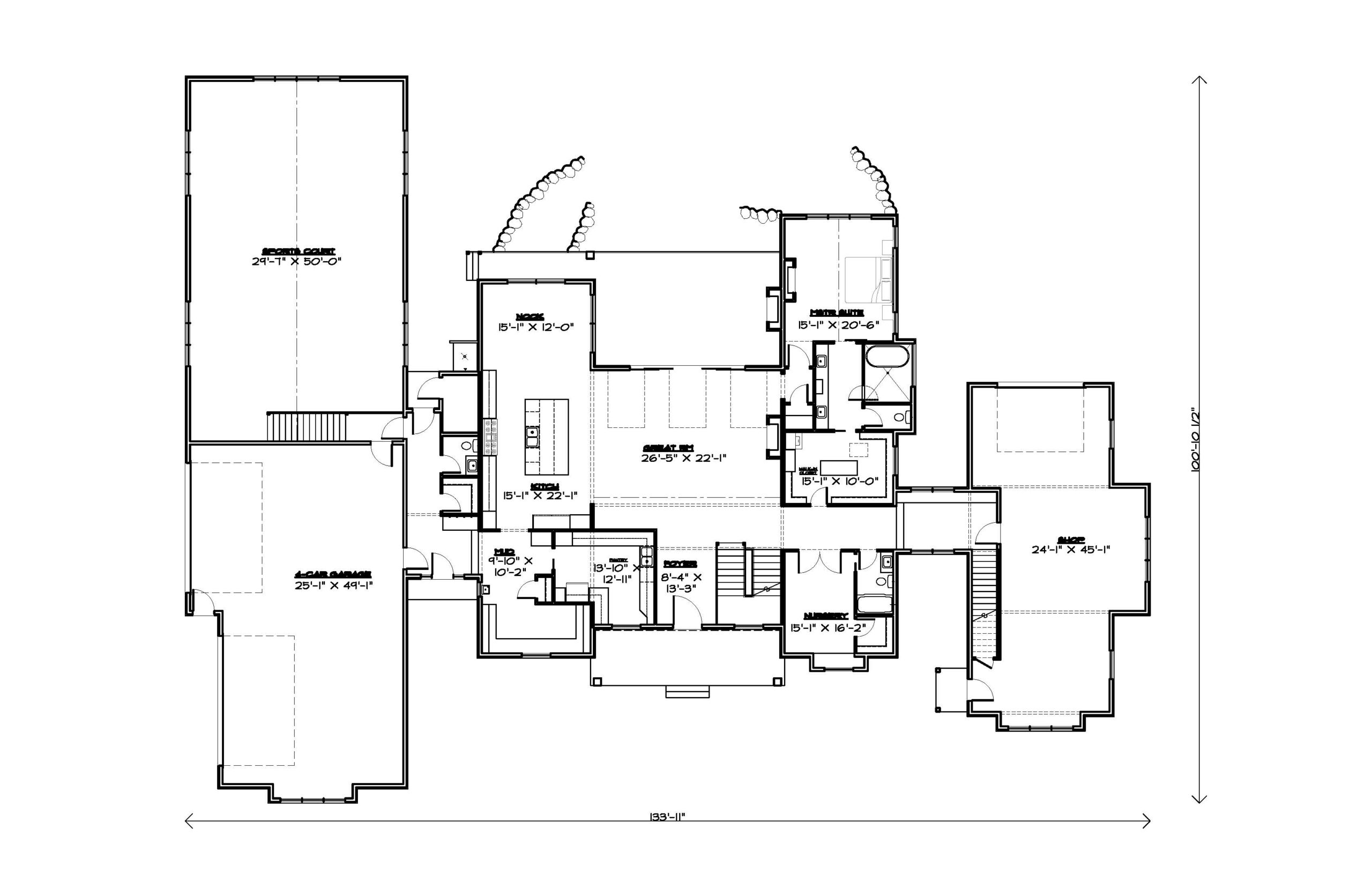
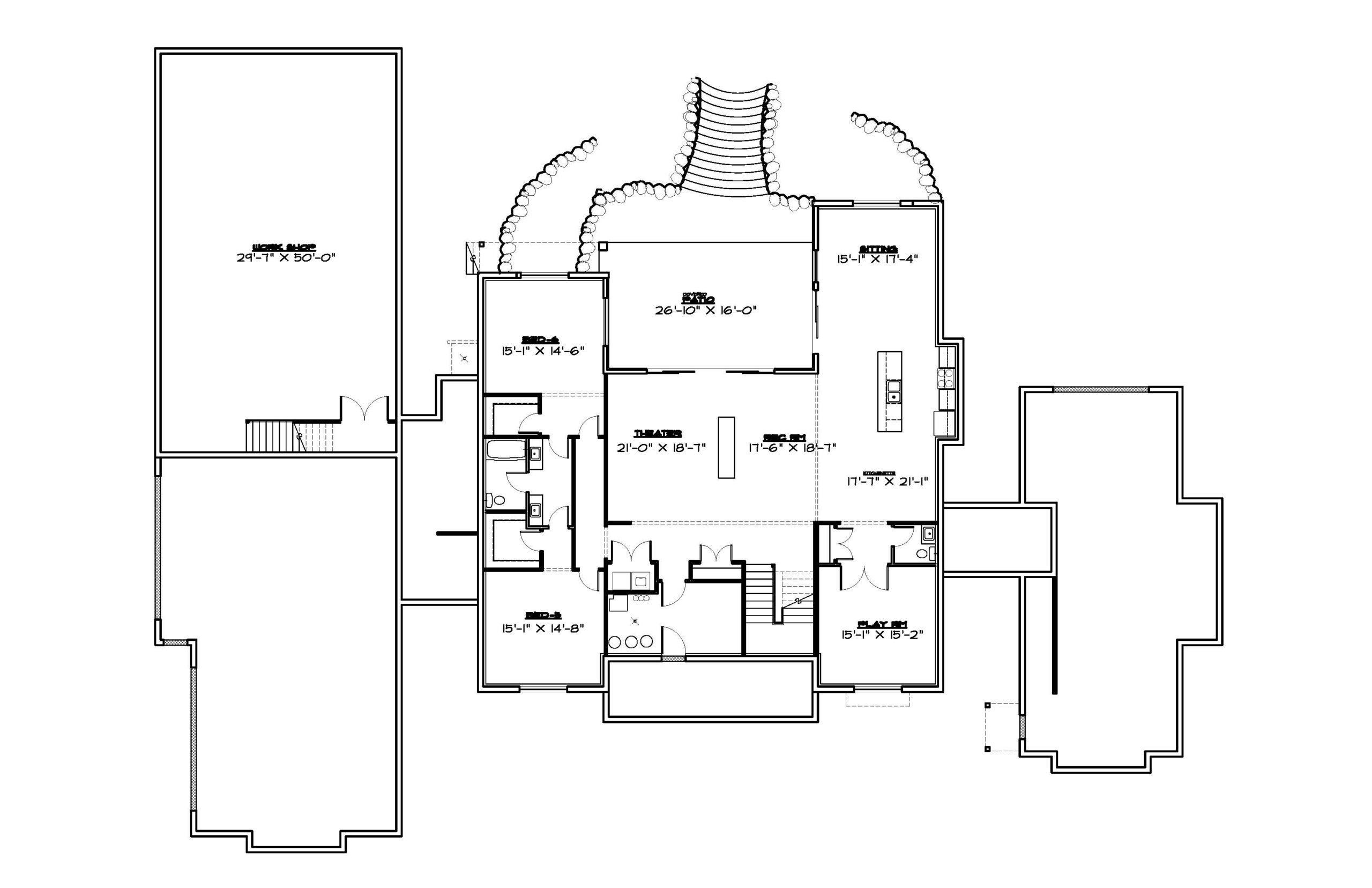
4448 sq. ft
133.11' Wide
100.11' Deep
7 Rooms
6 Bathrooms
Main Floor
Upper Floor
Basement