Skip to content
CREATIONS WEST
Home
Featured
Custom
Stock
About
Home
Featured
Custom
Stock
About
Let's Talk!
1H-4964-01UE
Download PDF
Back to search
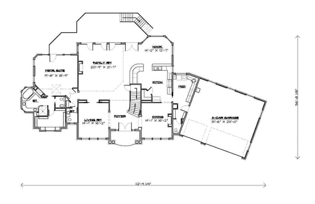
4964 sq. ft
112' Wide
56' Deep
6 Rooms
5.5 Bathrooms
Main Floor
Upper Floor
Basement
Front Elevation
Rear Elevation