Skip to content
CREATIONS WEST
Home
Featured
Custom
Stock
About
Home
Featured
Custom
Stock
About
Let's Talk!
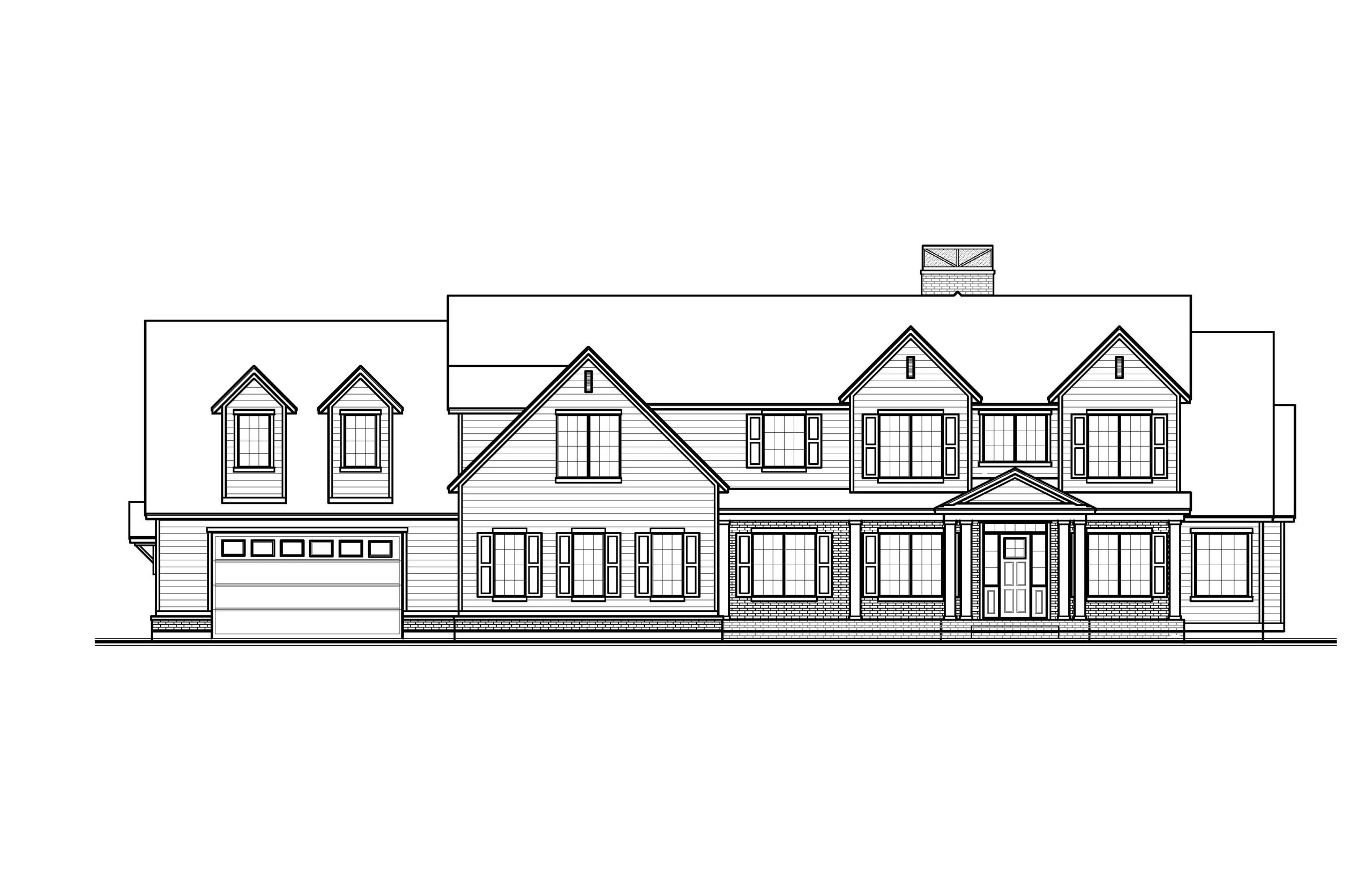
1H-5464-25UE
Download PDF
Back to search
Type:
One-Half
Style:
Craftsman
,
Farmhouse
5464 sq. ft
160' Wide
122' Deep
7 Rooms
8 Bathrooms
Main Floor
Upper Floor
Basement
Front Elevation
Rear Elevation