Skip to content
CREATIONS WEST
Home
Featured
Custom
Stock
About
Home
Featured
Custom
Stock
About
Let's Talk!
1H-6157-24UE
Download PDF
Back to search
Type:
One-Half
Style:
Contemporary
,
French Country
6157 sq. ft
110' Wide
93' Deep
5 Rooms
8 Bathrooms
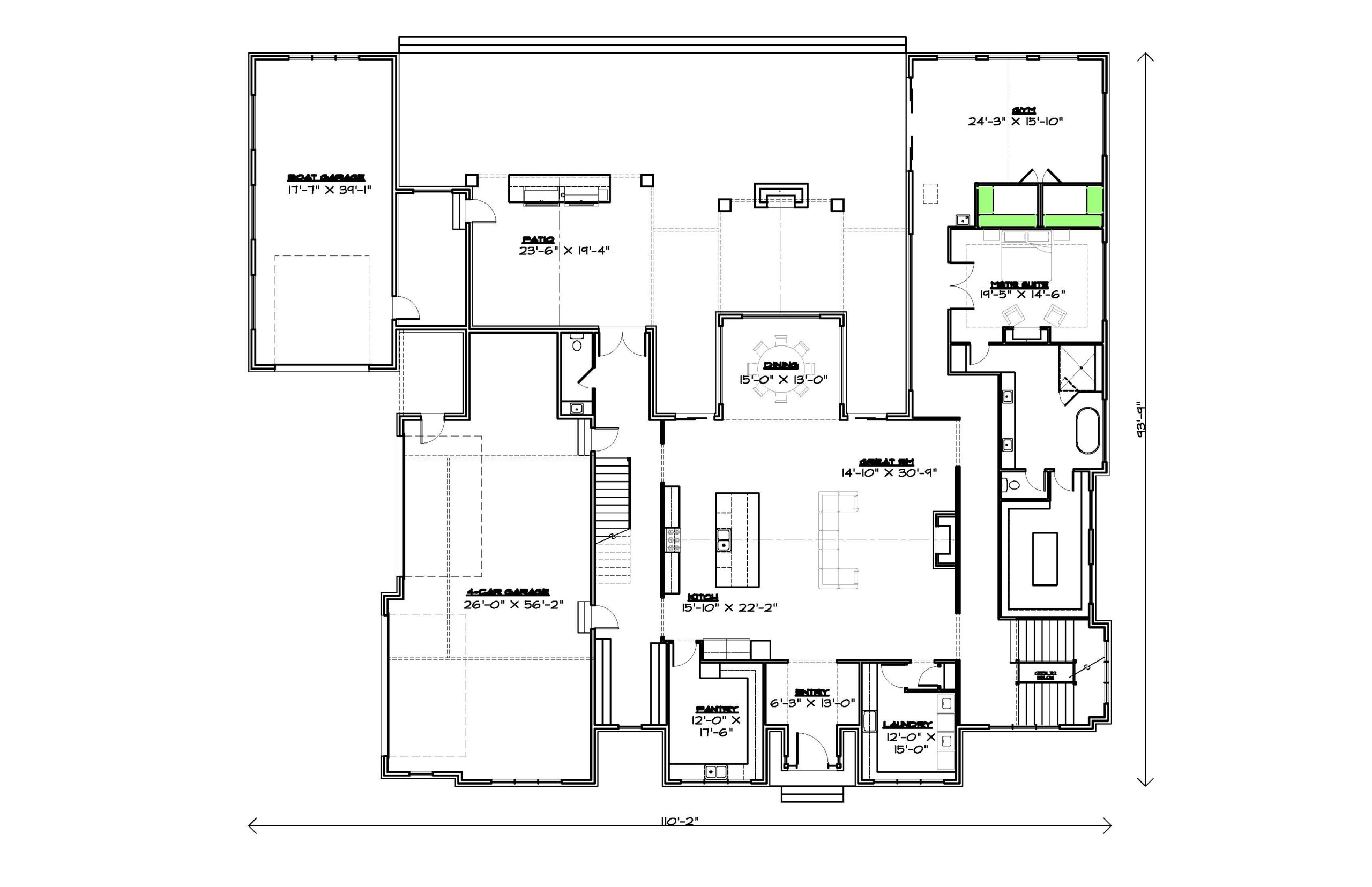
Main Floor
Upper Floor
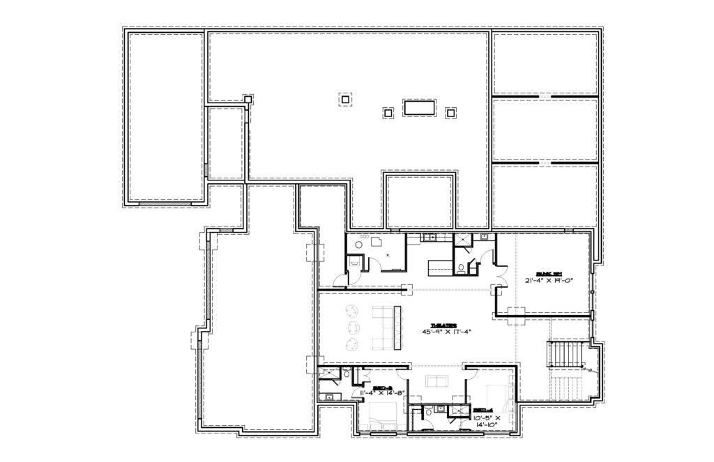
Basement
Front Elevation
Rear Elevation