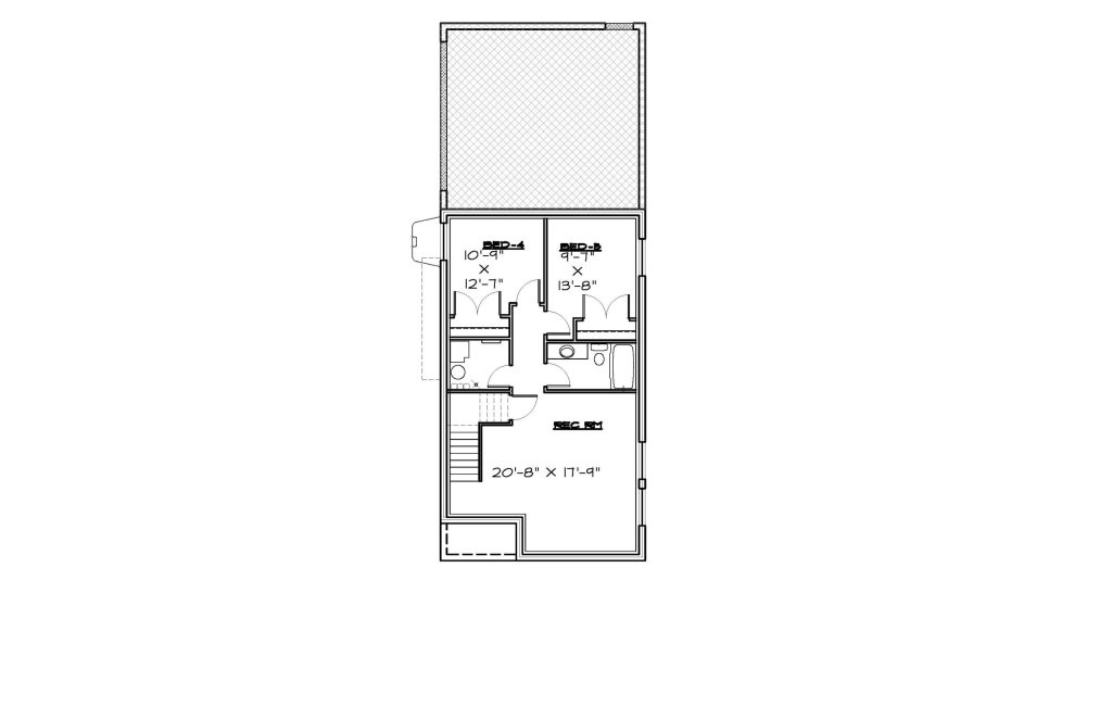
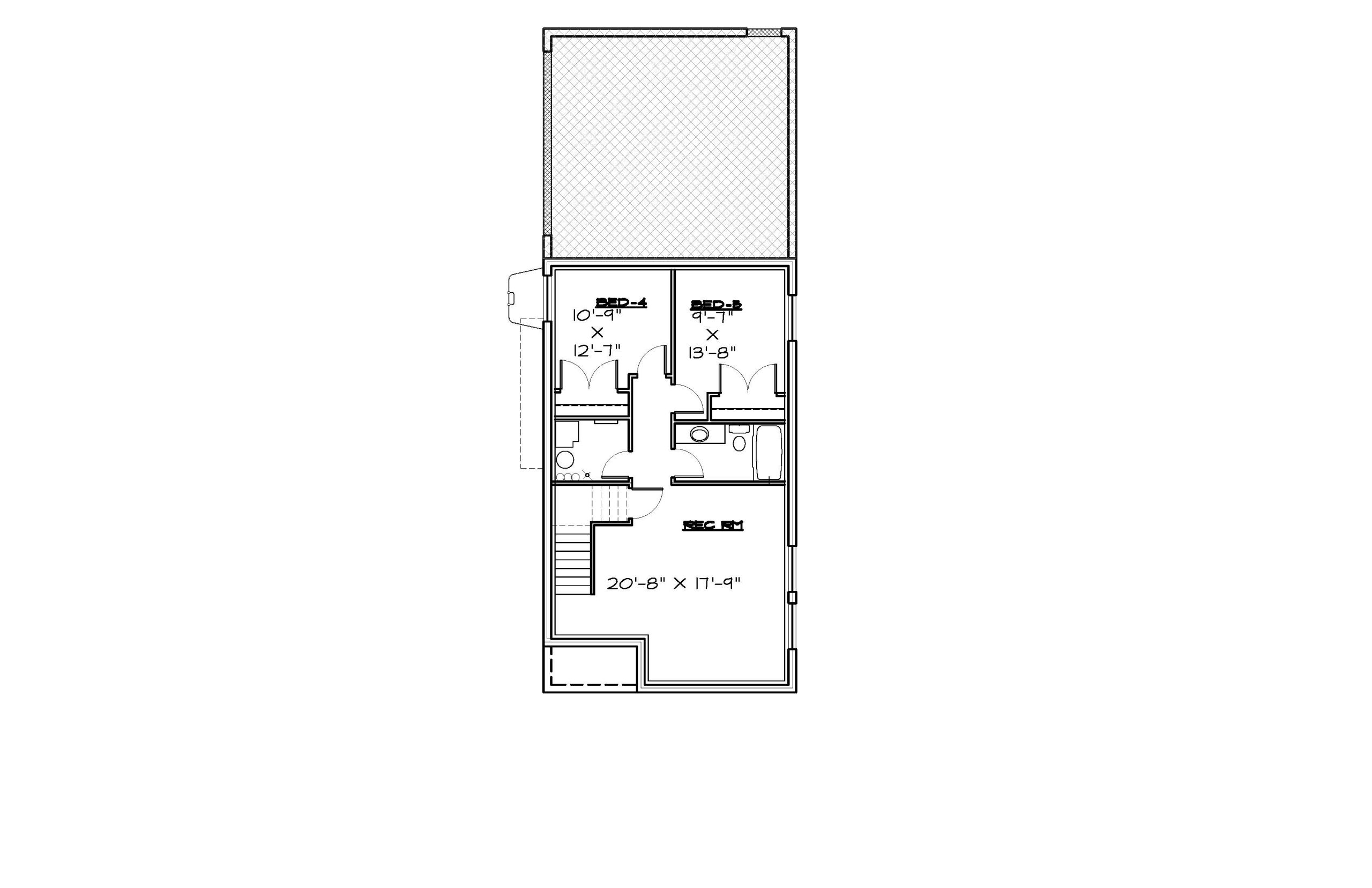
2-1604-16UE

Basement
Front Elevation
Rear Elevation