Skip to content
CREATIONS WEST
Home
Featured
Custom
Stock
About
Home
Featured
Custom
Stock
About
Let's Talk!
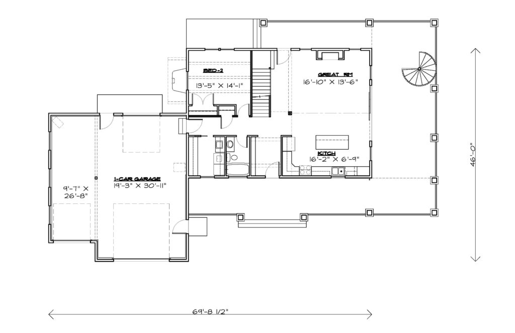
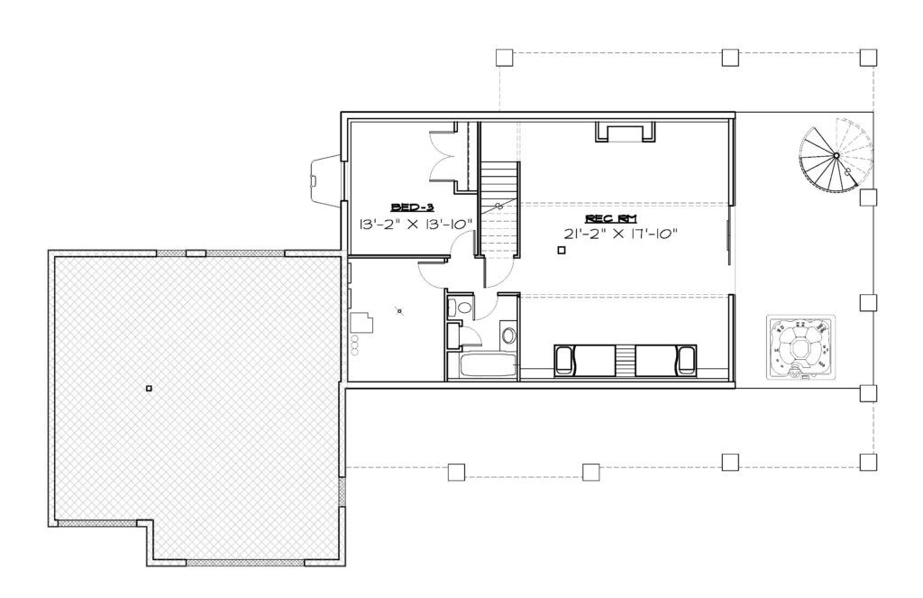
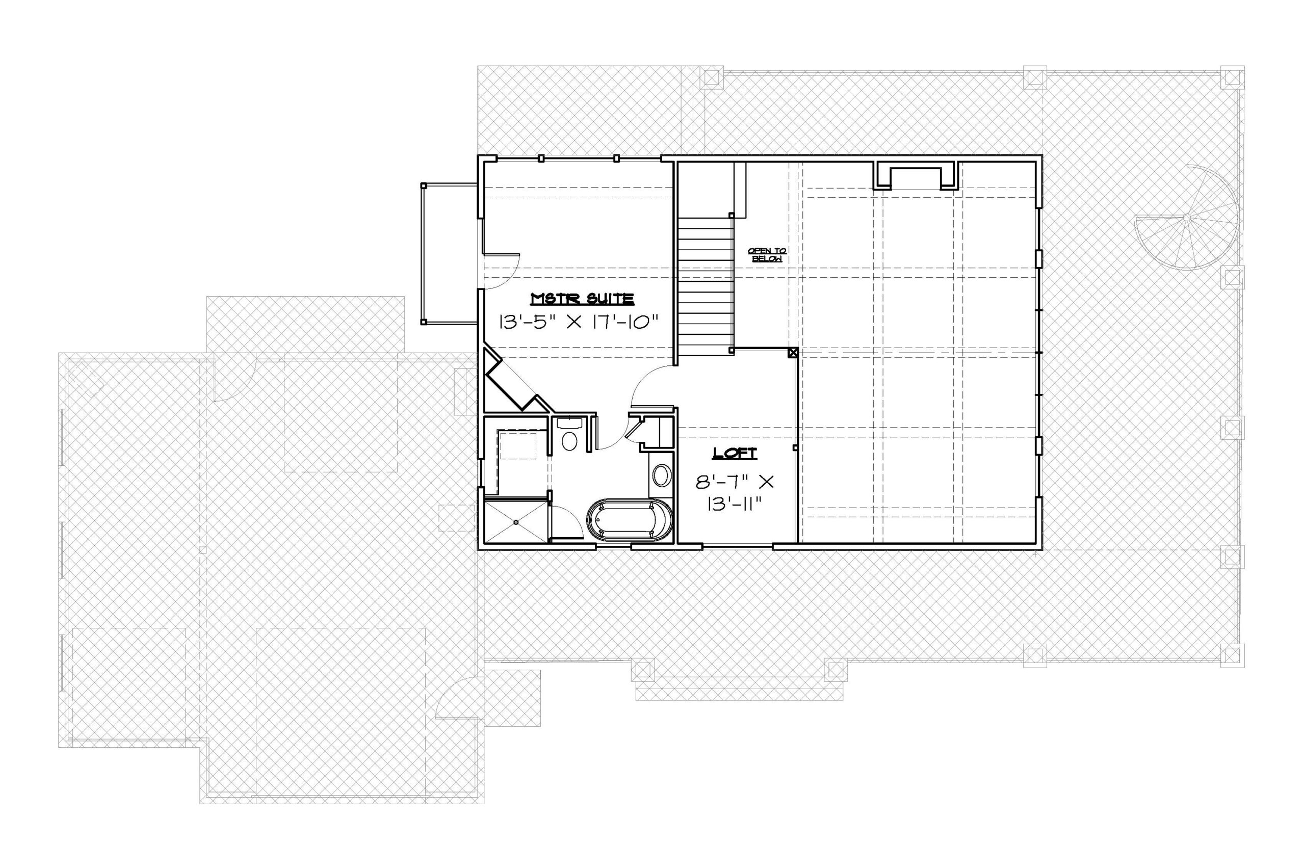
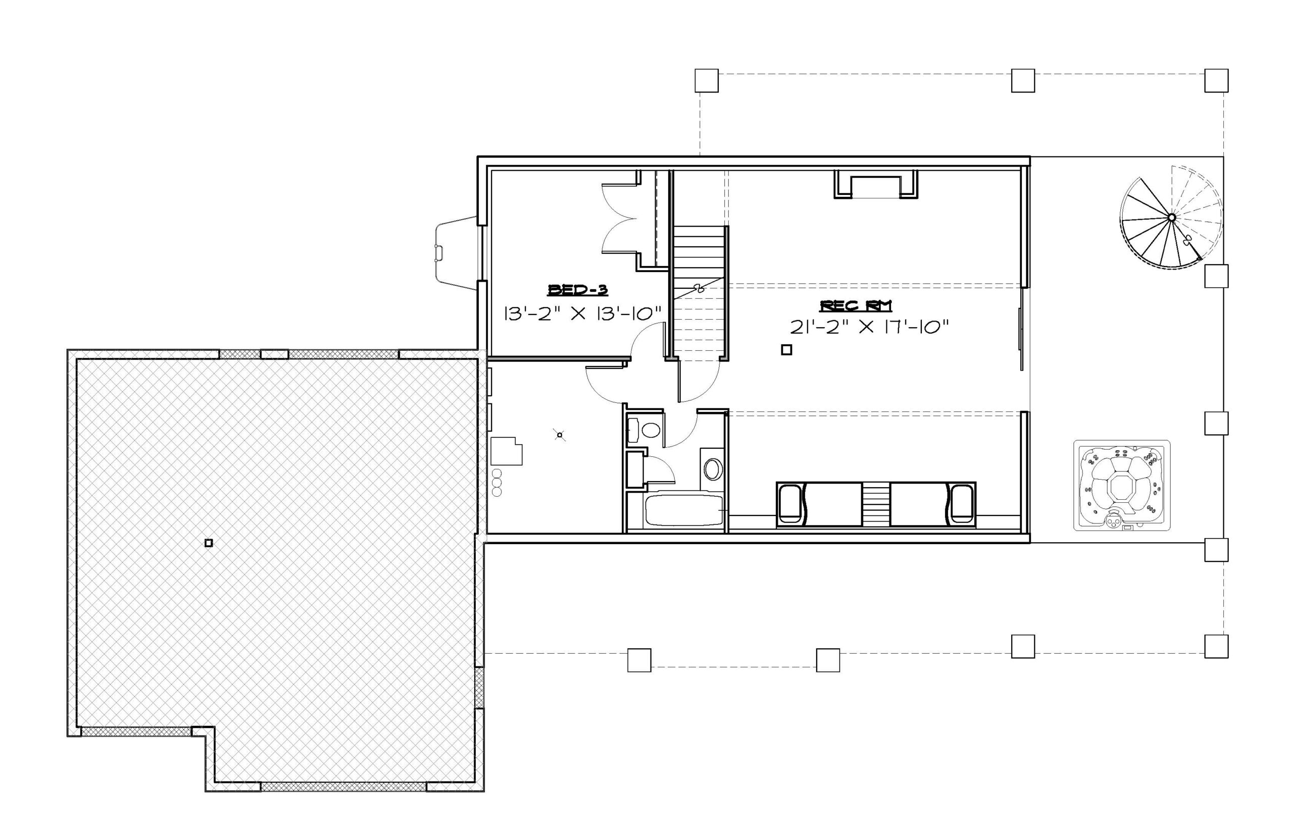
2-1639-19UE
Download PDF
Back to search
Type:
Two-Story
Style:
Cabin
,
Rustic
1639 sq. ft
69.8' Wide
46' Deep
3 Rooms
3 Bathrooms
Main Floor
Upper Floor
Basement