Skip to content
CREATIONS WEST
Home
Featured
Custom
Stock
About
Home
Featured
Custom
Stock
About
Let's Talk!
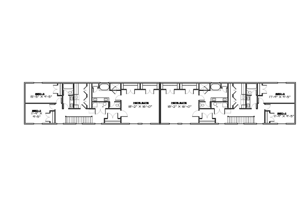
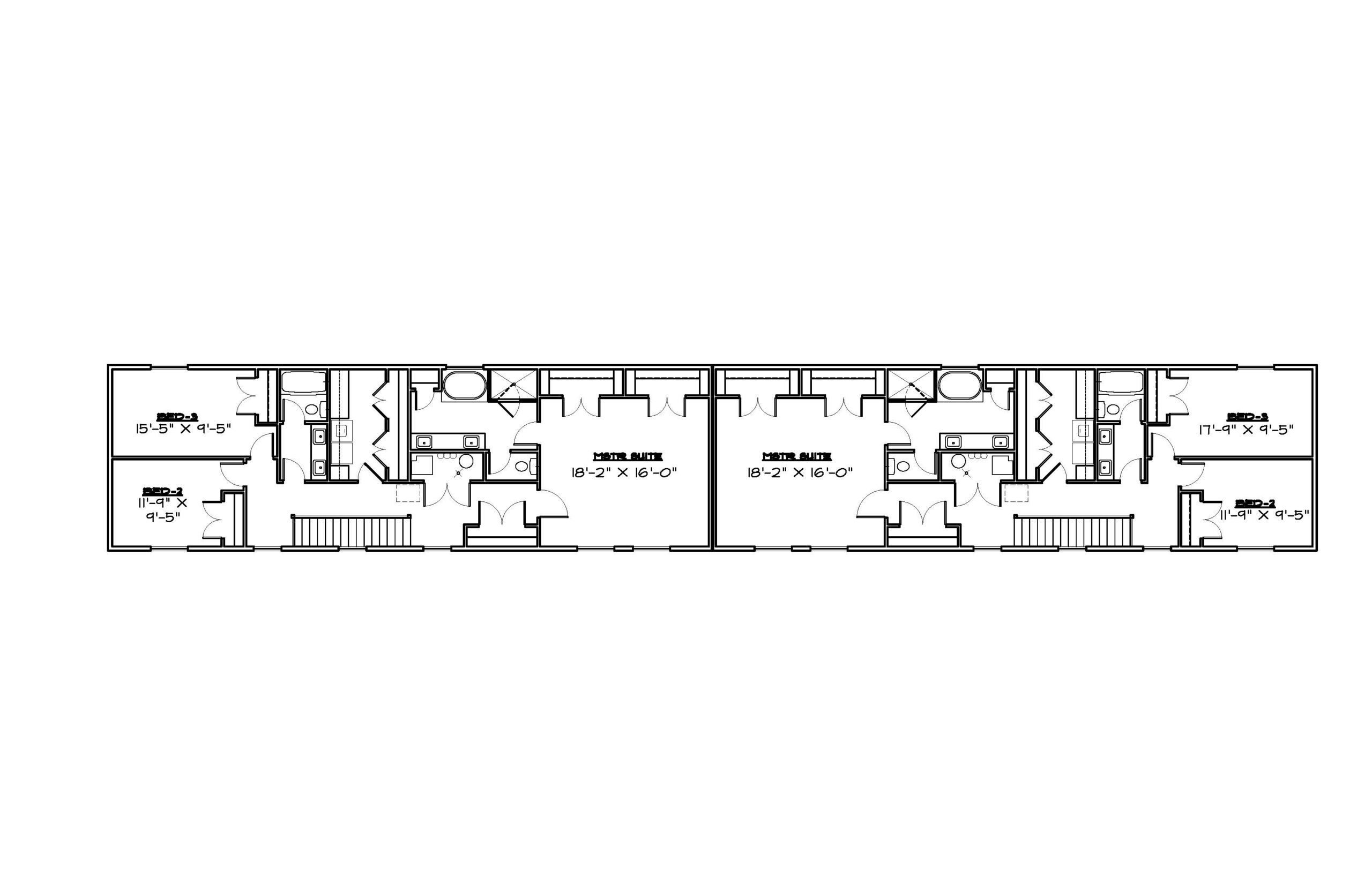
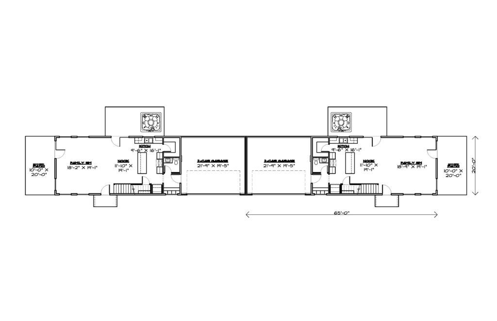
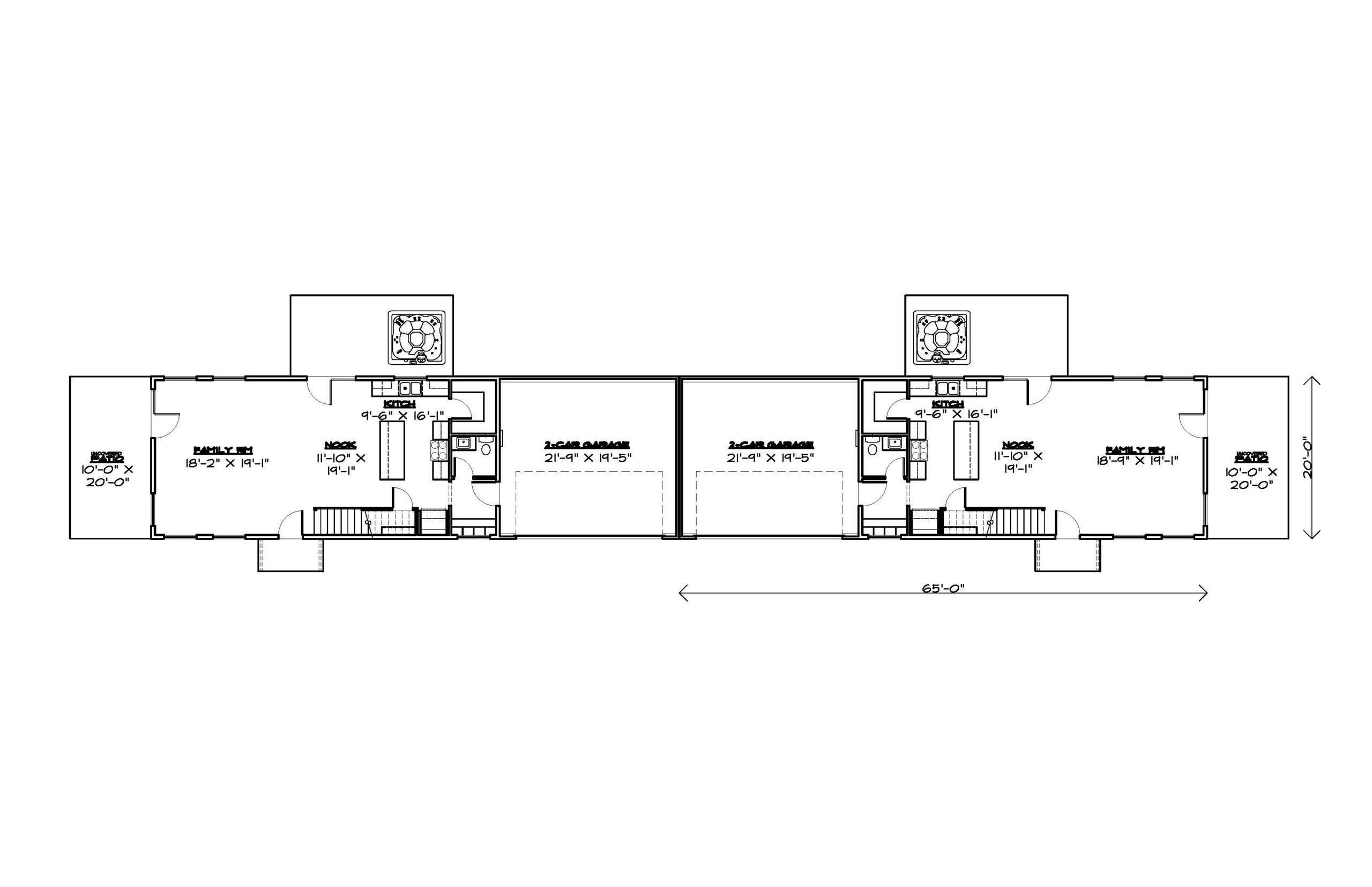
2-2156-25UE
Download PDF
Back to search
Type:
Multi-Family
Style:
Contemporary
2156 sq. ft
65' Wide
20' Deep
3 Rooms
3 Bathrooms
Main Floor
Upper Floor