Skip to content
CREATIONS WEST
Home
Featured
Custom
Stock
About
Home
Featured
Custom
Stock
About
Let's Talk!
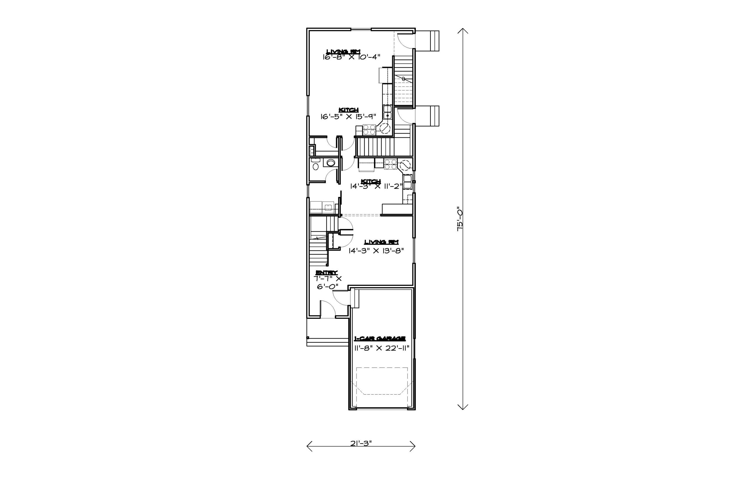
2-2465-20UE
Download PDF
Back to search
Type:
Two-Story
Style:
Craftsman
2465 sq. ft
21' Wide
75' Deep
8 Rooms
6 Bathrooms
Main Floor
Upper Floor
Basement
Front Elevation
Rear Elevation