Skip to content
CREATIONS WEST
Home
Featured
Custom
Stock
About
Home
Featured
Custom
Stock
About
Let's Talk!
2-2489-25UE
Download PDF
Back to search
Type:
Two-Story
Style:
Contemporary
,
Craftsman
,
Modern
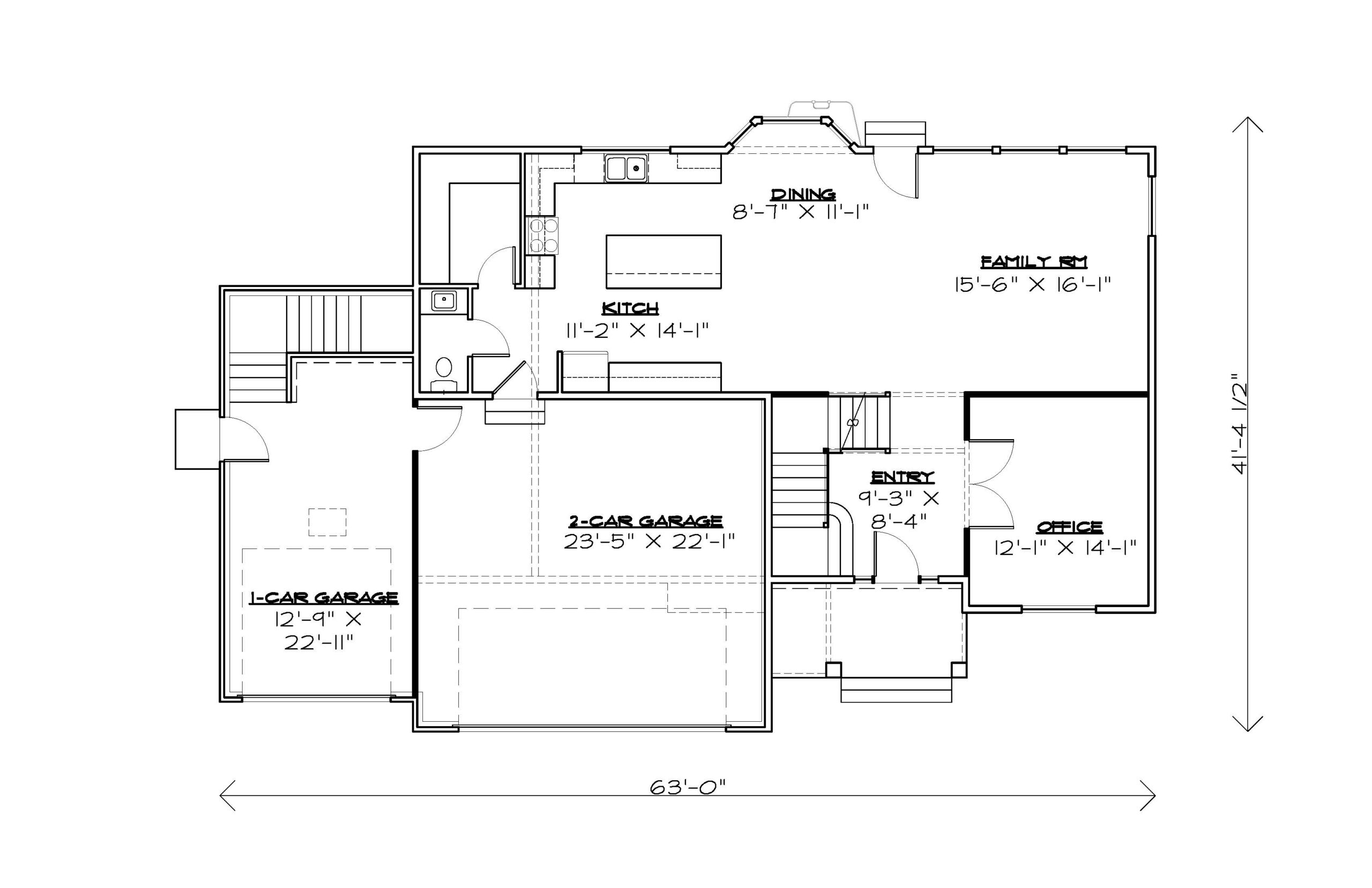
2489 sq. ft
63' Wide
41' Deep
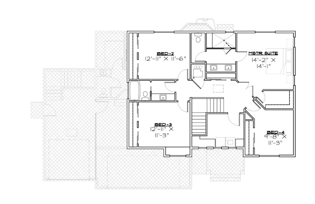
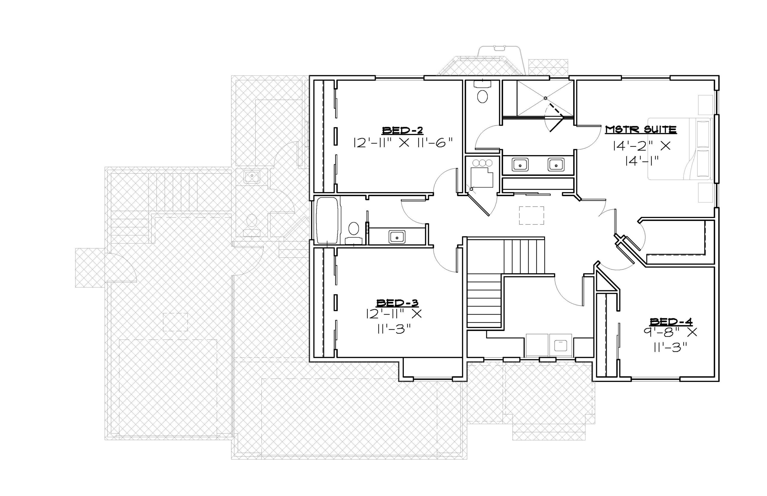
6 Rooms
4 Bathrooms
Main Floor
Upper Floor
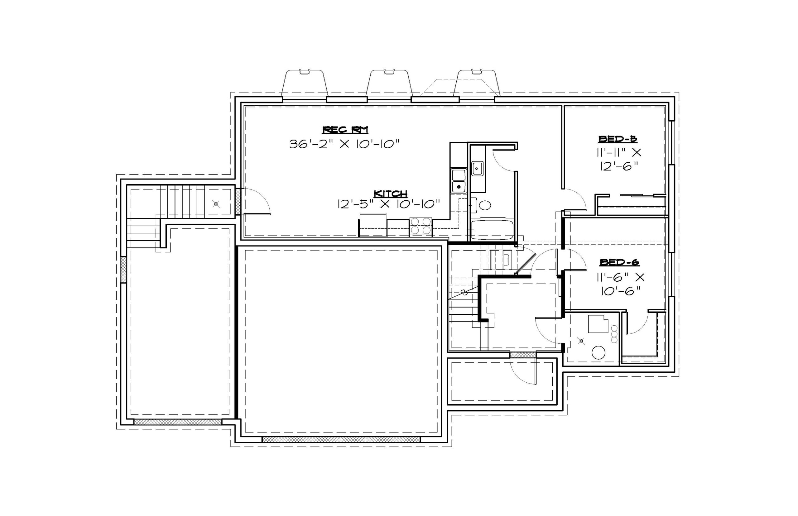
Basement
Front Elevation
Rear Elevation