Skip to content
CREATIONS WEST
Home
Featured
Custom
Stock
About
Home
Featured
Custom
Stock
About
Let's Talk!
2-2643-25UE
Download PDF
Back to search
Type:
Two-Story
Style:
Contemporary
,
Craftsman
2643 sq. ft
43' Wide
48' Deep
6 Rooms
4 Bathrooms
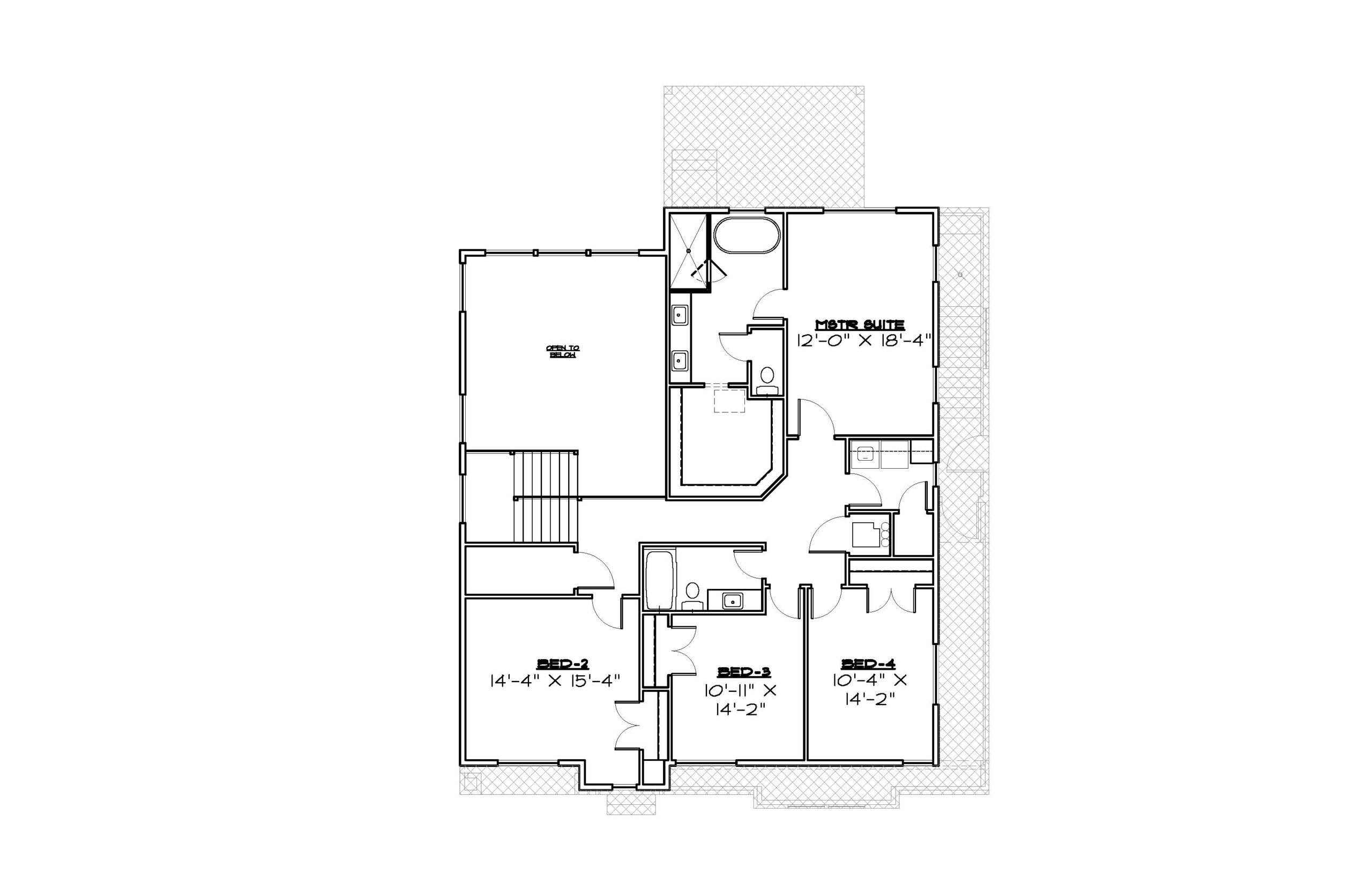
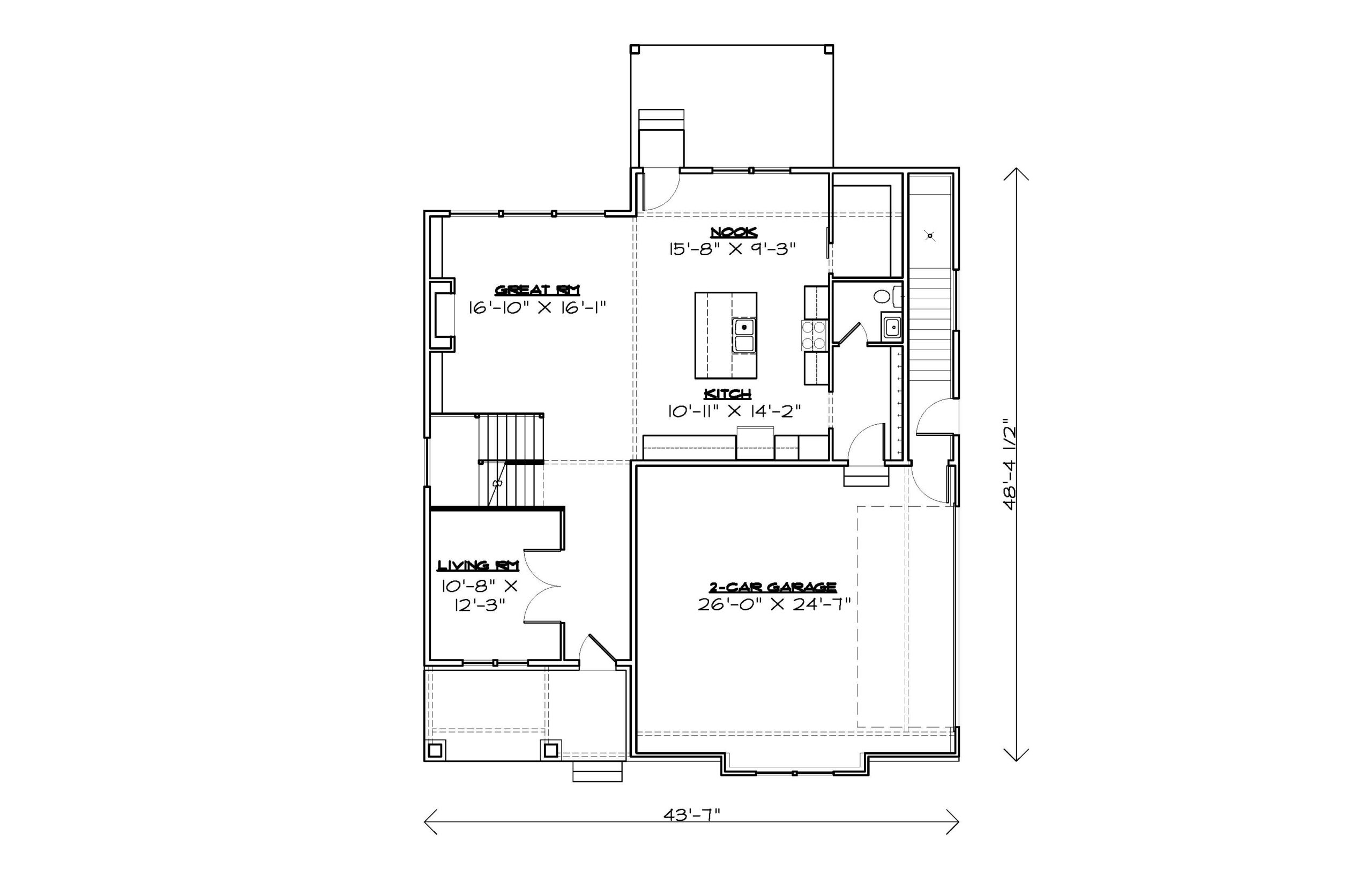
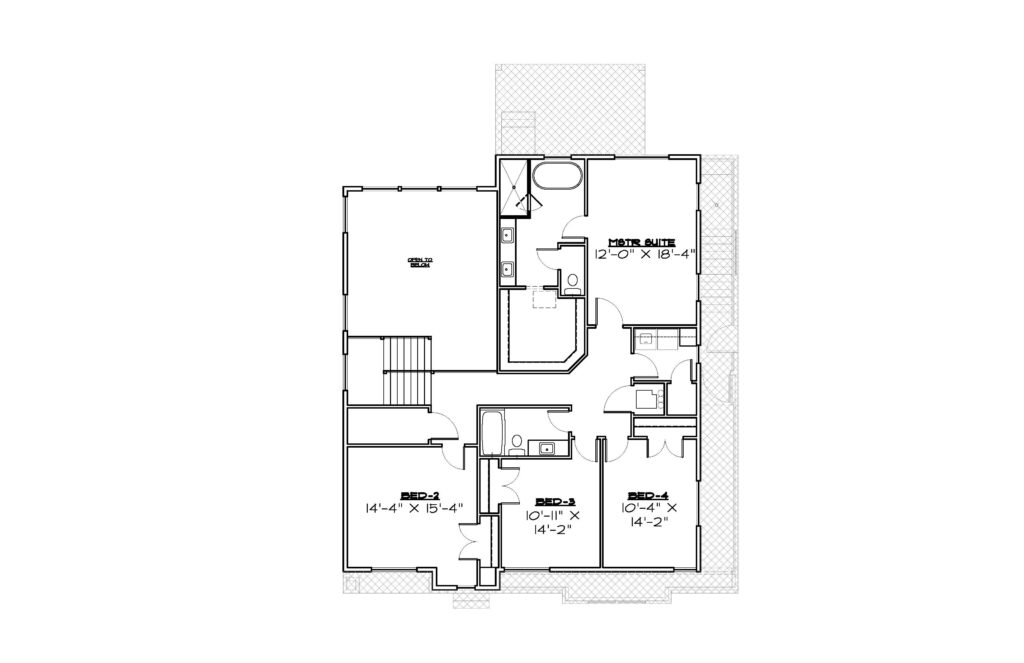
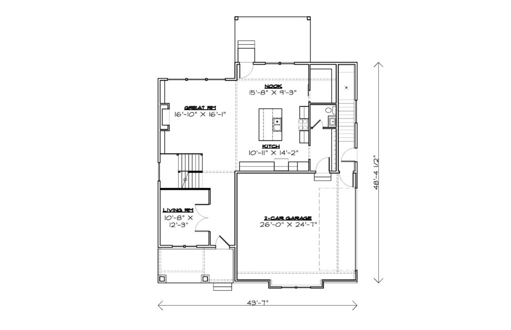
Main Floor
Upper Floor
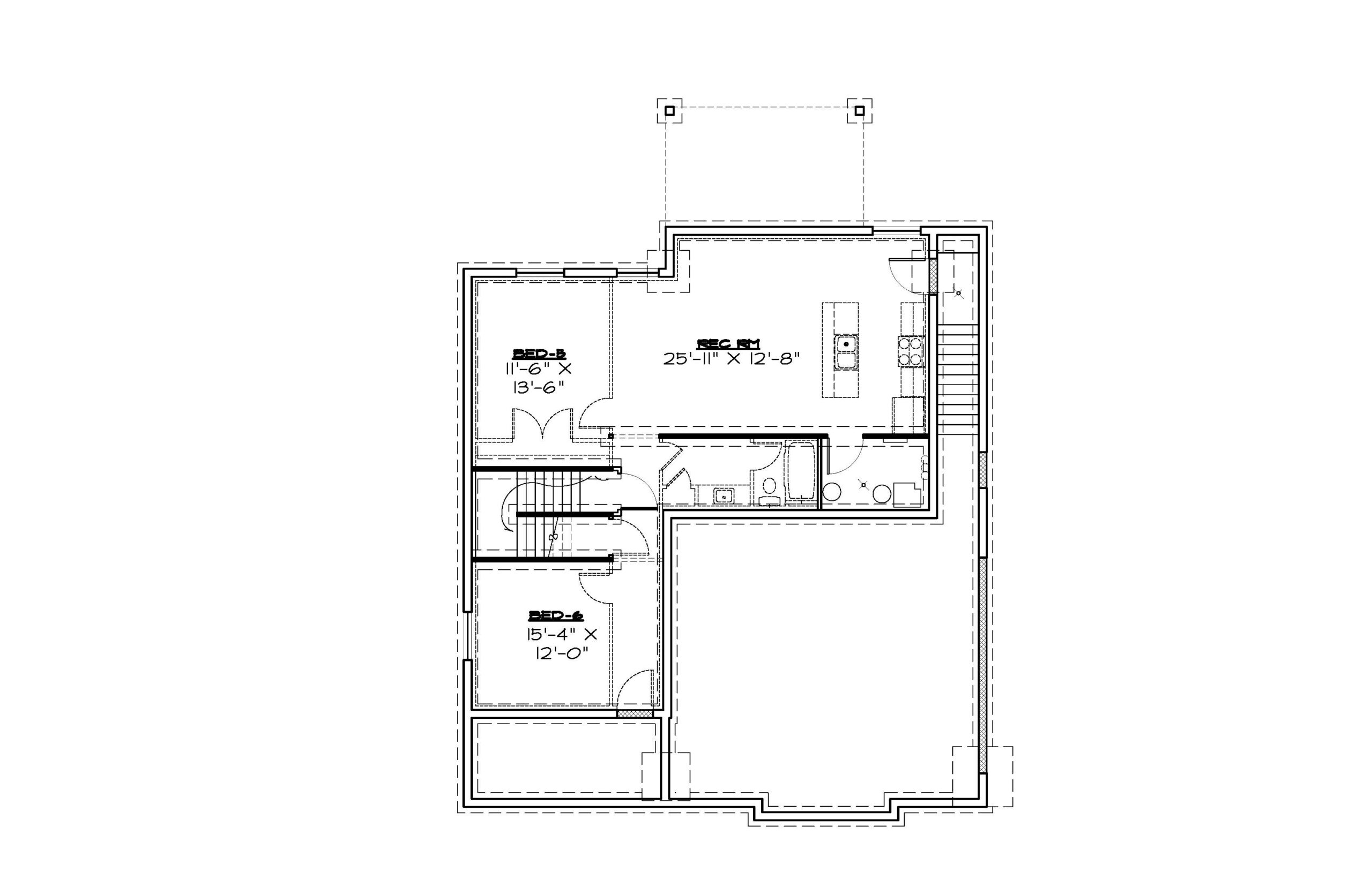
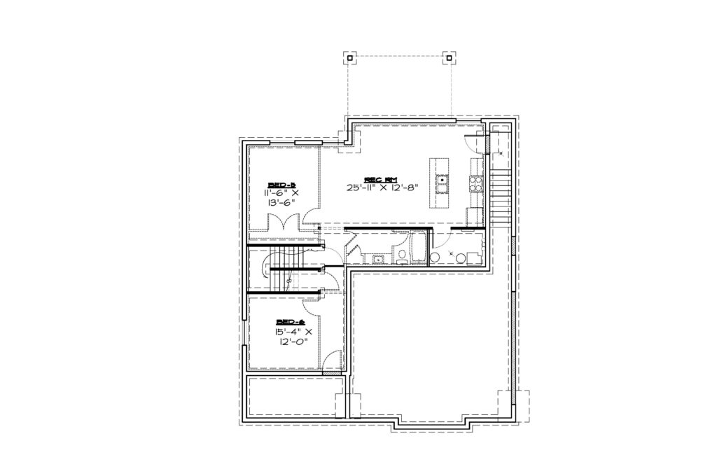
Basement