Skip to content
CREATIONS WEST
Home
Featured
Custom
Stock
About
Home
Featured
Custom
Stock
About
Let's Talk!
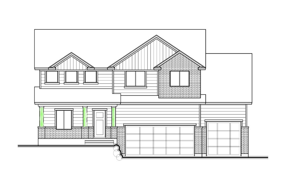
2-2664-25UE
Download PDF
Back to search
Type:
Two-Story
Style:
Contemporary
,
Craftsman
,
Modern
2664 sq. ft
54' Wide
50' Deep
5 Rooms
4 Bathrooms
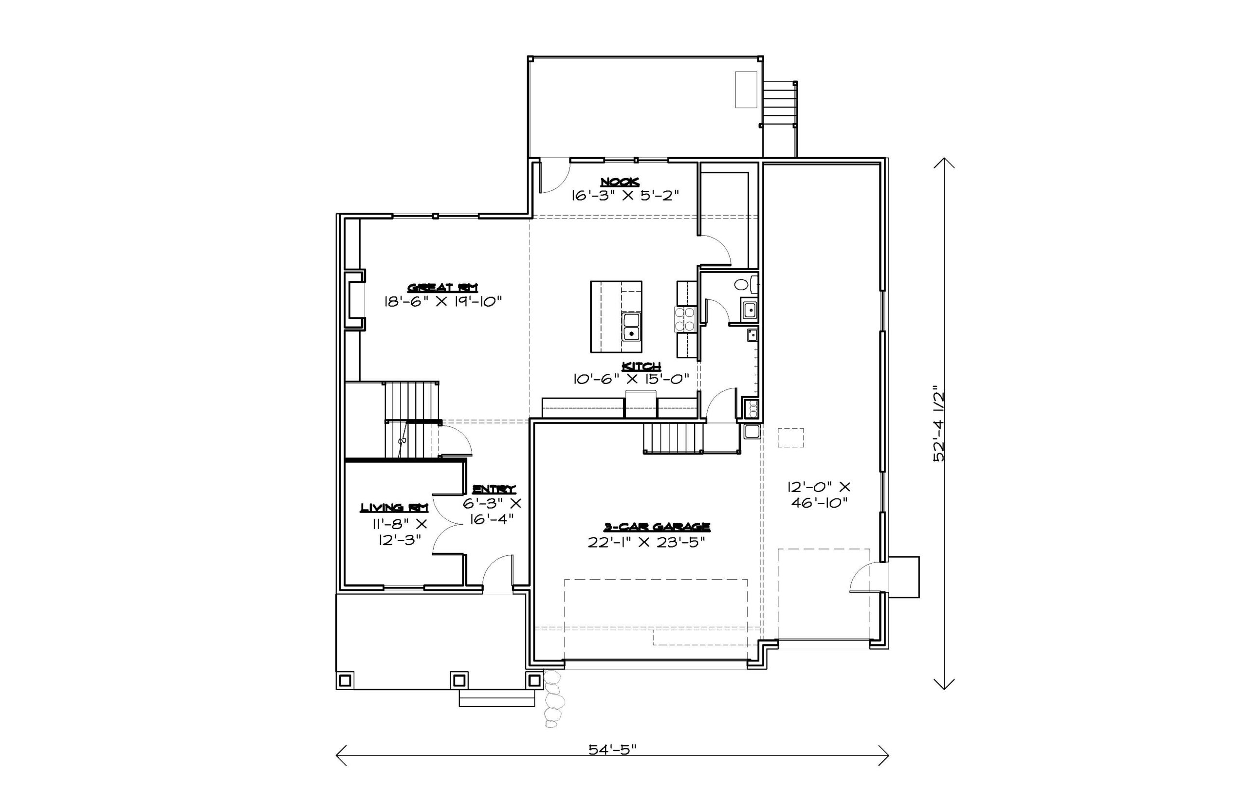
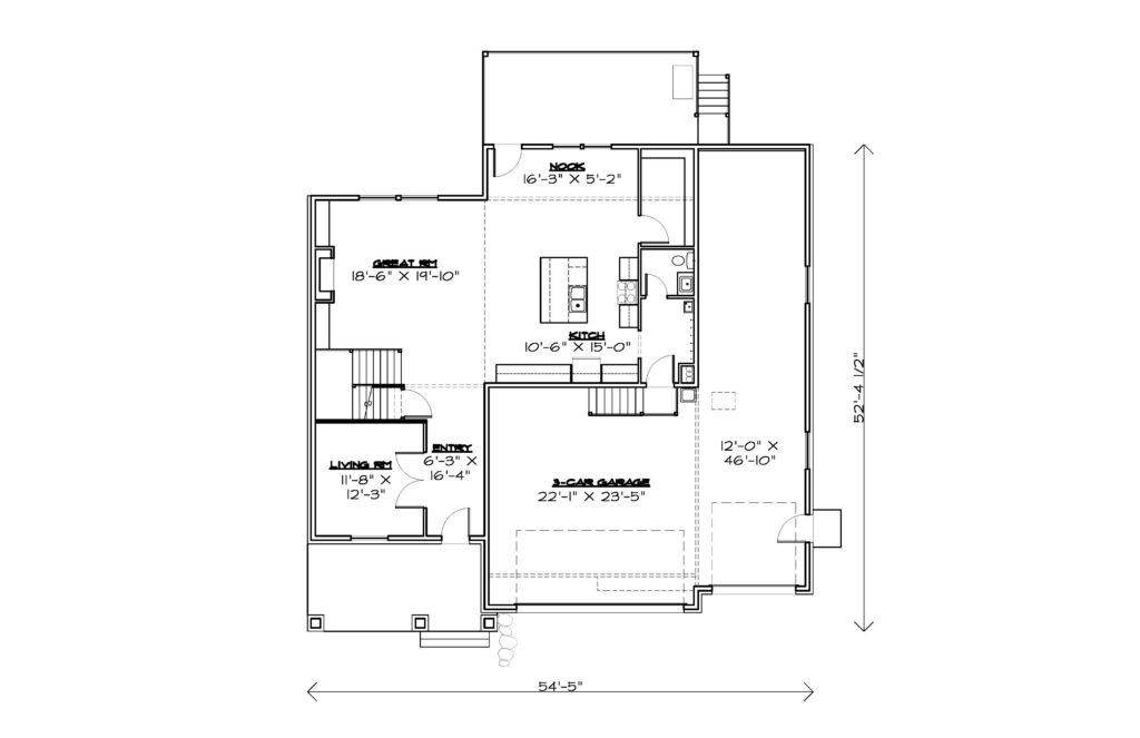
Main Floor
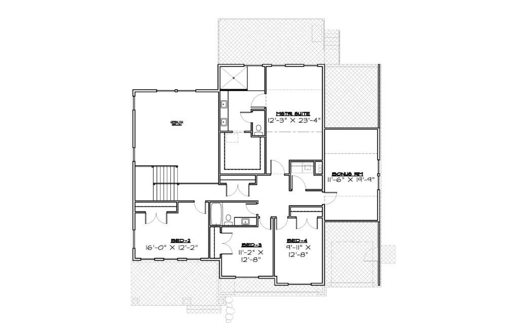
Upper Floor
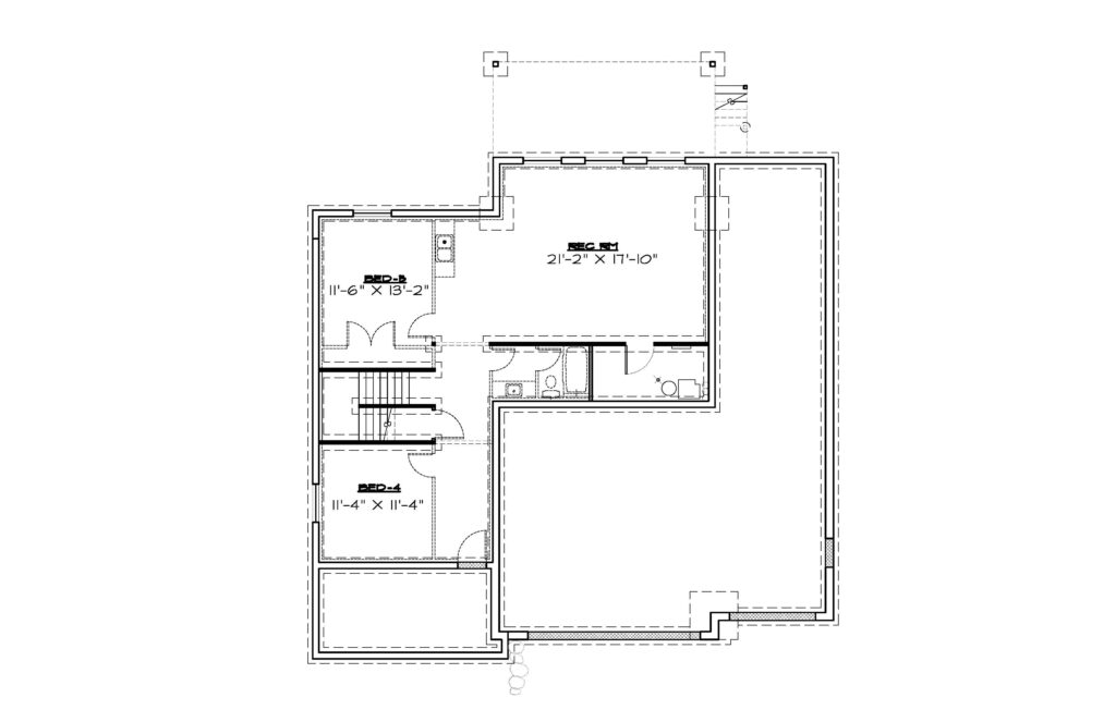
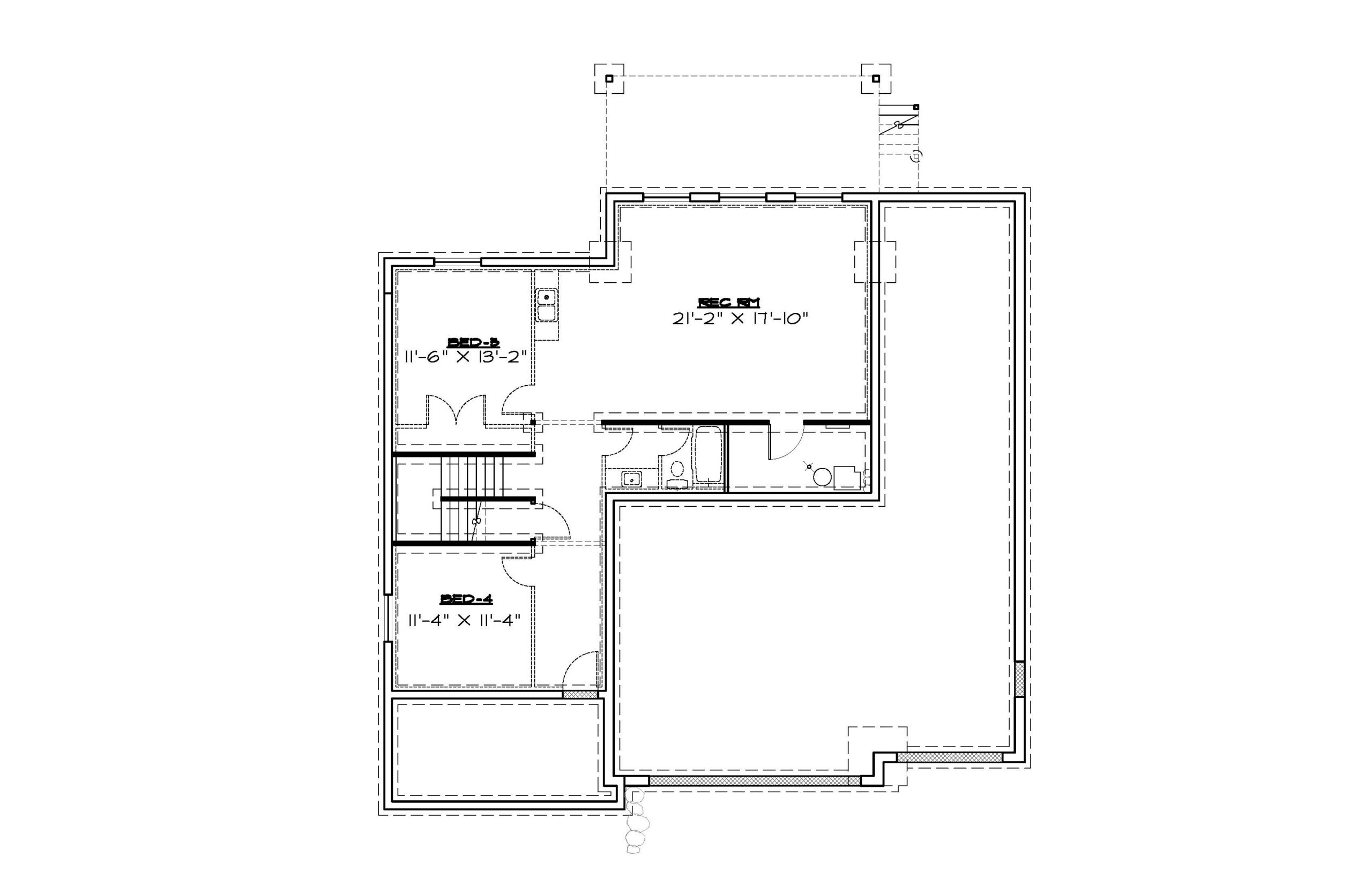
Basement
Front Elevation
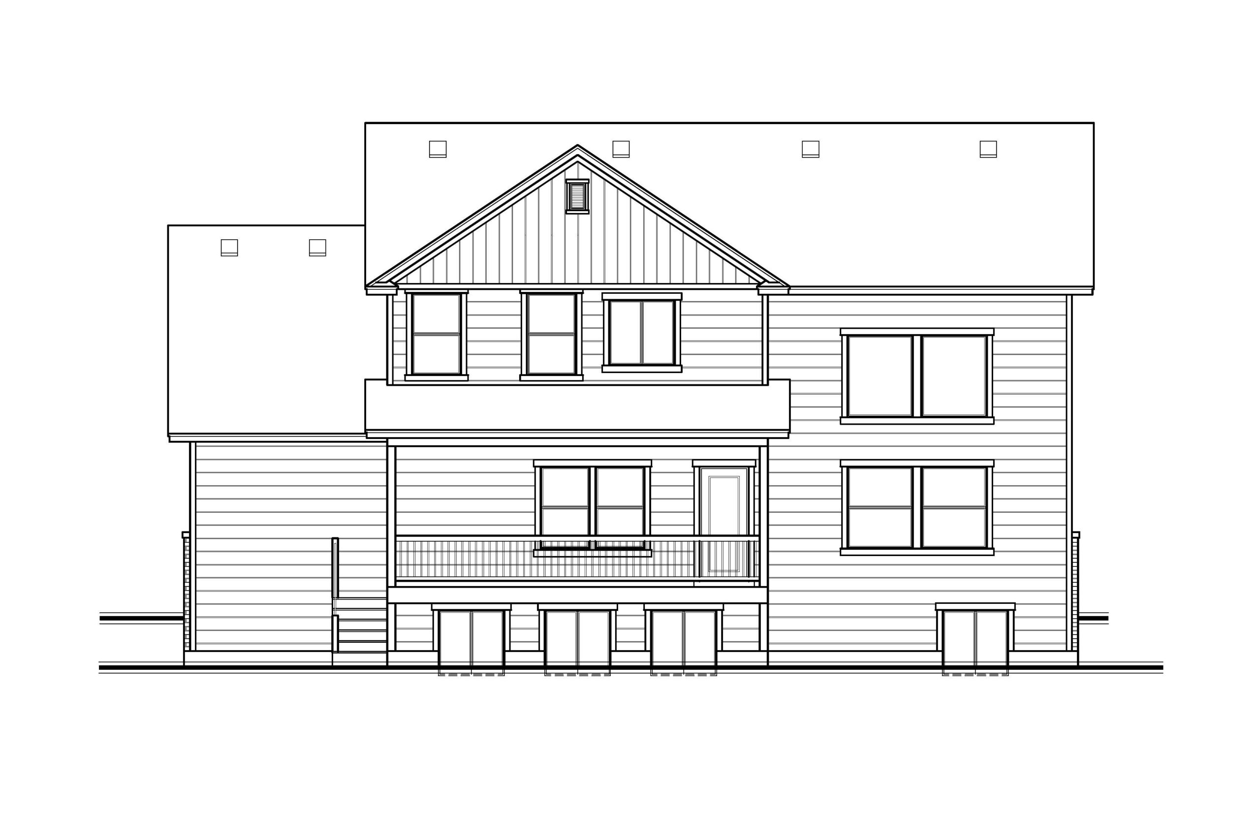
Rear Elevation