Skip to content
CREATIONS WEST
Home
Featured
Custom
Stock
About
Home
Featured
Custom
Stock
About
Let's Talk!
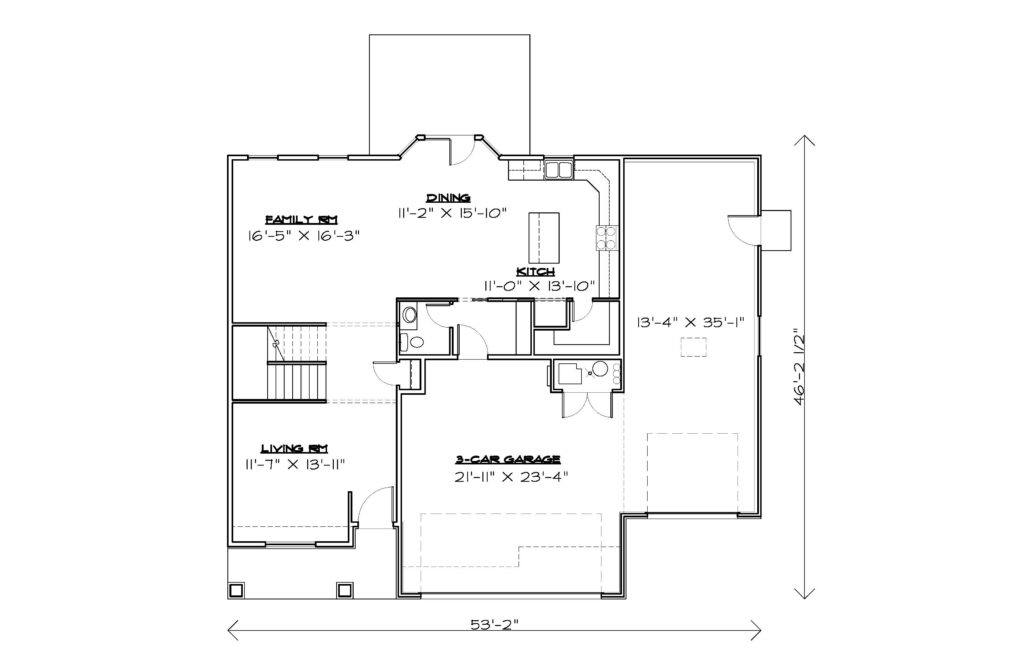
2-2671-21UE
Download PDF
Back to search
Type:
Two-Story
Style:
Craftsman
2671 sq. ft
53' Wide
46' Deep
4 Rooms
2.5 Bathrooms
Main Floor
Main Floor
Upper Floor
Upper Floor
Front Elevation
Rear Elevation