Skip to content
CREATIONS WEST
Home
Featured
Custom
Stock
About
Home
Featured
Custom
Stock
About
Let's Talk!
2-2671-23UE
Download PDF
Back to search
Type:
Two-Story
Style:
Prairie
2671 sq. ft
54' Wide
51' Deep
4 Rooms
3.5 Bathrooms
Main Floor
Upper Floor
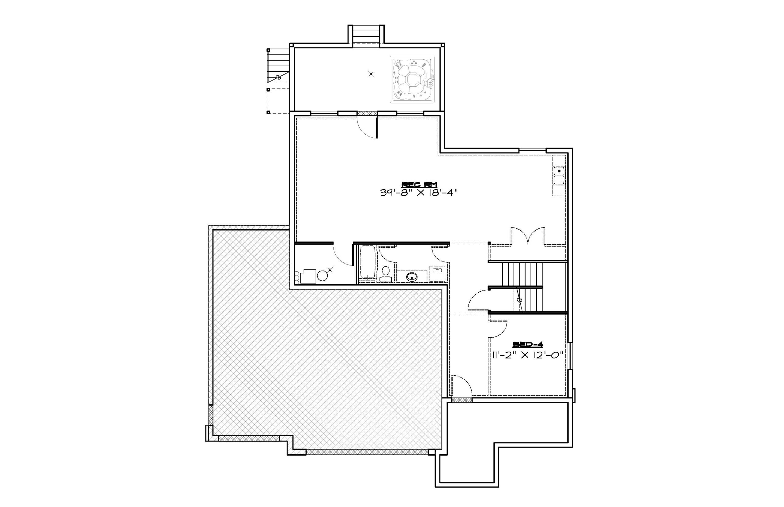
Basement
Front Elevation
Rear Elevation