Skip to content
CREATIONS WEST
Home
Featured
Custom
Stock
About
Home
Featured
Custom
Stock
About
Let's Talk!
2-2691-21UE
Download PDF
Back to search
Type:
Two-Story
Style:
Modern Farmhouse
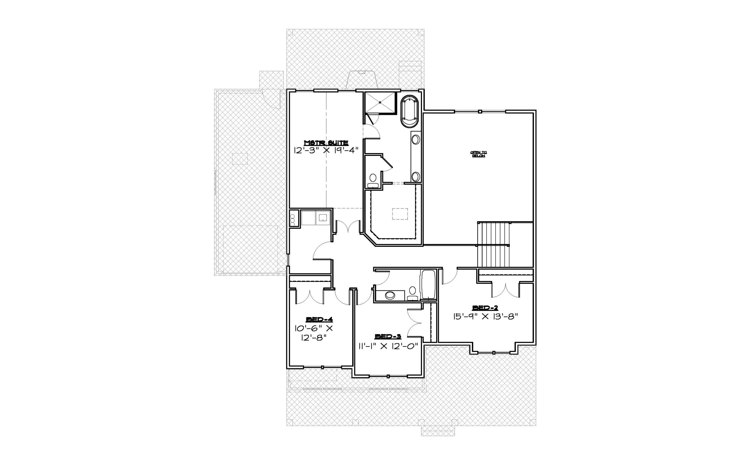
2691 sq. ft
53' Wide
50' Deep
4 Rooms
2.5 Bathrooms
Main Floor
Upper Floor
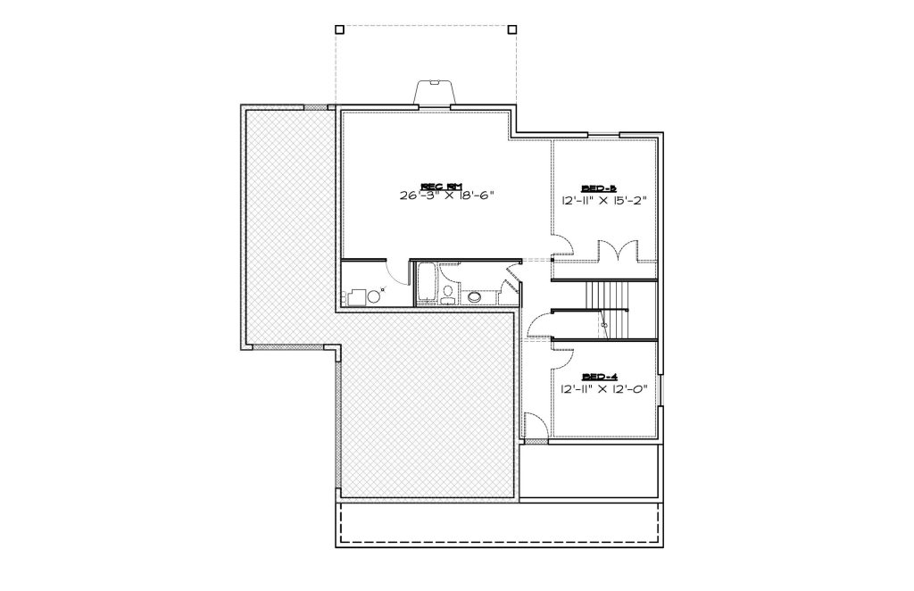
Basement
Front Elevation
Rear Elevation