Skip to content
CREATIONS WEST
Home
Featured
Custom
Stock
About
Home
Featured
Custom
Stock
About
Let's Talk!
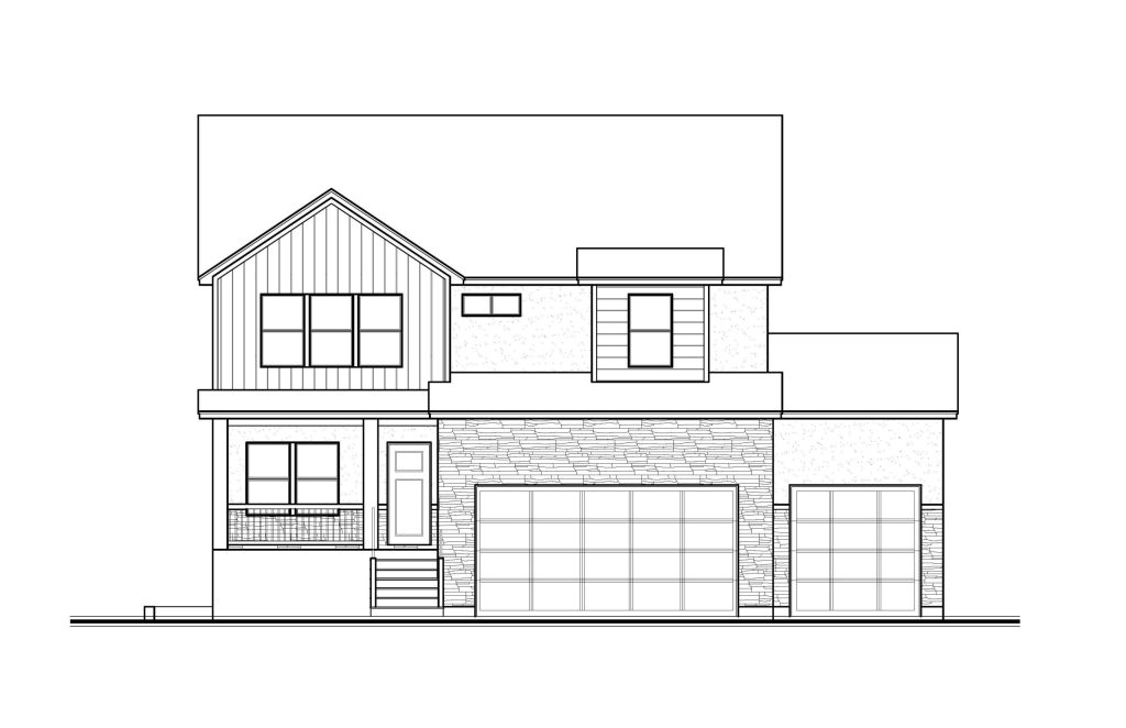
2-2783-23UE
Download PDF
Back to search
Type:
Two-Story
Style:
Craftsman
2783 sq. ft
50' Wide
50' Deep
5 Rooms
3.5 Bathrooms
Main Floor
Upper Floor
Basement
Front Elevation
Rear Elevation