Skip to content
CREATIONS WEST
Home
Featured
Custom
Stock
About
Home
Featured
Custom
Stock
About
Let's Talk!
2-3403-25UE
Download PDF
Back to search
Type:
Two-Story
Style:
Contemporary
,
Craftsman
3403 sq. ft
54' Wide
52' Deep
6 Rooms
4 Bathrooms
Main Floor
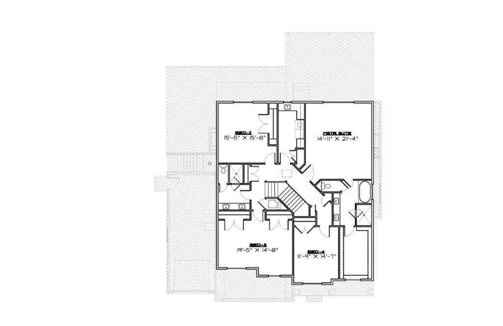
Upper Floor
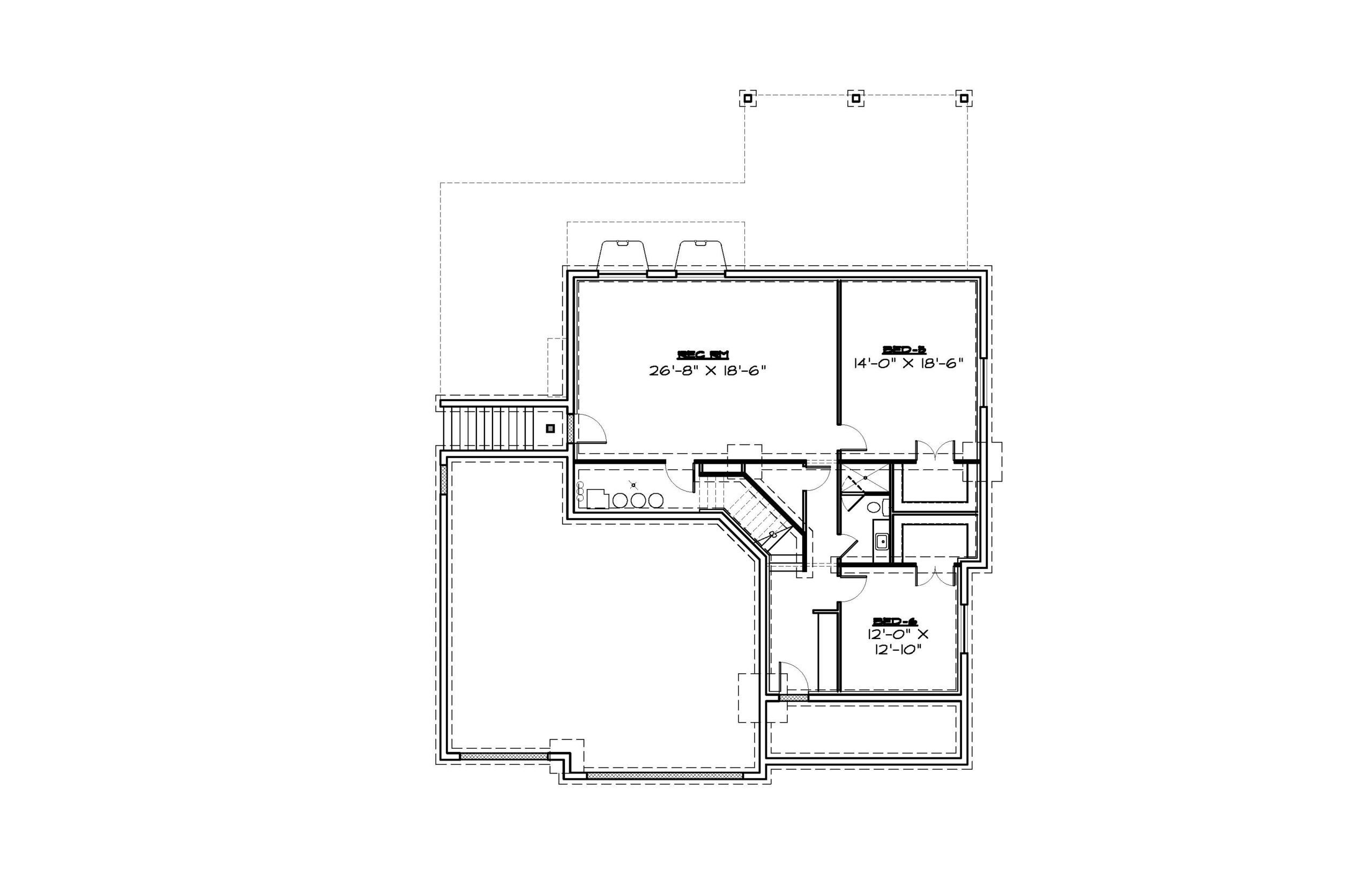
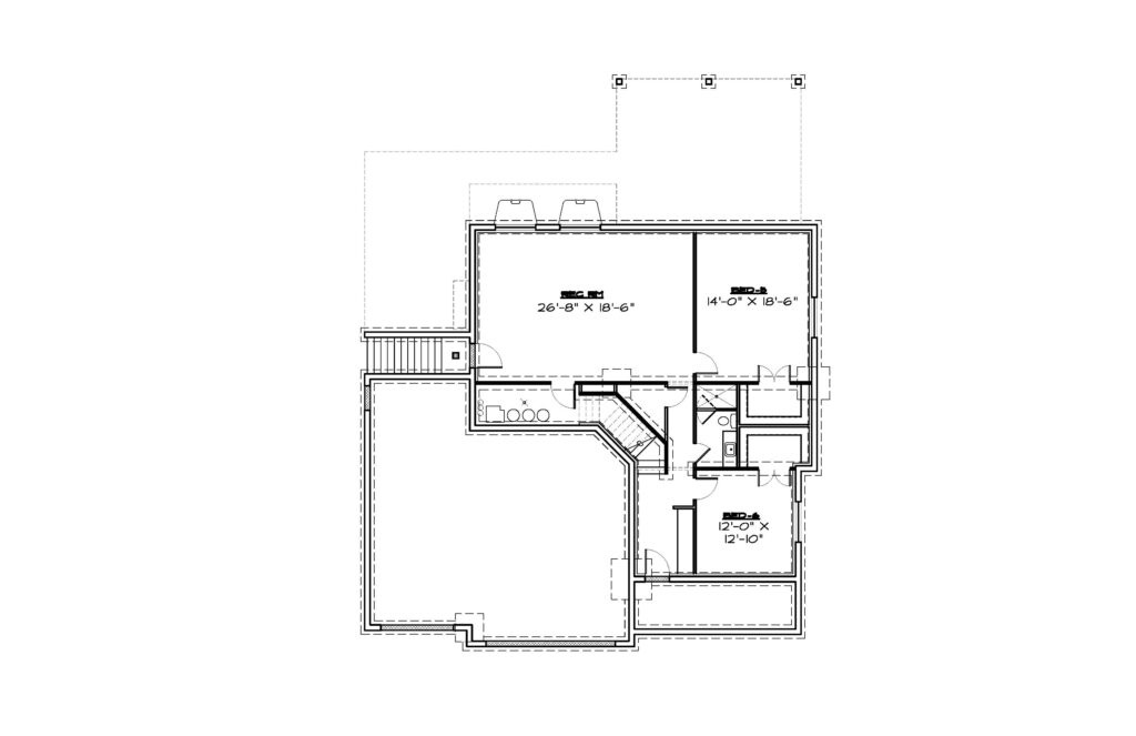
Basement
Front Elevation
Rear Elevation