Skip to content
CREATIONS WEST
Home
Featured
Custom
Stock
About
Home
Featured
Custom
Stock
About
Let's Talk!
2-3499-03CE
Download PDF
Back to search
Type:
Two-Story
Style:
Traditional
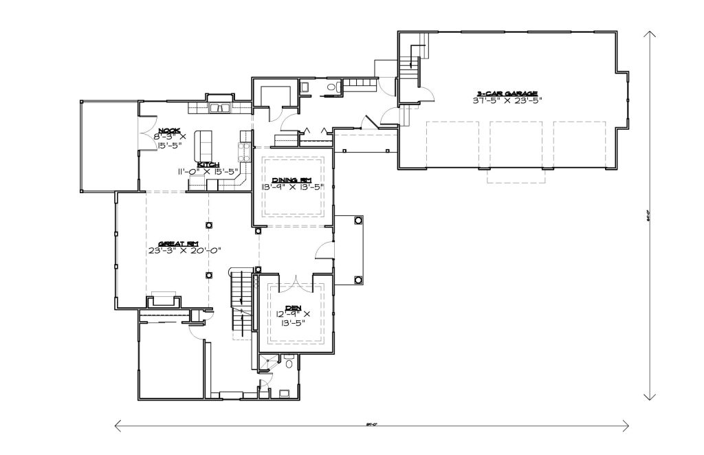
4010 sq. ft
95' Wide
64' Deep
5 Rooms
4 Bathrooms
Main Floor
Upper Floor
Basement
Front Elevation
Rear Elevation