Skip to content
CREATIONS WEST
Home
Featured
Custom
Stock
About
Home
Featured
Custom
Stock
About
Let's Talk!
2-4478-10UE
Download PDF
Back to search
Type:
Two-Story
Style:
Craftsman
4478 sq. ft
89' Wide
56' Deep
5 Rooms
5 Bathrooms
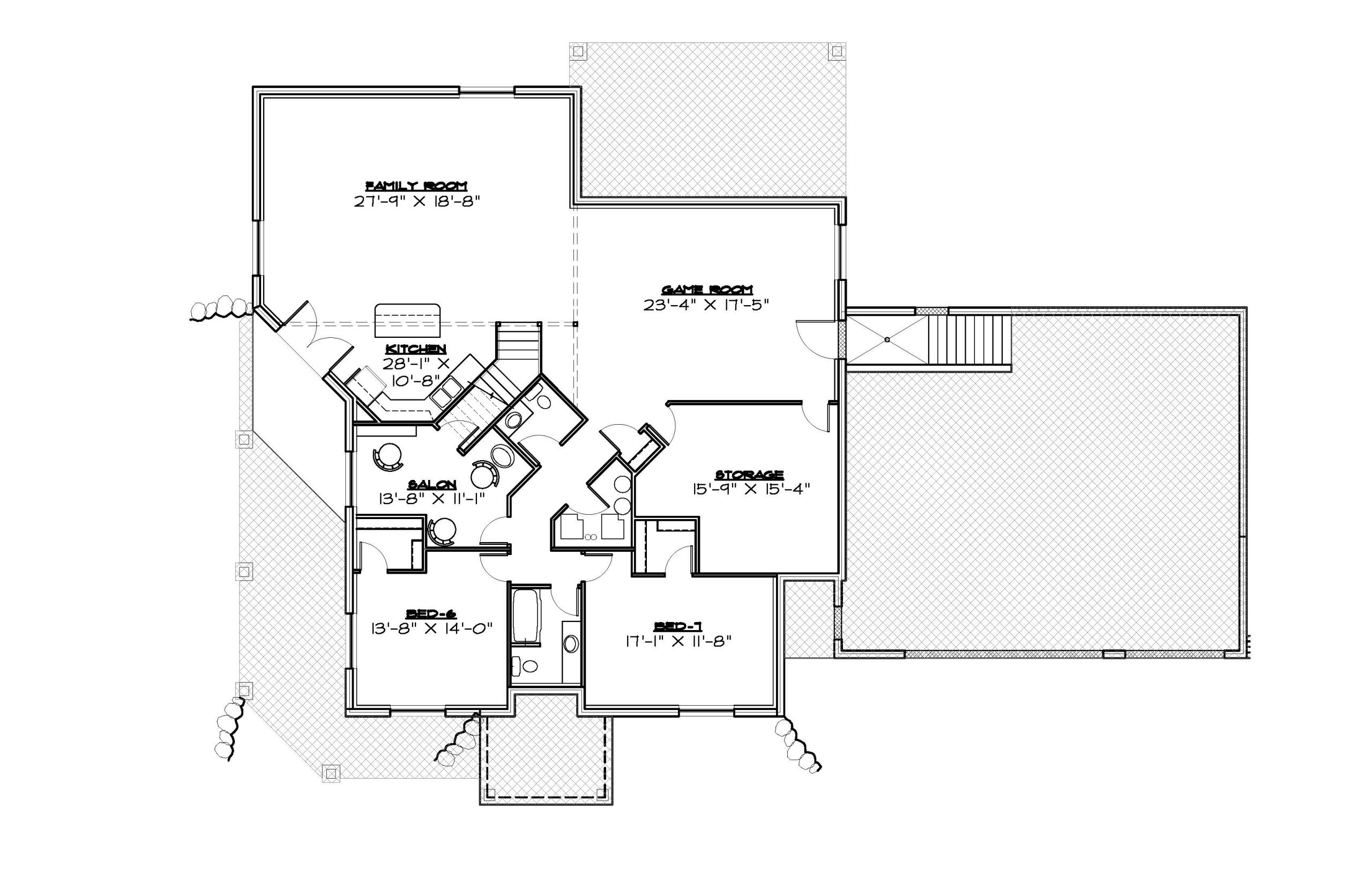
Main Floor
Upper Floor
Basement
Front Elevation
Rear Elevation