Skip to content
CREATIONS WEST
Home
Featured
Custom
Stock
About
Home
Featured
Custom
Stock
About
Let's Talk!
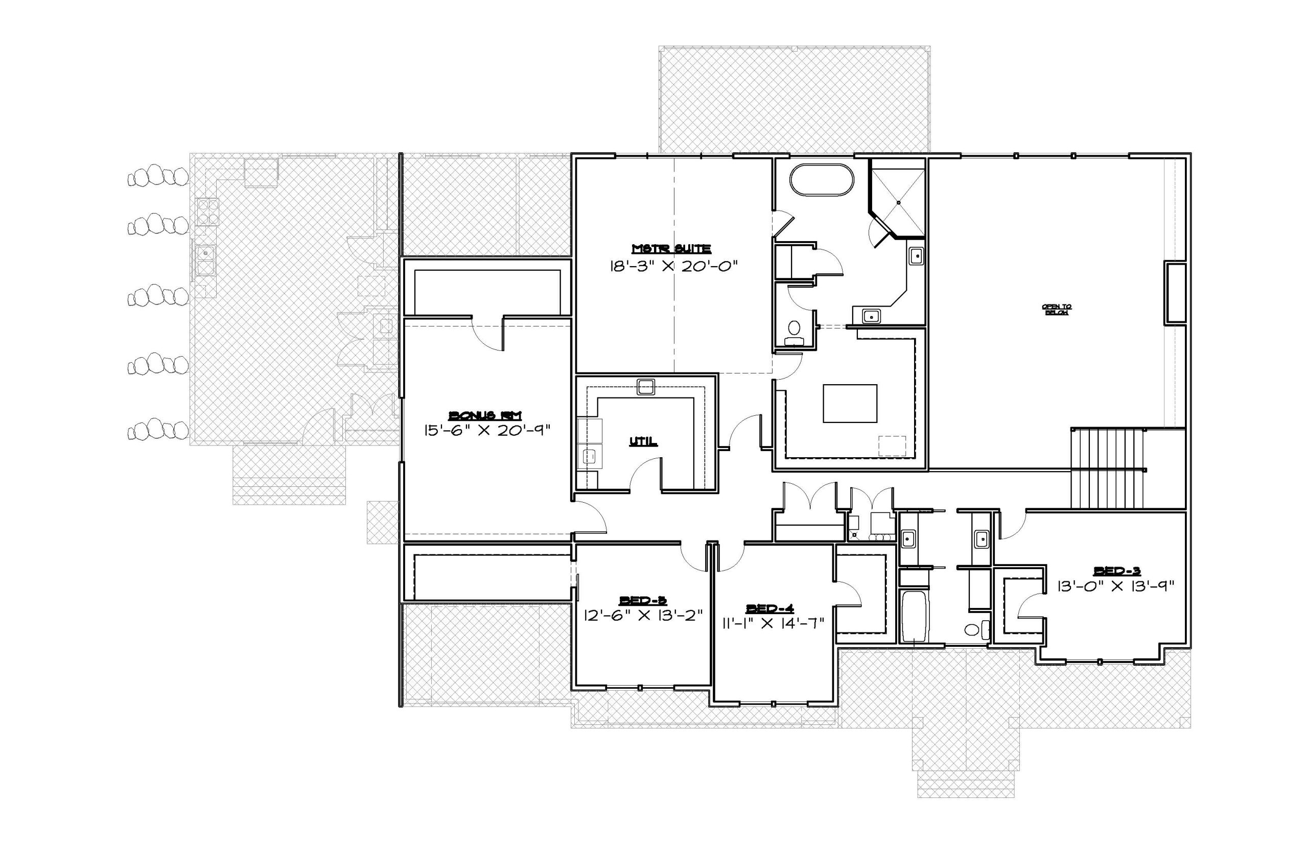
2-4507-23UE
Download PDF
Back to search
Type:
Two-Story
Style:
Modern Farmhouse
4507 sq. ft
93' Wide
54' Deep
7 Rooms
5 Bathrooms
Main Floor
Upper Floor
Basement
Front Elevation
Rear Elevation