Skip to content
CREATIONS WEST
Home
Featured
Custom
Stock
About
Home
Featured
Custom
Stock
About
Let's Talk!
2-4643-07UE
Download PDF
Back to search
Type:
Two-Story
Style:
Traditional
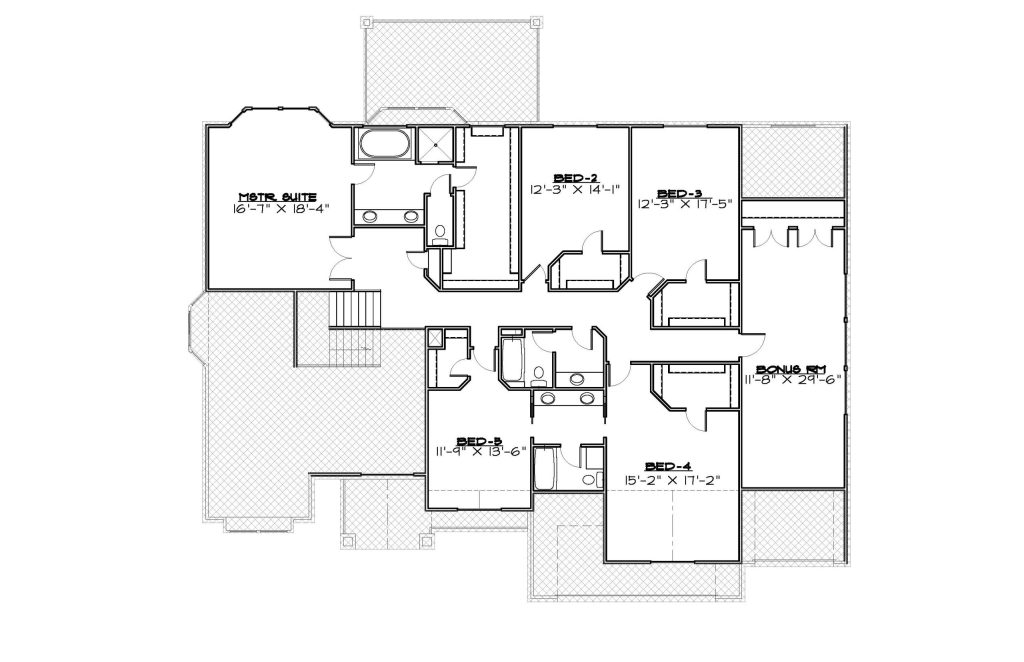
4643 sq. ft
76' Wide
57' Deep
7 Rooms
4 Bathrooms
Main Floor
Upper Floor
Basement
Front Elevation
Rear Elevation