Skip to content
CREATIONS WEST
Home
Featured
Custom
Stock
About
Home
Featured
Custom
Stock
About
Let's Talk!
2-4648-15UE
Download PDF
Back to search
Type:
Two-Story
Style:
Prairie
4648 sq. ft
73' Wide
60' Deep
5 Rooms
4 Bathrooms
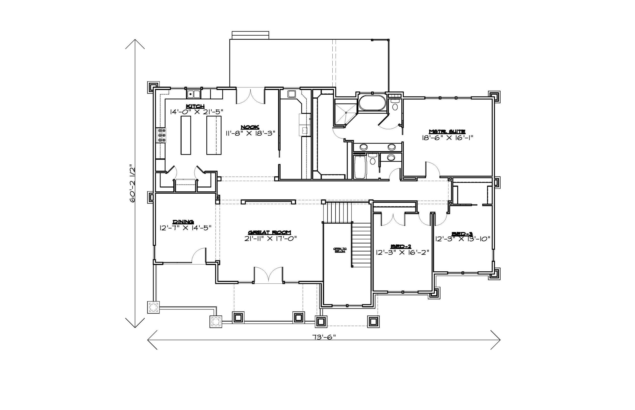
Main Floor
Basement
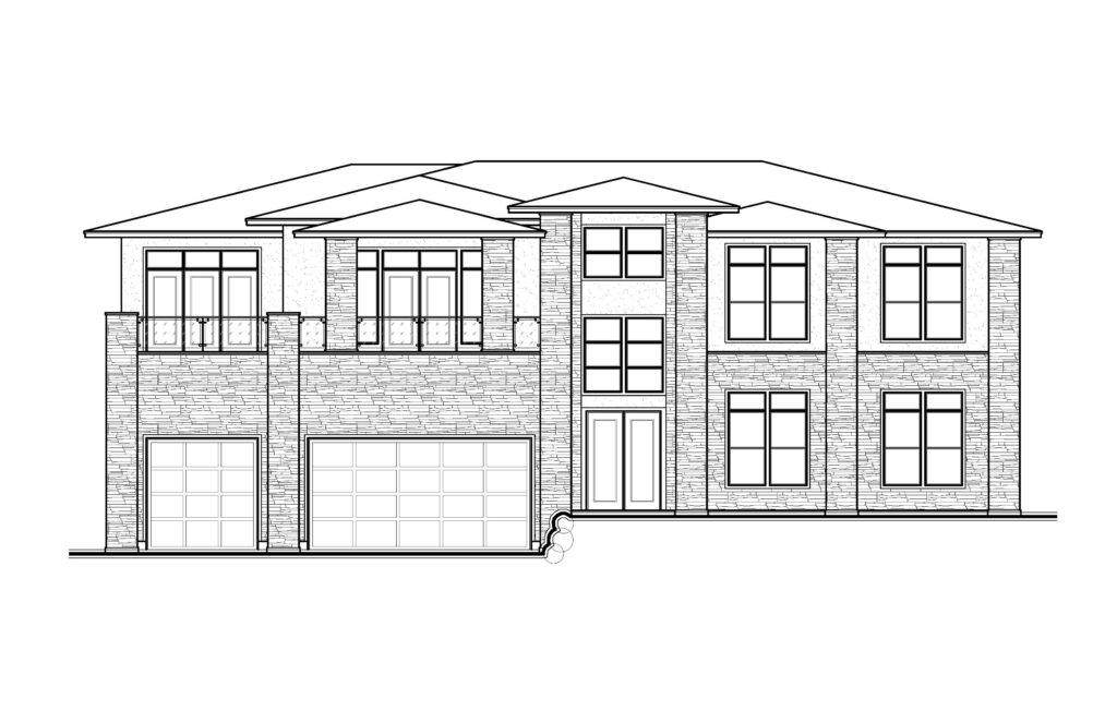
Front Elevation
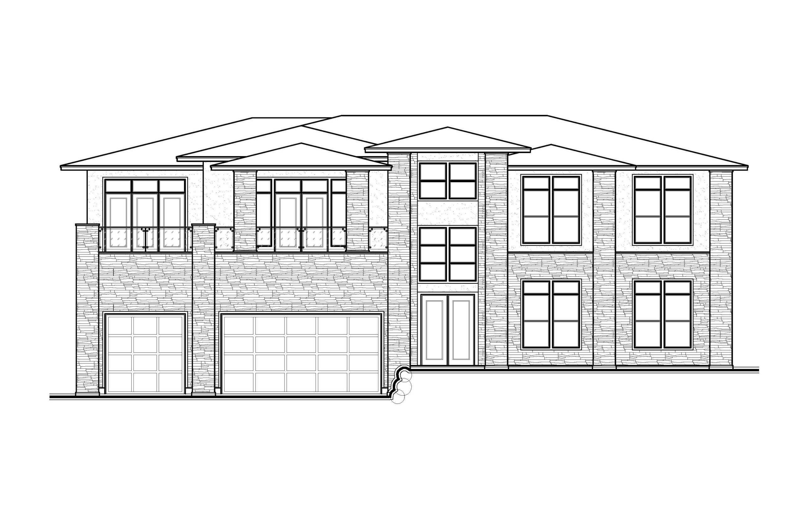
Rear Elevation