Skip to content
CREATIONS WEST
Home
Featured
Custom
Stock
About
Home
Featured
Custom
Stock
About
Let's Talk!
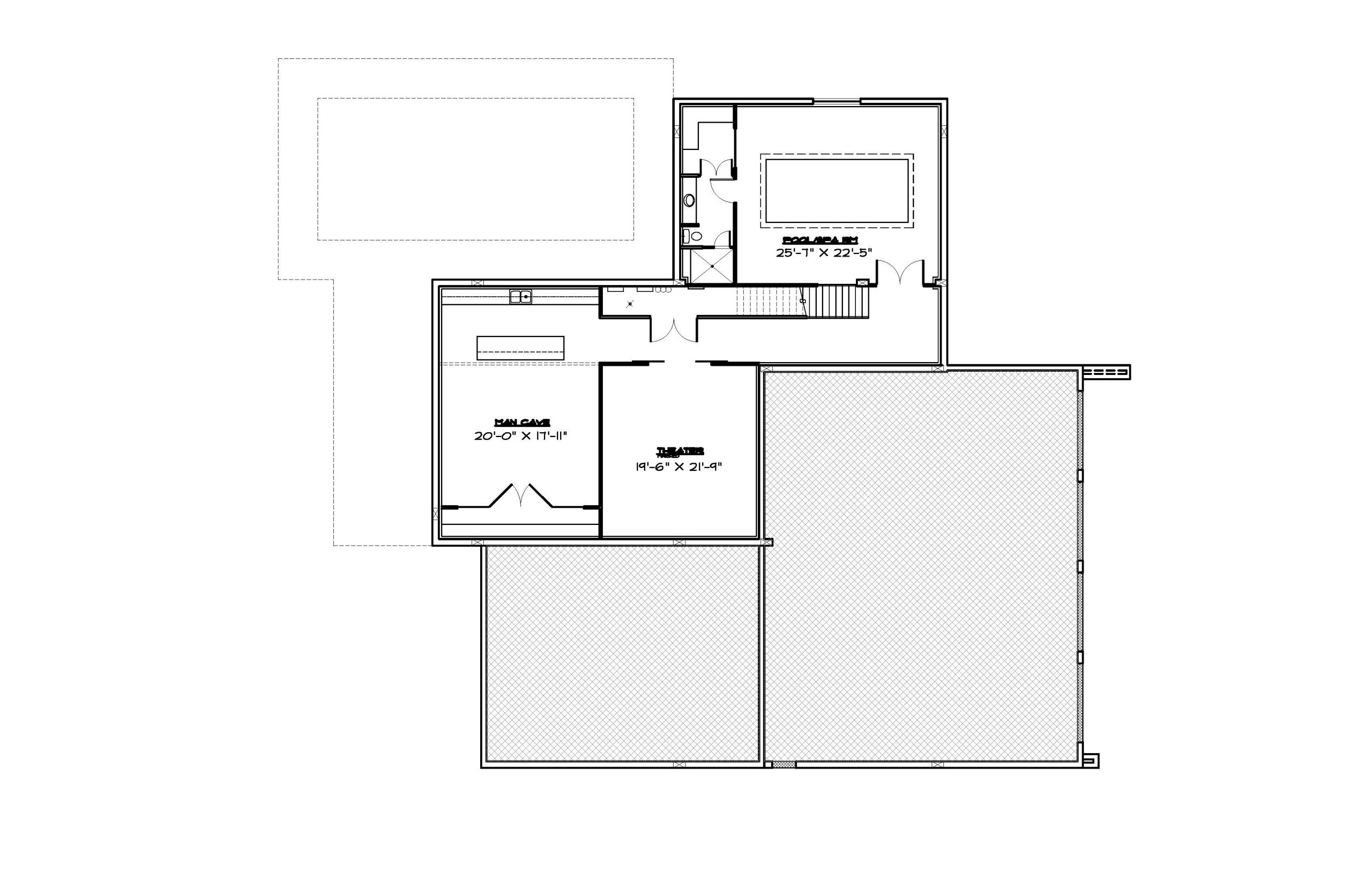
2-5445-22UE
Download PDF
Back to search
Type:
Two-Story
Style:
Modern
5445 sq. ft
88' Wide
85' Deep
5 Rooms
5.5 Bathrooms
Main Floor
Upper Floor
Basement