Skip to content
CREATIONS WEST
Home
Featured
Custom
Stock
About
Home
Featured
Custom
Stock
About
Let's Talk!
7-895-17UE
Download PDF
Back to search
Type:
Multi-Family
Style:
Traditional
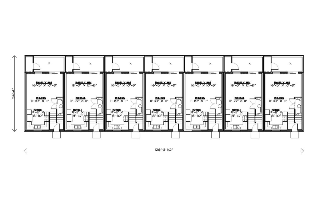
895 sq. ft
126' Wide
34' Deep
2 Rooms
1 Bathrooms
Main Floor
Upper Floor
Front Elevation
Rear Elevation