Skip to content
CREATIONS WEST
Home
Featured
Custom
Stock
About
Home
Featured
Custom
Stock
About
Let's Talk!
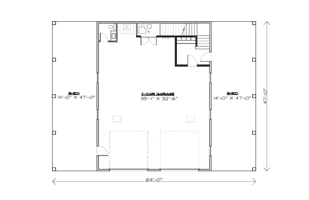
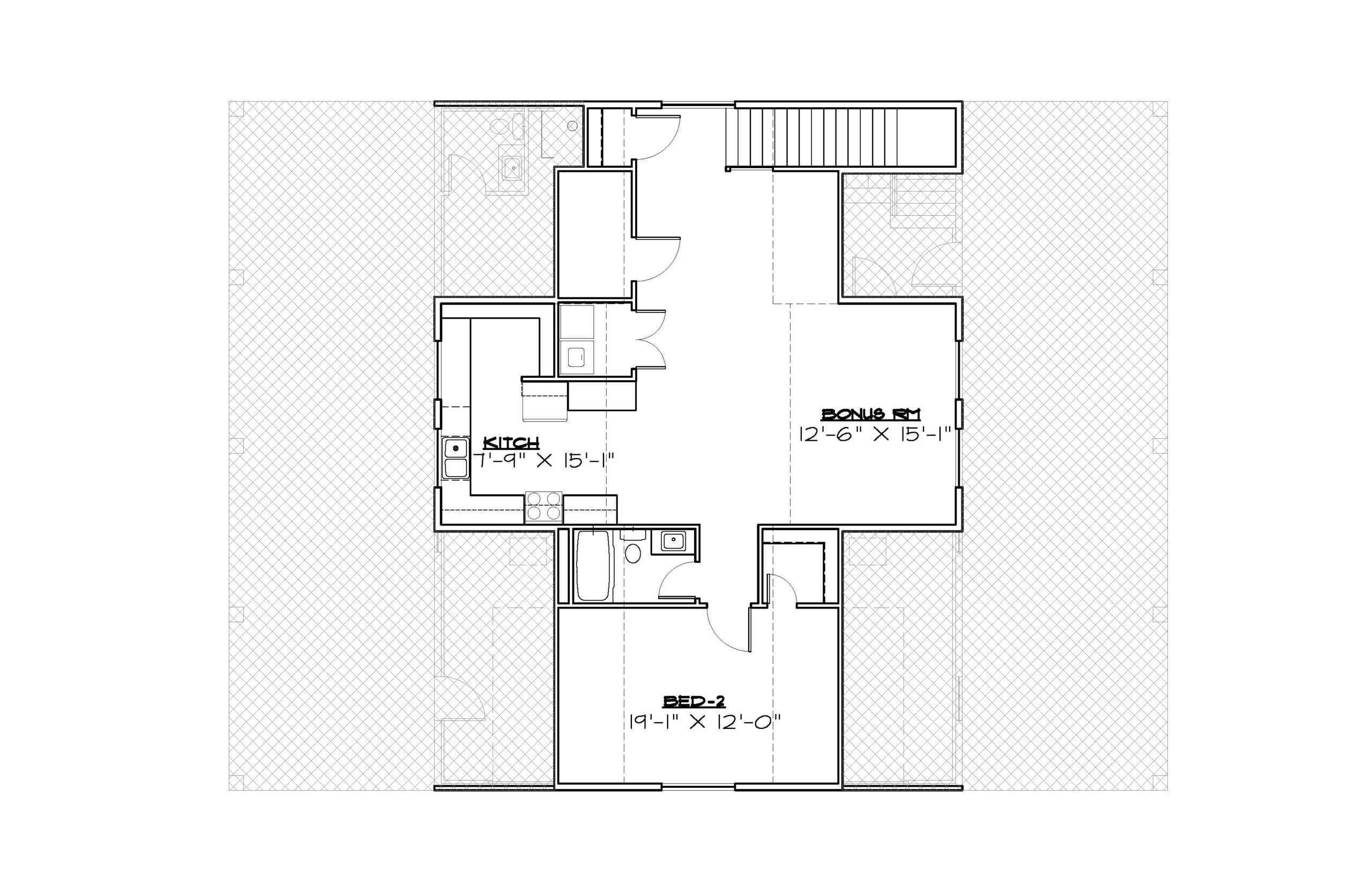
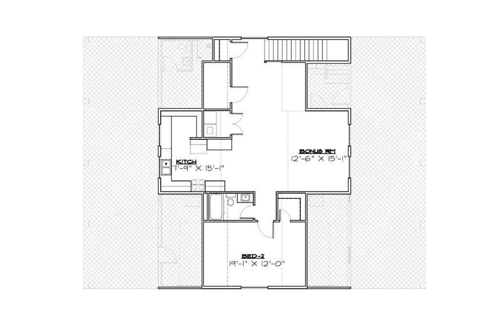
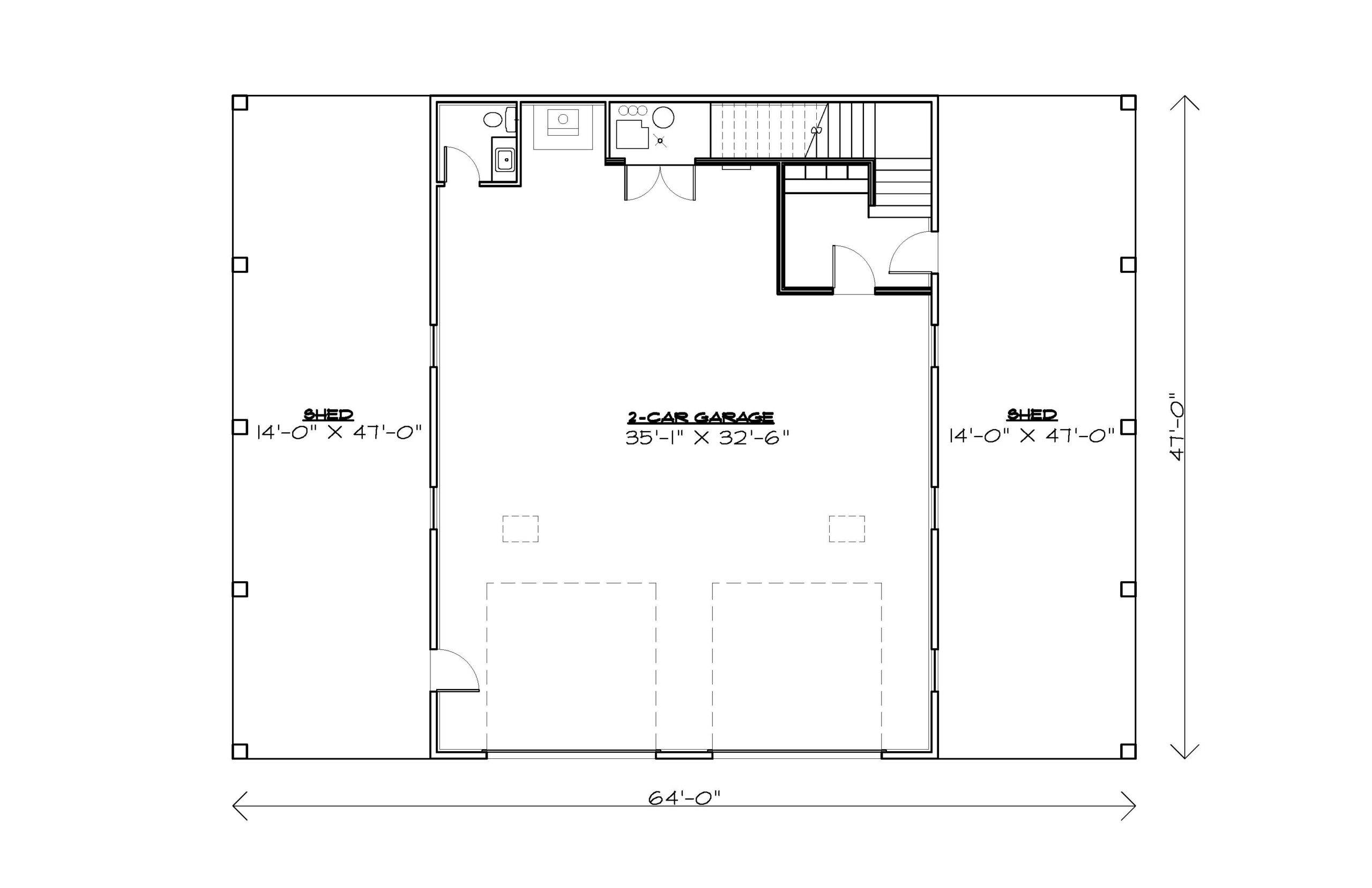
ADU-G-2909-25UE
Download PDF
Back to search
Type:
ADU
,
Garage
Style:
Farmhouse
,
French Country
2909 sq. ft
64' Wide
47' Deep
1 Rooms
1 Bathrooms
Main Floor
Upper Floor
Front Elevation
Rear Elevation