Skip to content
CREATIONS WEST
Home
Featured
Custom
Stock
About
Home
Featured
Custom
Stock
About
Let's Talk!
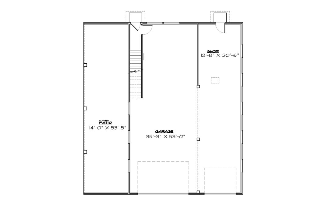
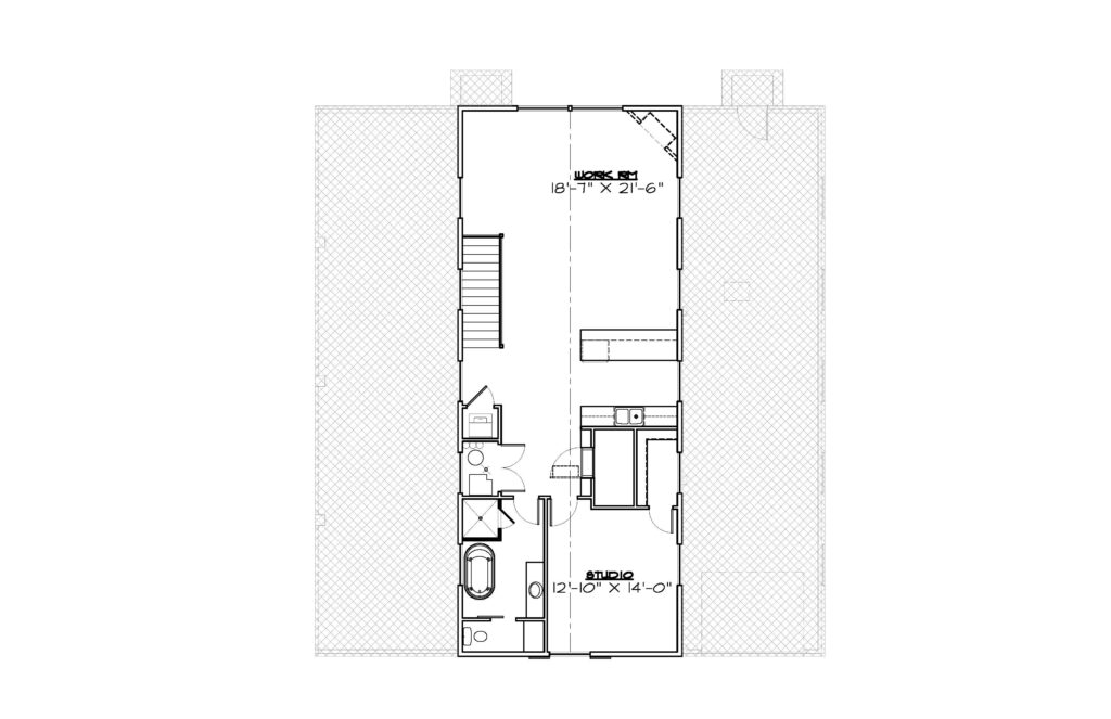
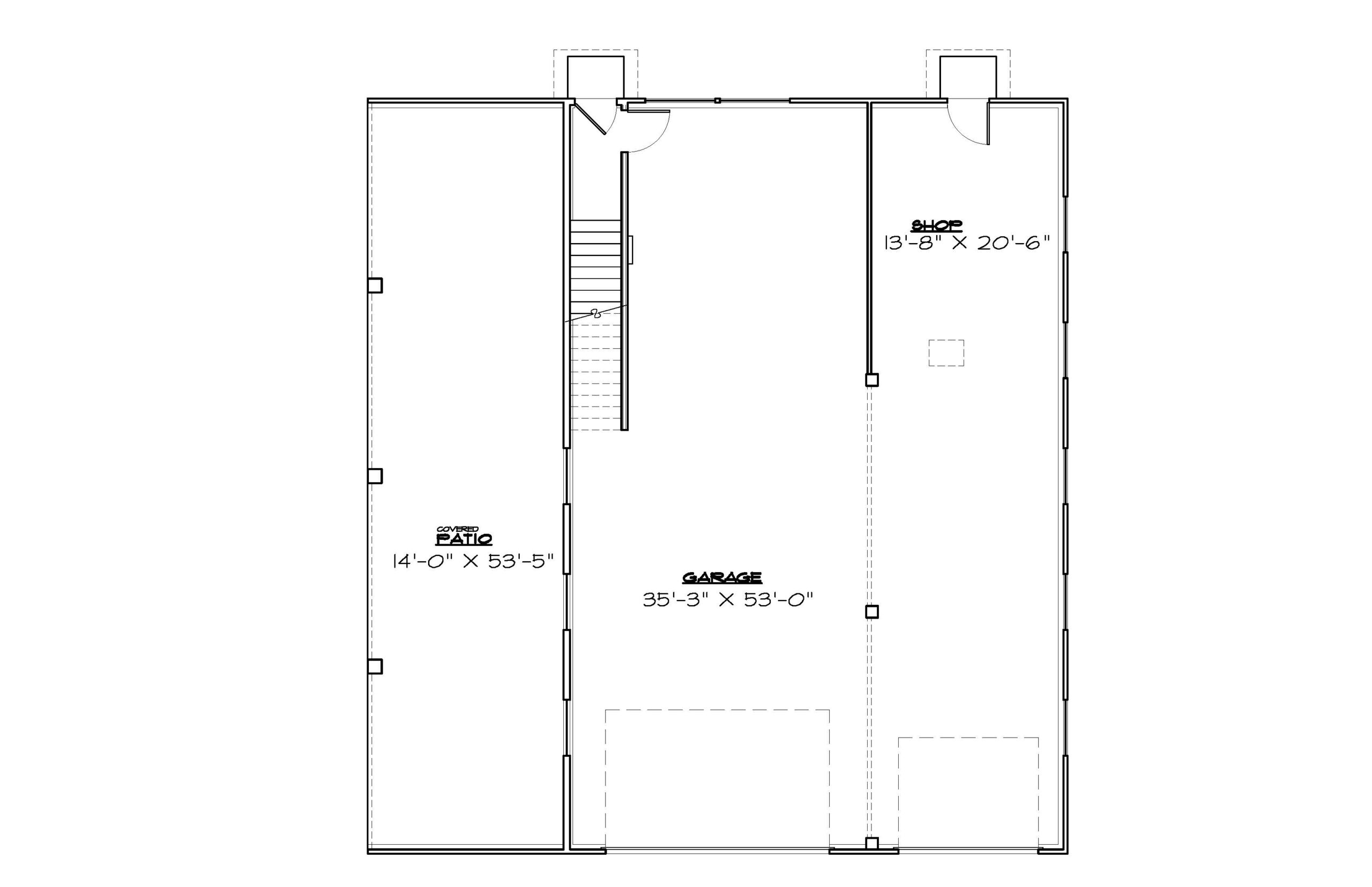
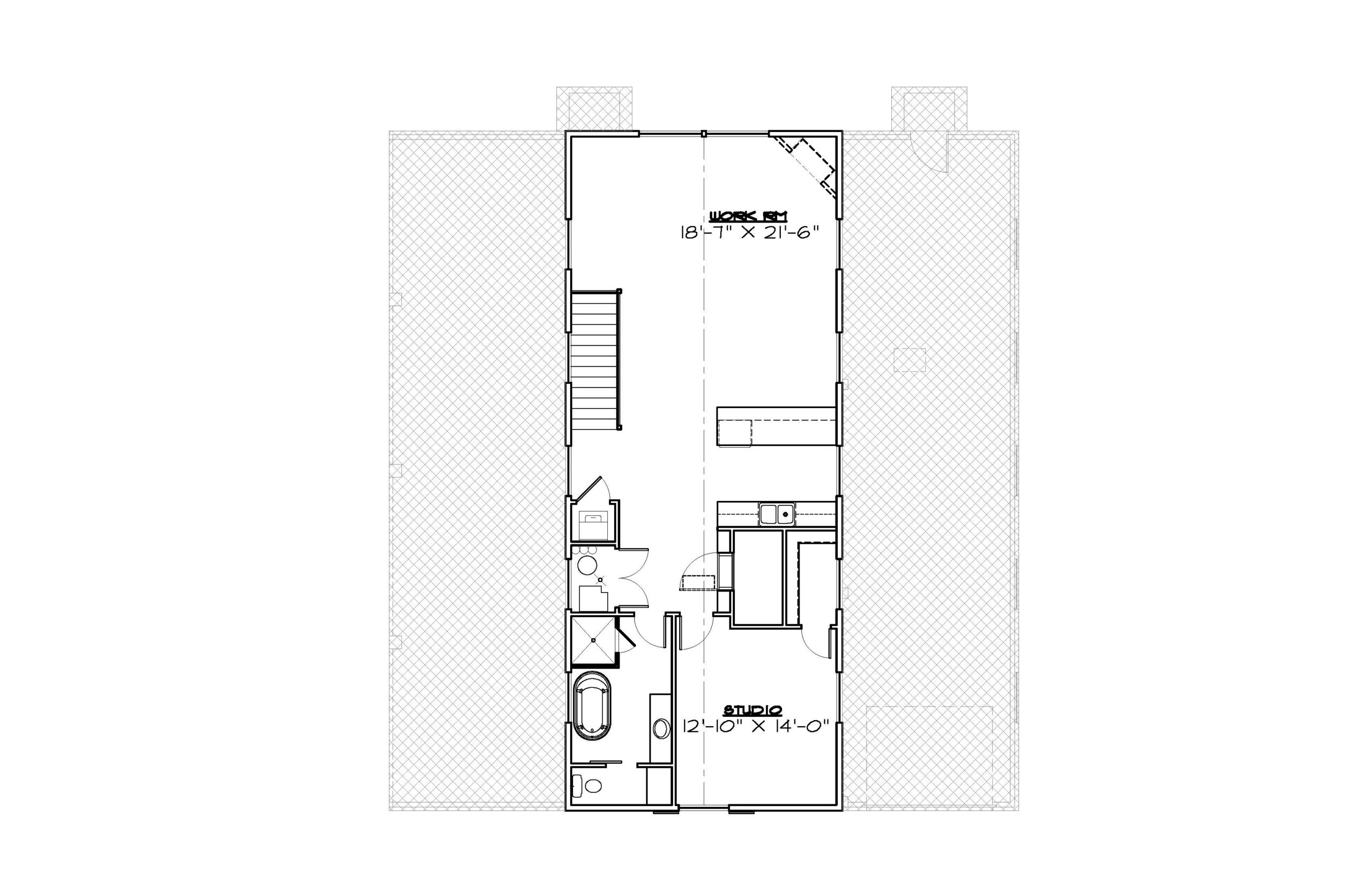
ADU G- 3087-21UE
Download PDF
Back to search
Type:
ADU
,
Garage
Style:
Farmhouse
3087 sq. ft
50' Wide
54' Deep
1 Bathrooms
Main Floor
Upper Floor