Skip to content
CREATIONS WEST
Home
Featured
Custom
Stock
About
Home
Featured
Custom
Stock
About
Let's Talk!
G-1704-20UE
Download PDF
Back to search
Type:
Garage
Style:
Farmhouse
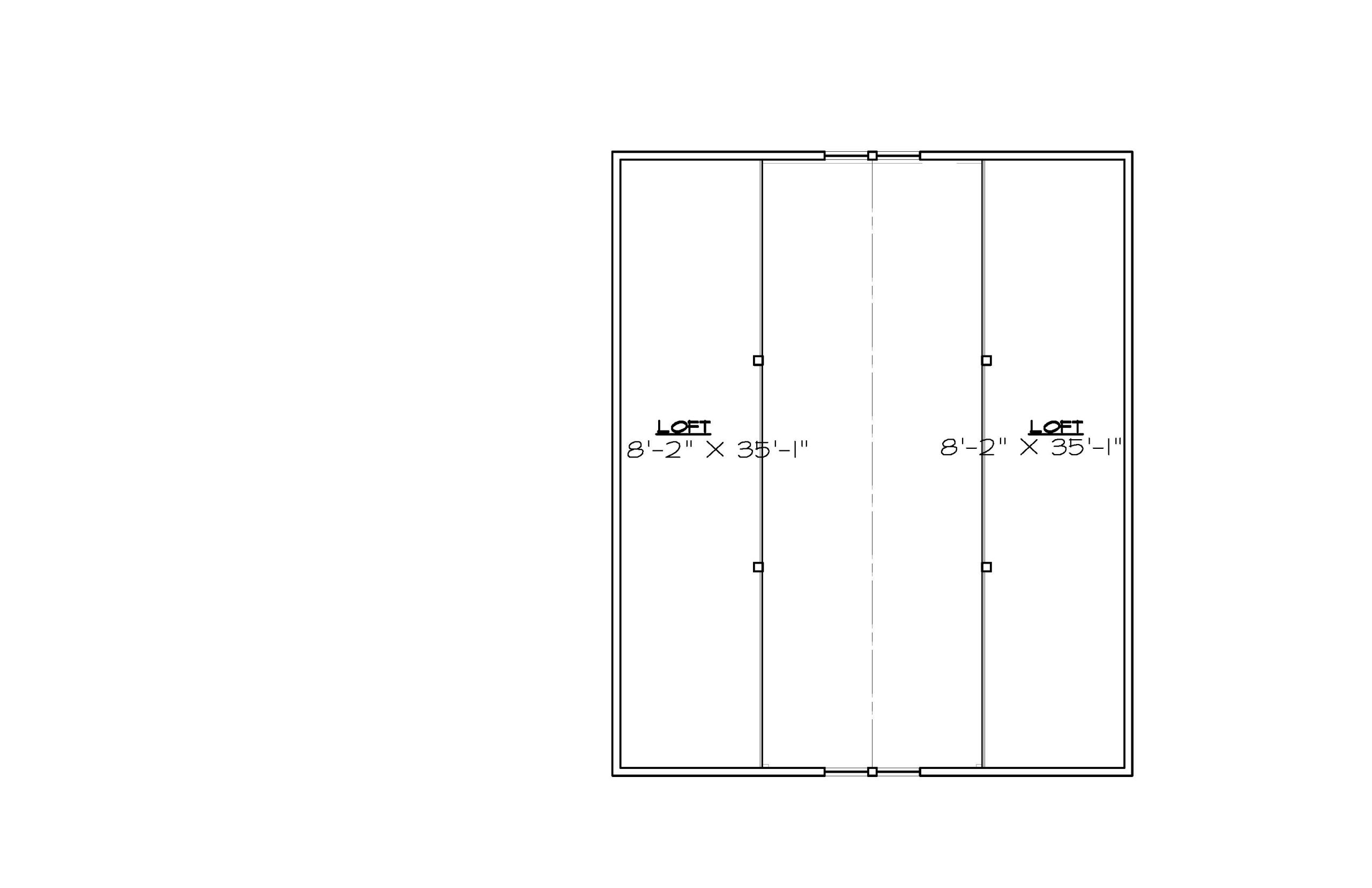
1704 sq. ft
30' Wide
36' Deep
Main Floor
Upper Floor
Front Elevation
Rear Elevation