Skip to content
CREATIONS WEST
Home
Featured
Custom
Stock
About
Home
Featured
Custom
Stock
About
Let's Talk!
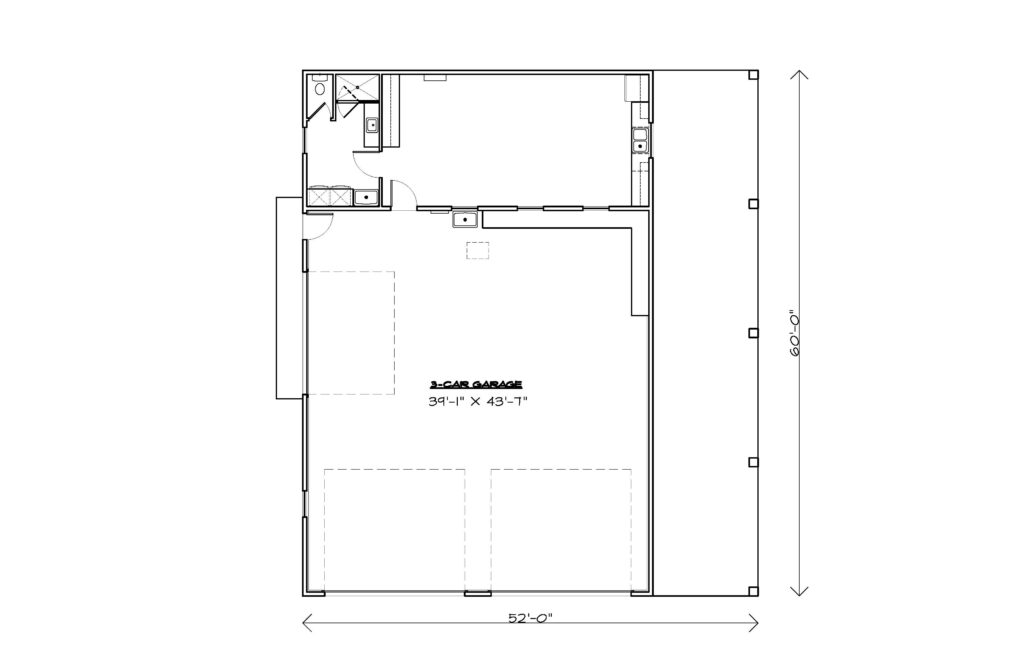
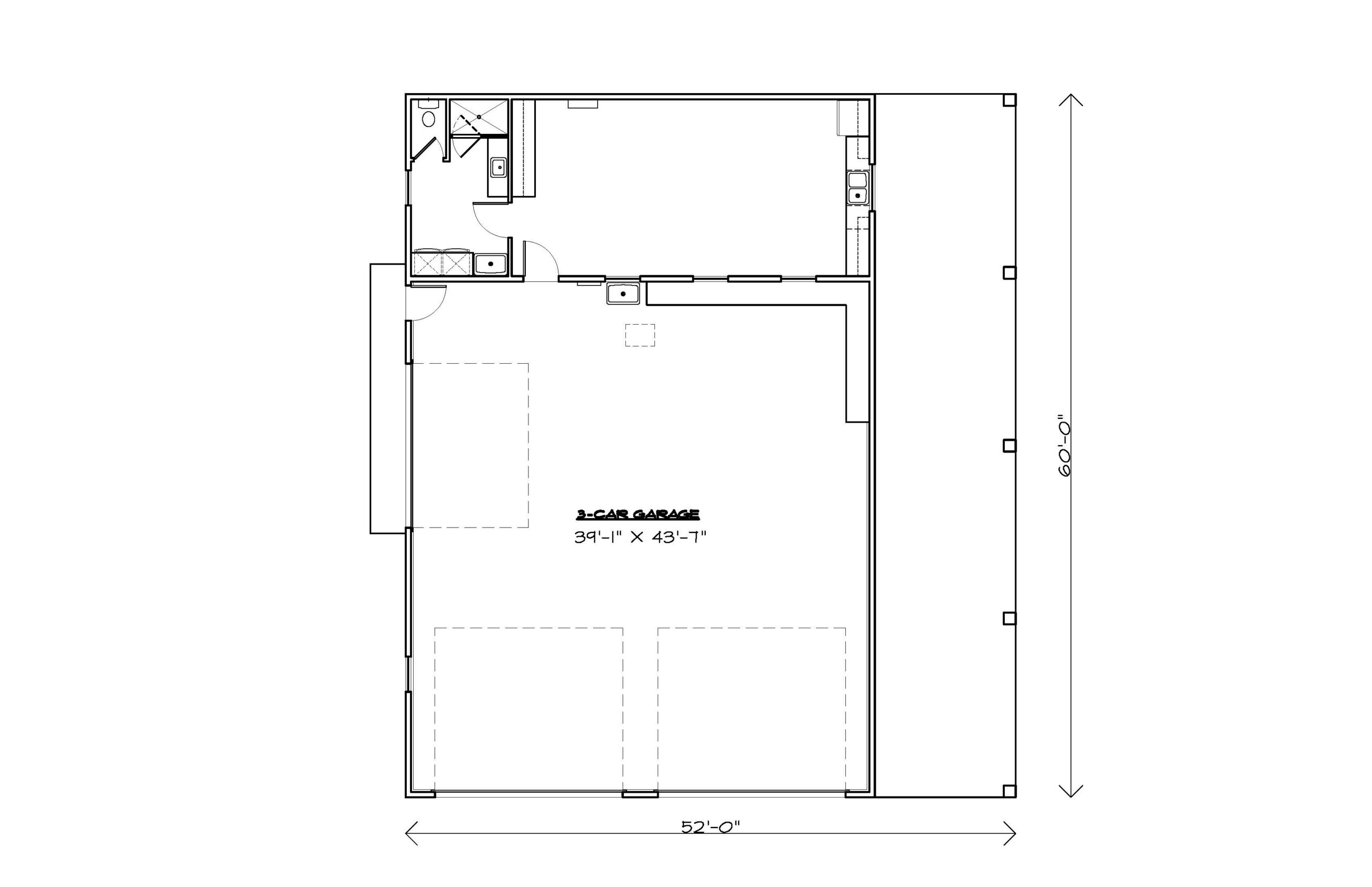
G-2400-25UE
Download PDF
Back to search
Type:
Garage
Style:
Craftsman
2400 sq. ft
52' Wide
60' Deep
Main Floor