Skip to content
CREATIONS WEST
Home
Featured
Custom
Stock
About
Home
Featured
Custom
Stock
About
Let's Talk!
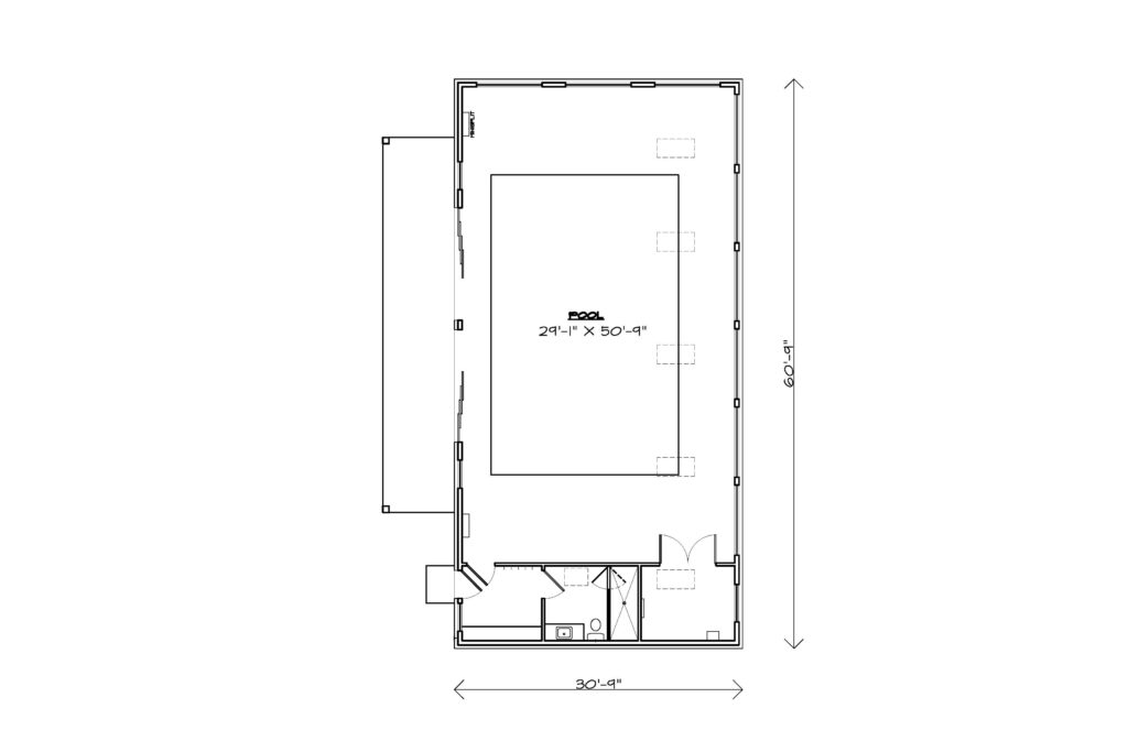
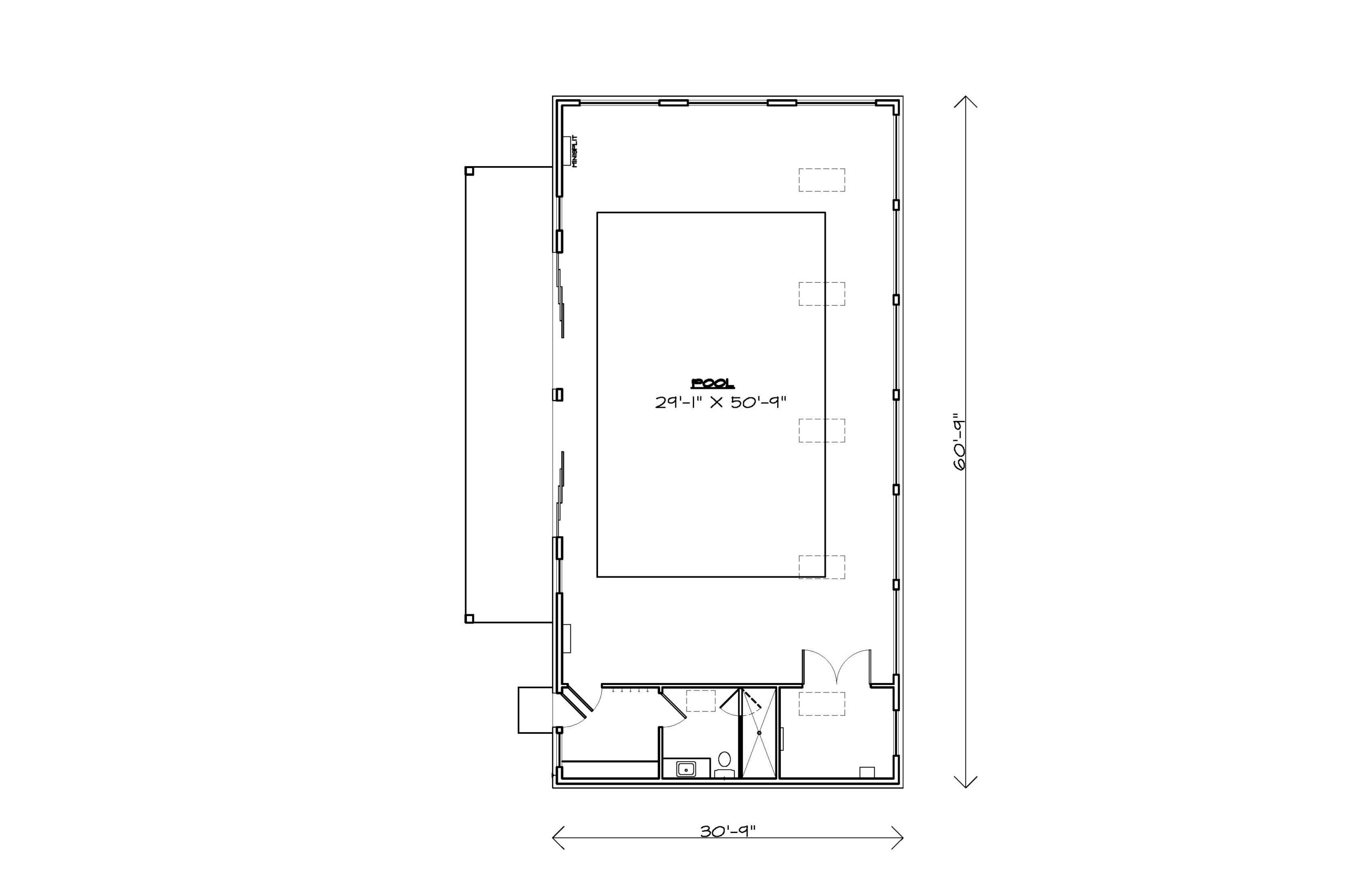
PH-1800-25UE
Download PDF
Back to search
Type:
Garage
Style:
Craftsman
,
Farmhouse
1800 sq. ft
30' Wide
60' Deep
1 Bathrooms
Main Floor
Front Elevation
Rear Elevation