Skip to content
CREATIONS WEST
Home
Featured
Custom
Stock
About
Home
Featured
Custom
Stock
About
Let's Talk!
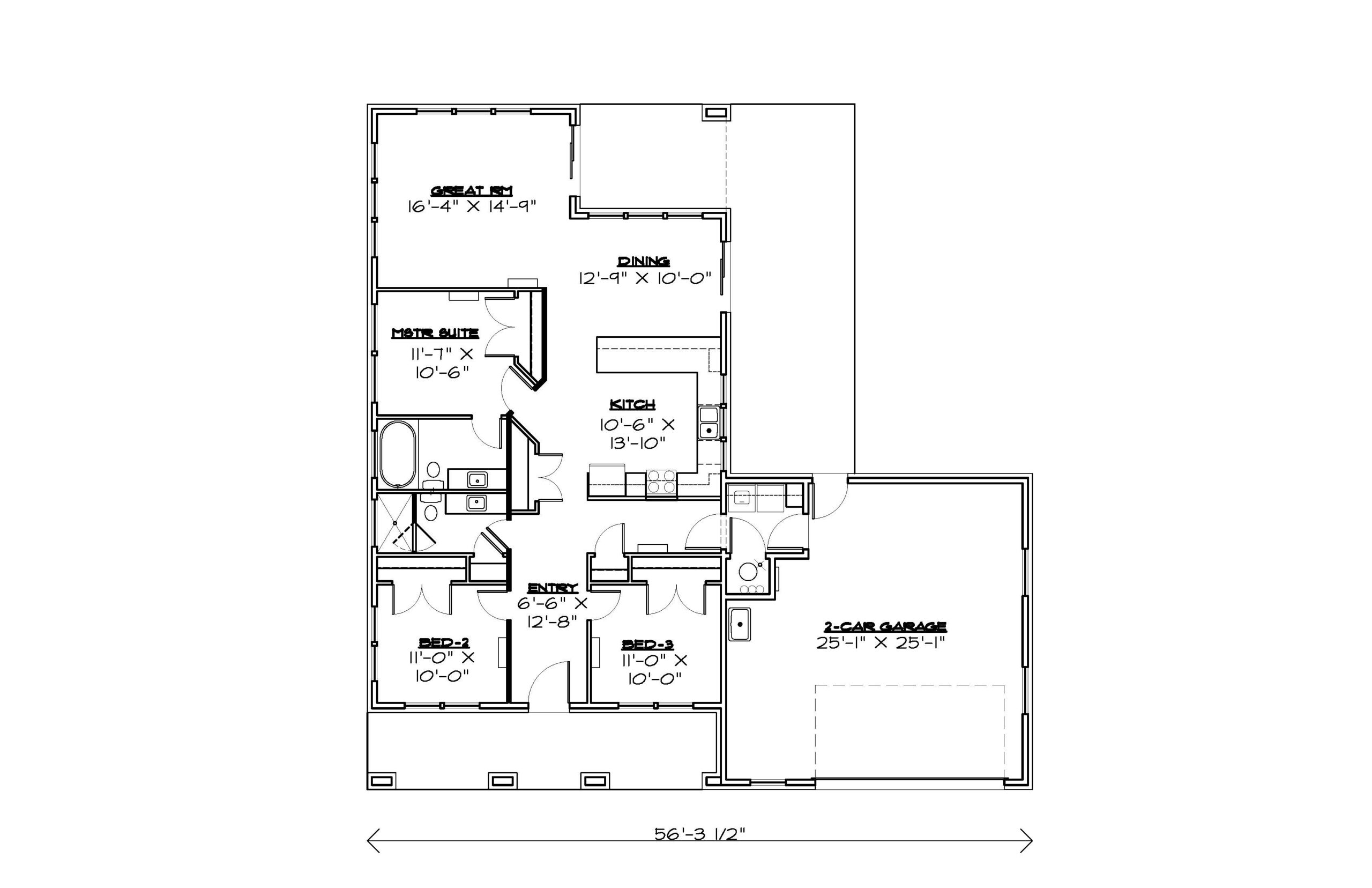
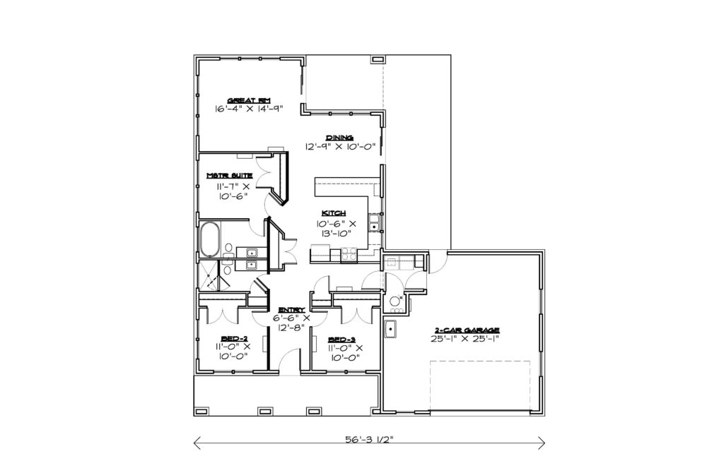
R-1457-25UE
Download PDF
Back to search
Type:
Rambler
Style:
Contemporary
,
Modern
,
Rustic
1457 sq. ft
56' Wide
58' Deep
3 Rooms
2 Bathrooms
Main Floor
Front Elevation
Rear Elevation