Skip to content
CREATIONS WEST
Home
Featured
Custom
Stock
About
Home
Featured
Custom
Stock
About
Let's Talk!
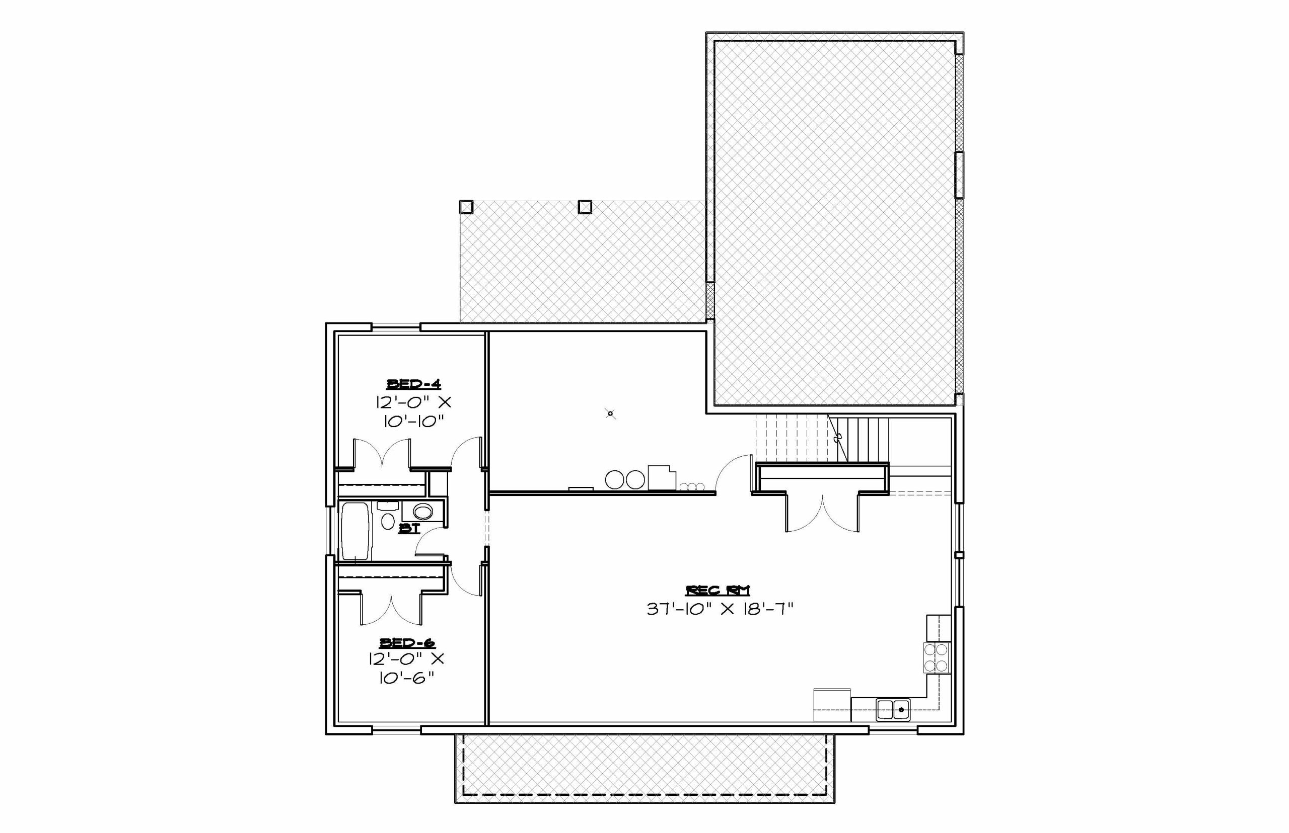
R-1570-19UE
Download PDF
Back to search
Type:
Rambler
Style:
Farmhouse
,
Traditional
1570 sq. ft
52' Wide
57' Deep
3 Rooms
2 Bathrooms
Main Floor
Basement
Front Elevation
Rear Elevation