Skip to content
CREATIONS WEST
Home
Featured
Custom
Stock
About
Home
Featured
Custom
Stock
About
Let's Talk!
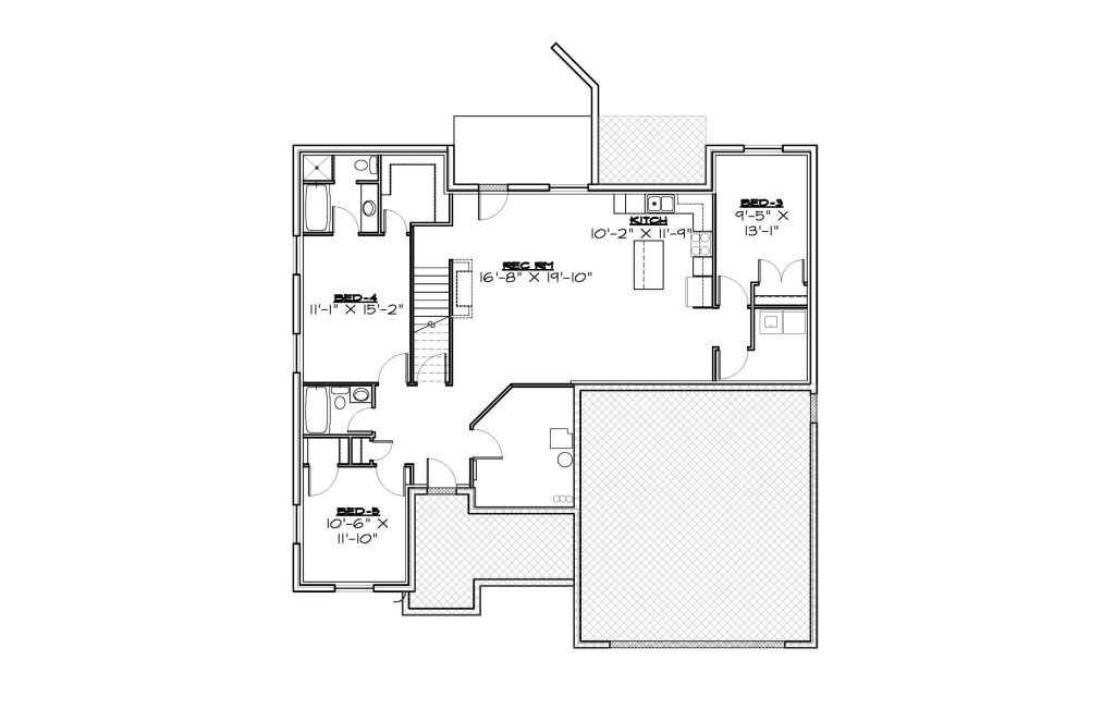
R-1611-17UE
Download PDF
Back to search
Type:
Rambler
Style:
Modern Farmhouse
1611 sq. ft
54' Wide
52' Deep
2 Rooms
2 Bathrooms
Main Floor
Basement
Front Elevation
Rear Elevation