Skip to content
CREATIONS WEST
Home
Featured
Custom
Stock
About
Home
Featured
Custom
Stock
About
Let's Talk!
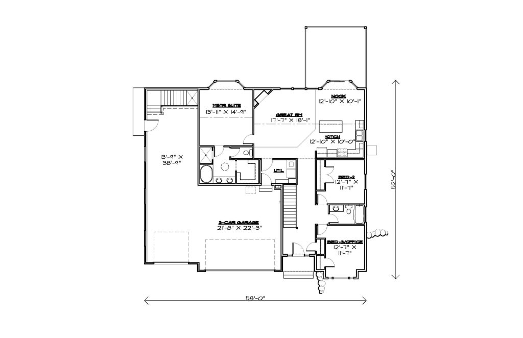
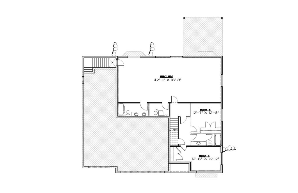
R-1638-17UE
Download PDF
Back to search
Type:
Rambler
Style:
Modern Farmhouse
1638 sq. ft
58' Wide
52' Deep
3 Rooms
2 Bathrooms
Main Floor
Basement
Front Elevation
Rear Elevation