Skip to content
CREATIONS WEST
Home
Featured
Custom
Stock
About
Home
Featured
Custom
Stock
About
Let's Talk!
R-1666-15UE
Download PDF
Back to search
Type:
Rambler
Style:
Craftsman
,
Rustic
1666 sq. ft
52' Wide
49' Deep
3 Rooms
2 Bathrooms
Main Floor
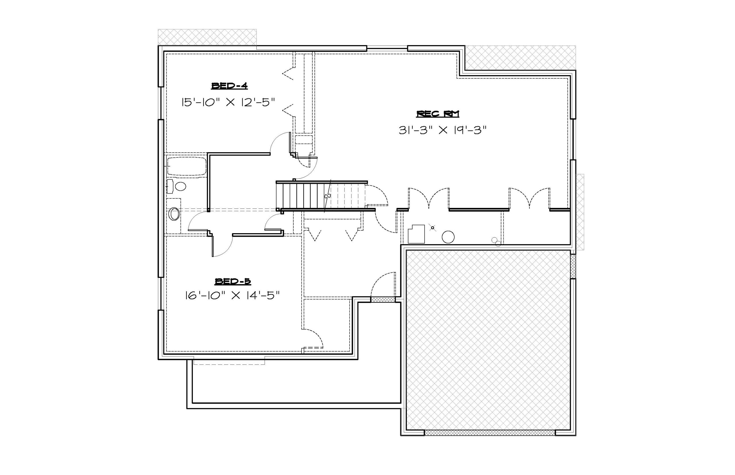
Basement
Front Elevation
Rear Elevation