Skip to content
CREATIONS WEST
Home
Featured
Custom
Stock
About
Home
Featured
Custom
Stock
About
Let's Talk!
R-1670-19UE
Download PDF
Back to search
Type:
Rambler
Style:
Craftsman
1670 sq. ft
66' Wide
51' Deep
3 Rooms
2 Bathrooms
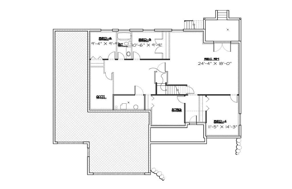
Main Floor
Basement
Front Elevation
Rear Elevation