Skip to content
CREATIONS WEST
Home
Featured
Custom
Stock
About
Home
Featured
Custom
Stock
About
Let's Talk!
R-1679-25UE
Download PDF
Back to search
Type:
Rambler
Style:
Craftsman
,
Traditional
1679 sq. ft
50' Wide
50' Deep
6 Rooms
4 Bathrooms
Main Floor
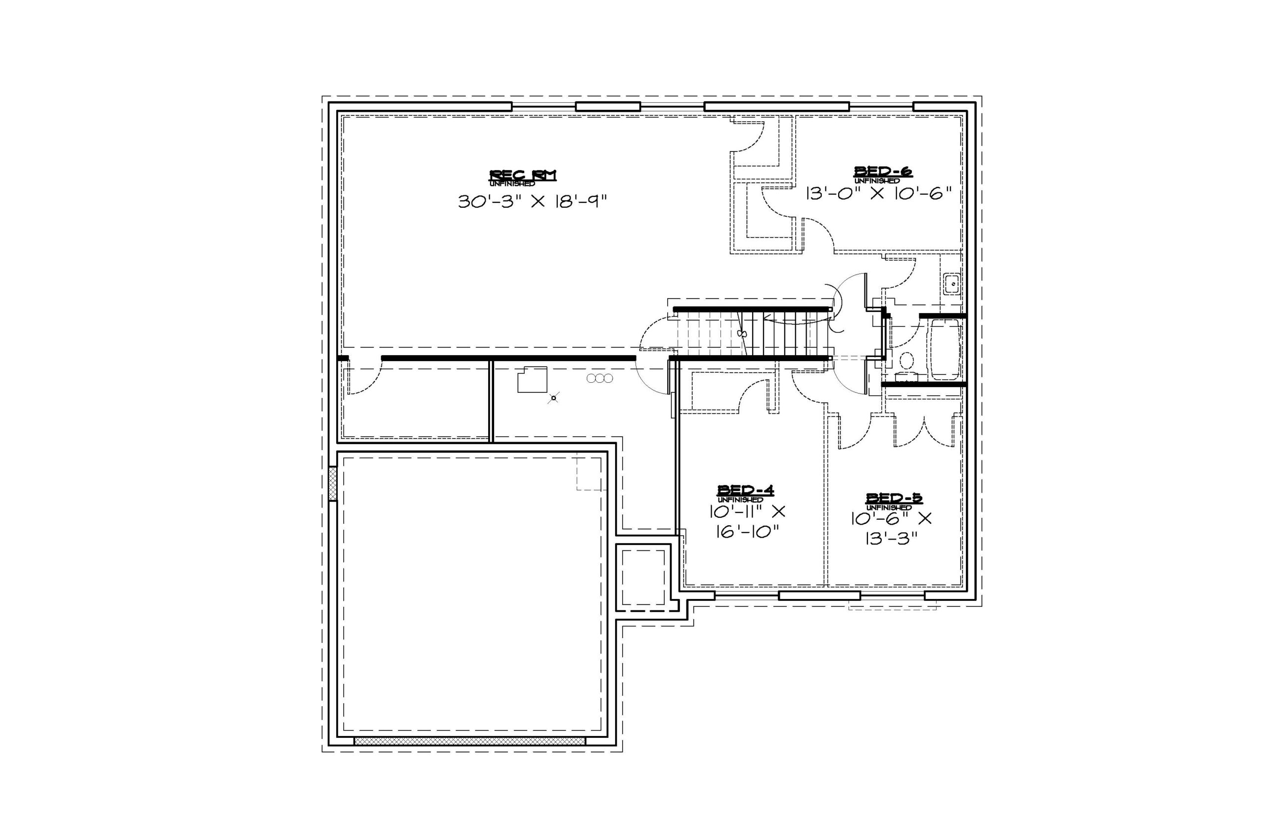
Basement
Front Elevation
Rear Elevation