Skip to content
CREATIONS WEST
Home
Featured
Custom
Stock
About
Home
Featured
Custom
Stock
About
Let's Talk!
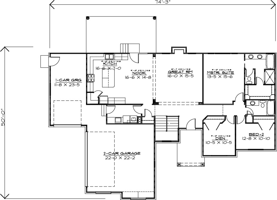
R-1692-05CE
Download PDF
Back to search
Type:
Rambler
Style:
Traditional
1692 sq. ft
74' Wide
50' Deep
3 Rooms
2 Bathrooms
Main Floor
Main Floor
Basement
Rear Elevation