Skip to content
CREATIONS WEST
Home
Featured
Custom
Stock
About
Home
Featured
Custom
Stock
About
Let's Talk!
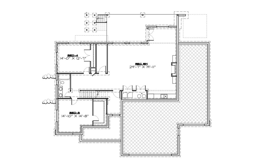
R-1749-20UE
Download PDF
Back to search
Type:
Rambler
Style:
Rustic
1749 sq. ft
65' Wide
55' Deep
2 Rooms
2.5 Bathrooms
Main Floor
Basement
Front Elevation
Rear Elevation