R-1811-25UE

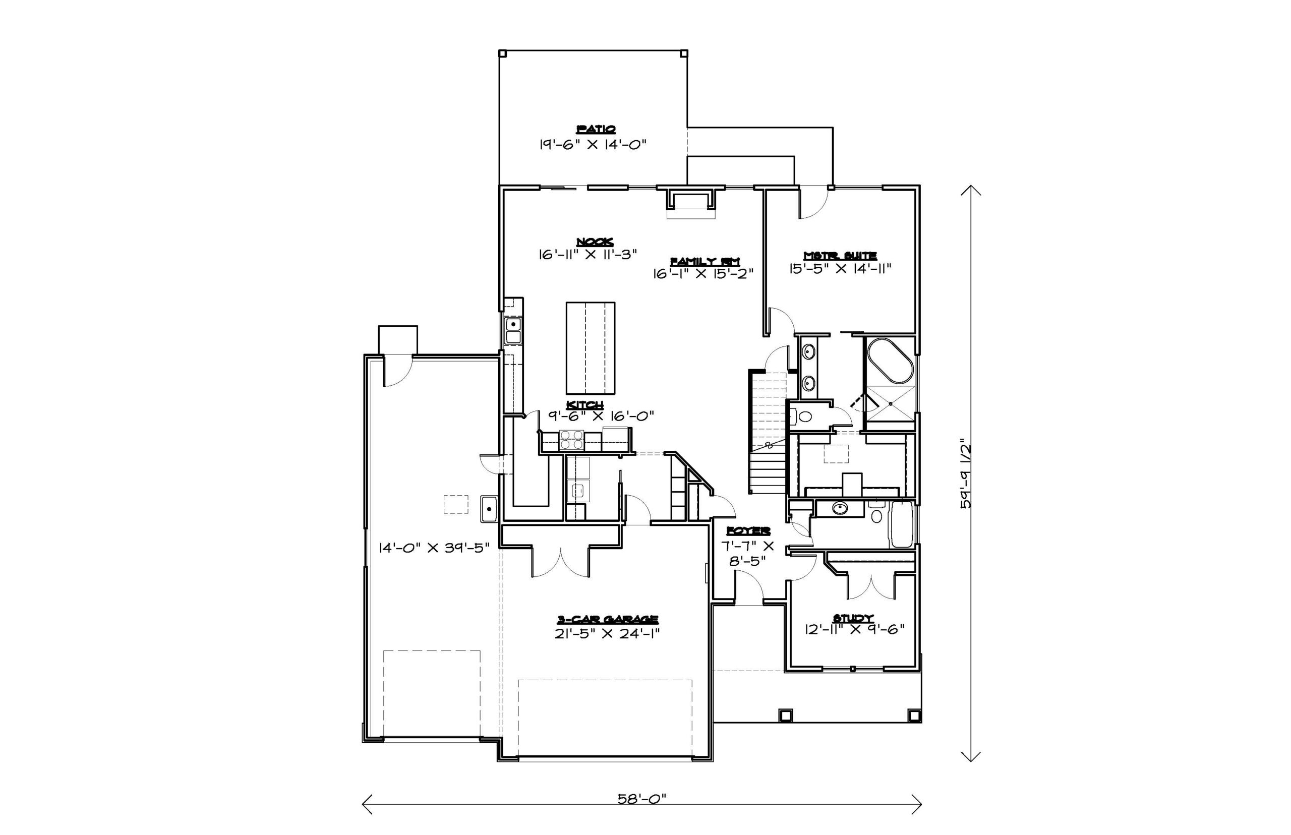
Main Floor
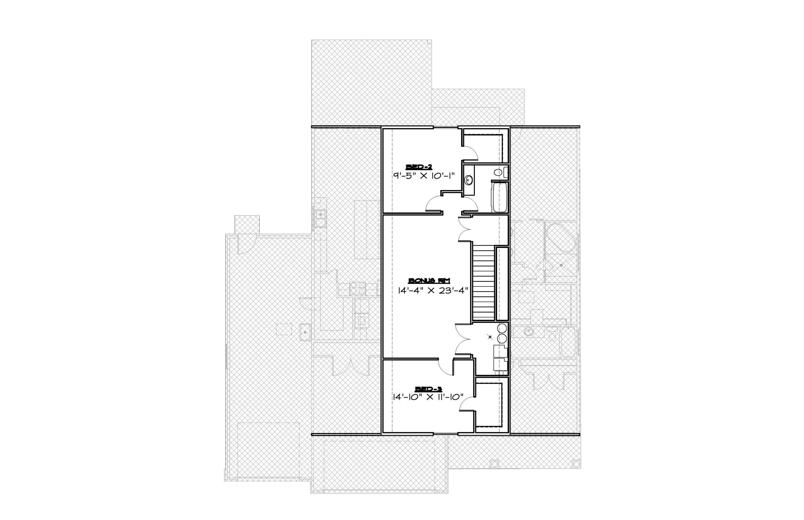
Upper Floor
Front Elevation
Rear Elevation