Skip to content
CREATIONS WEST
Home
Featured
Custom
Stock
About
Home
Featured
Custom
Stock
About
Let's Talk!
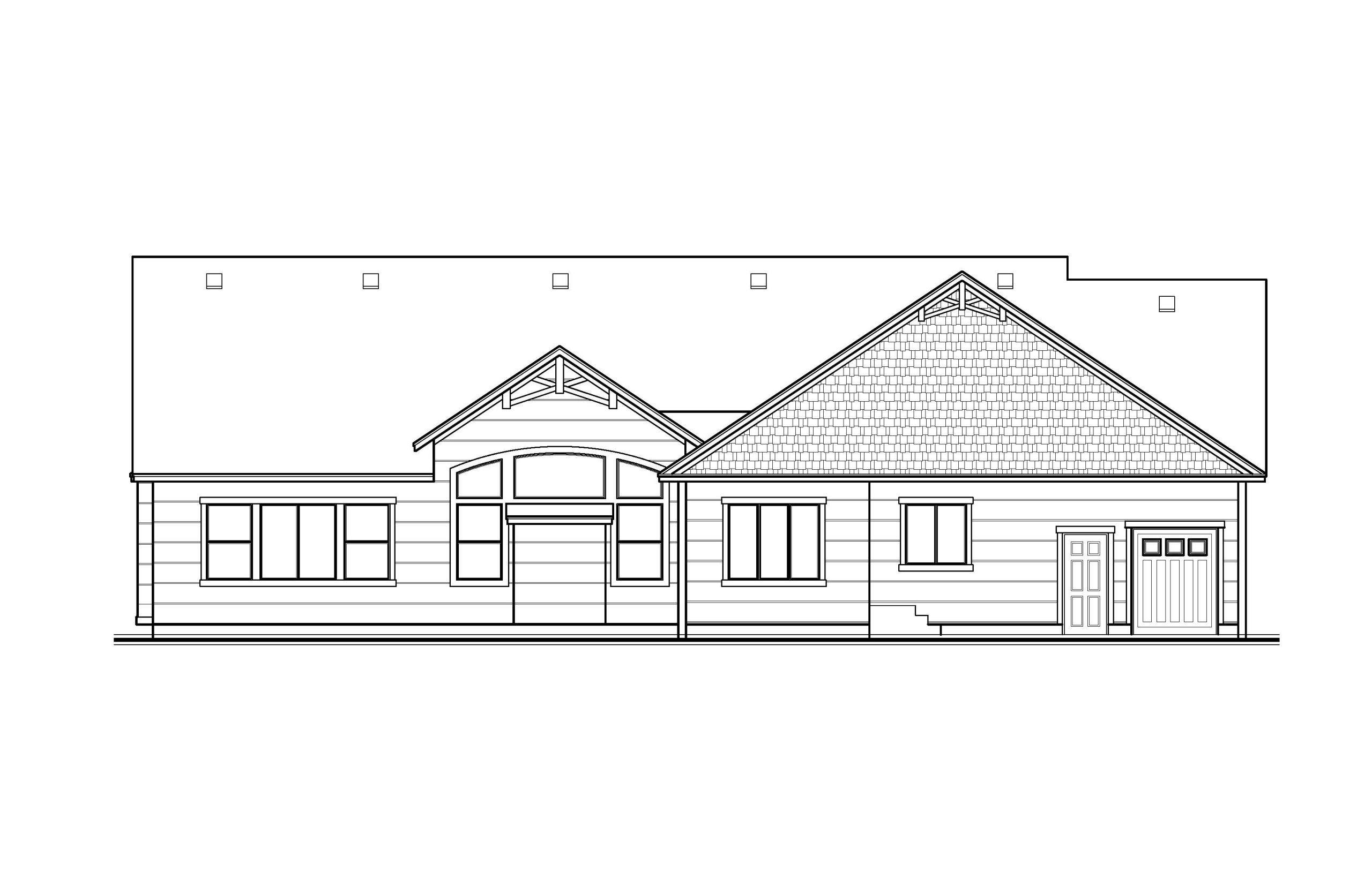
R-1840-16UE
Download PDF
Back to search
Type:
Rambler
Style:
Craftsman
1840 sq. ft
72' Wide
46' Deep
2 Rooms
1.5 Bathrooms
Main Floor
Basement
Front Elevation
Rear Elevation