Skip to content
CREATIONS WEST
Home
Featured
Custom
Stock
About
Home
Featured
Custom
Stock
About
Let's Talk!
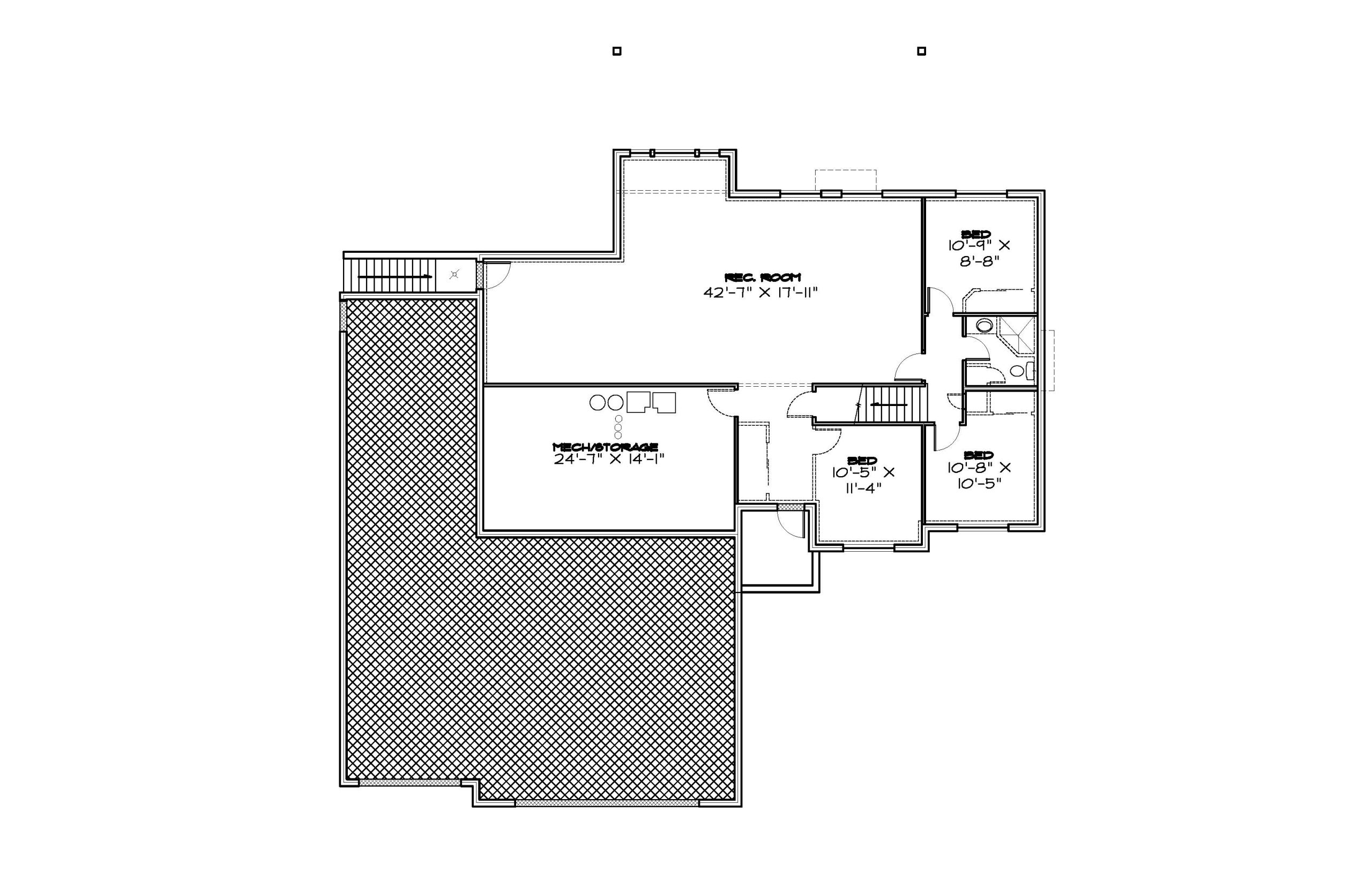
R-1843-13UE
Download PDF
Back to search
Type:
Rambler
Style:
Rustic
,
Traditional
1843 sq. ft
70' Wide
64' Deep
3 Rooms
2.5 Bathrooms
Main Floor
Basement
Front Elevation
Rear Elevation