Skip to content
CREATIONS WEST
Home
Featured
Custom
Stock
About
Home
Featured
Custom
Stock
About
Let's Talk!
R-1869-15UE(Q)
Download PDF
Back to search
Type:
Rambler
Style:
Craftsman
,
Modern Farmhouse
1869 sq. ft
56' Wide
58' Deep
2 Rooms
2 Bathrooms
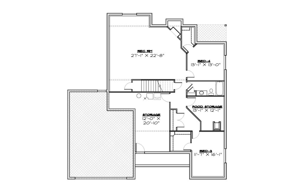
Main Floor
Basement
Front Elevation
Rear Elevation