Skip to content
CREATIONS WEST
Home
Featured
Custom
Stock
About
Home
Featured
Custom
Stock
About
Let's Talk!
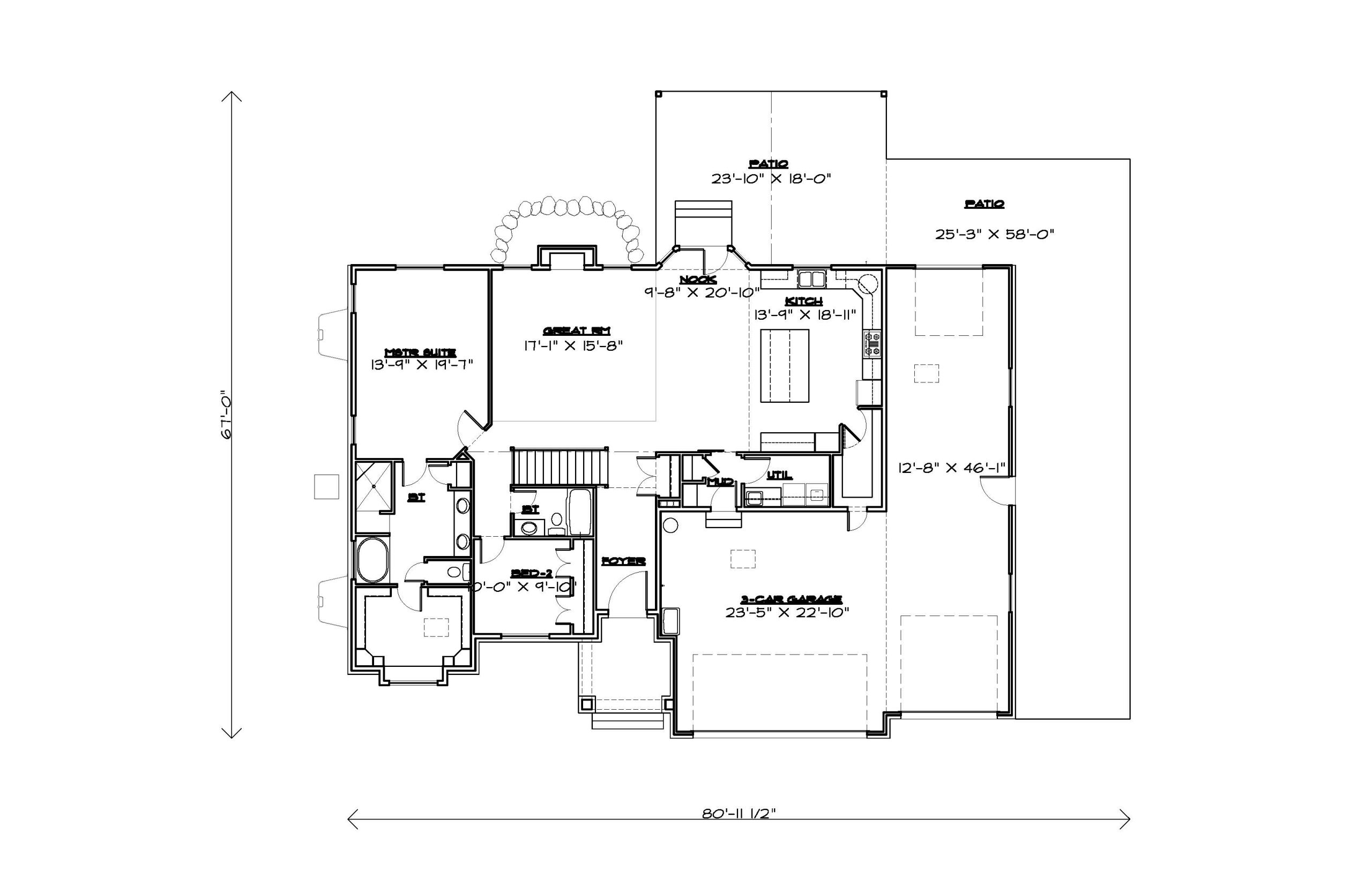
R-1898-21UE
Download PDF
Back to search
Type:
Rambler
Style:
Craftsman
1898 sq. ft
81' Wide
67' Deep
2 Rooms
2 Bathrooms
Main Floor
Basement
Front Elevation
Rear Elevation